Pozdrav svima,
Već dugo pratim ovaj forum i procitao sam sve i svasta dok jos nije ni bilo u planu da se uopste nesto gradi, ali eto sad imamo neke planove pa bih se posavetovao 
Uskoro ocekujem trece dete i stan postaje previse tesan, samo jedna spavaca soba, tako da je izbor za resenje tog problema pao na izgradnju kuce.
Plac je vec obezbedjen, jos malo pa otplacen
. Nije veliki, bezmalo 4 ara (390m2 ) (19x19-22.5m ) i na njemu je ideja da se pravi kuca, prizemlje i sprat, (u okviru prizemlja i garaza) velicine osnove 13x10m.
Nece biti para da se to odmah sve stavi pod krov, ali od necega mora da se krene
Plac je na gradjevinskom zemljistu, zuta zona, ali naravno planovi su jos uvek u "izradi" i to nece skoro imati svoj DUP tako da od dozvole nista, pa se radi u varijanti kud svi tu i mali Mujo.
Uskoro ide ravnanje placa, jer je posle toga izvodjenje radova jednostavnije (takav je savet), postoji pad od 0,7-1m na tih 20m kao i deo brda koji treba da se skine da bi se iskoristila cela povrsina.
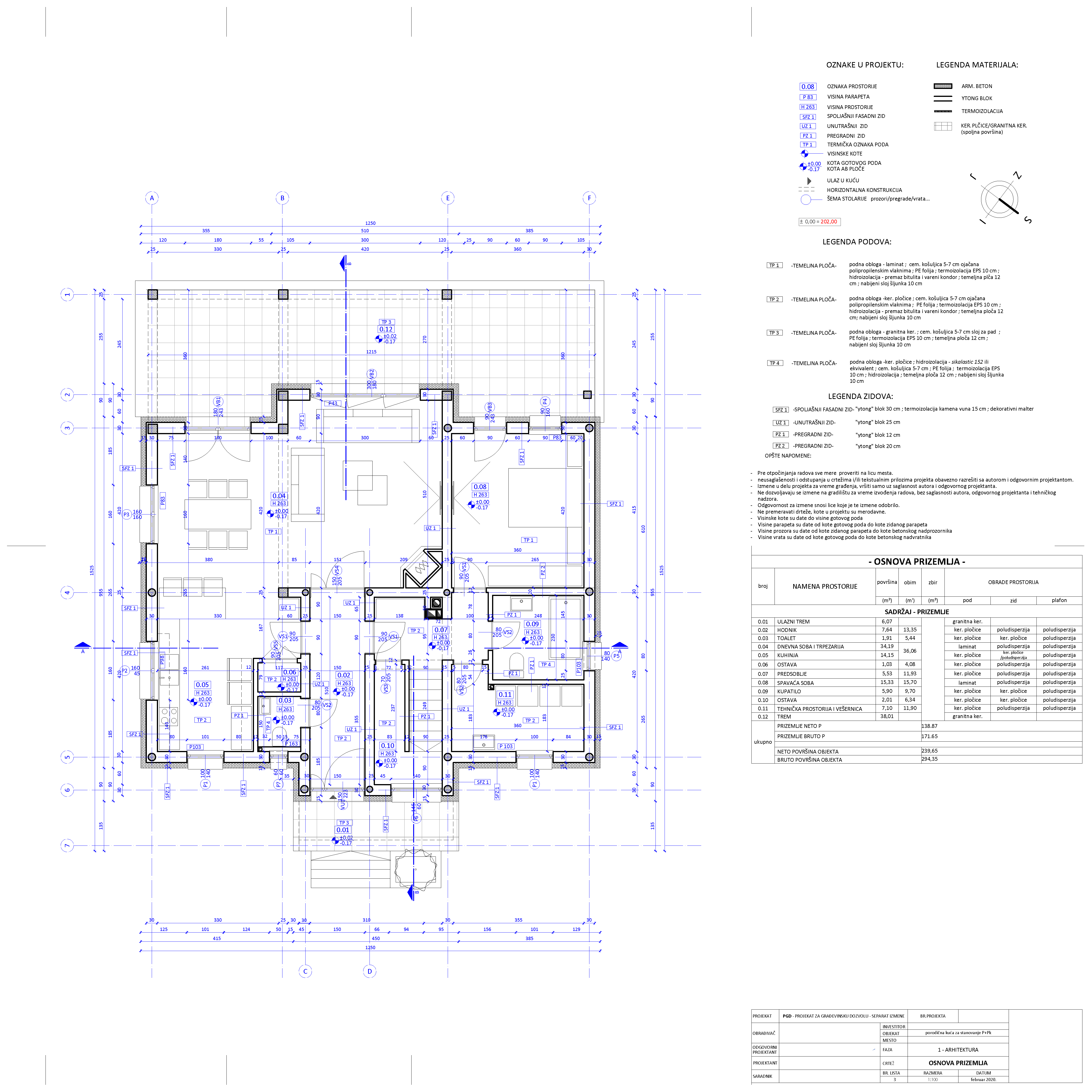
Na osnovu nekog mog idejnog resenja, rodjak koji se bavi crtanjem objekata (visa gradjevinska) mi je to vec pretocio u kotirani plan, pa odmah prilazem prizemlje.
http://www.samsvojmajstor.com/portal/sites/default/files/prizemlje_7.jpg
Imam celih 24 stuba, uglavnom 25x25 posto bih spoljne zidove pravio debljine 25cm
Izgleda sto je sigurno sigurno je.
Posle ravnanja treba da se kopaju trake za temelj, i tu vec nailazim na razne dileme. Kopao bih oko 90cm, pa 10 cm sljunka ili iberlaufa ? Preporuka?
Pa onda temelj 30-40cm pa onda 2+2 reda betonskih blokova do visine 40 iznad nule zemlje, pa onda ploca 15-20cm, tako da bi pod bio na visini od 60cm iznad zemlje, a sa strane garaze bi isao jedan blok manje, znaci 40cm iznad nule.
Po inicijalnoj rodjakovoj preporuci temeljne trake bih isao spoljne 75x40 a unutrasnje 55x40, sa armaturom 12 (6 sipki, 3 gore 3 dole) i uzengijama 8.
U razgovoru sa majstorom, koji je tu blizu i sebi kucu napravio, da i on ii vecina njih u okolini ima temeljne trake 40 cm i armaturu 10 i naravno bilo je, sta ce ti to 
U trecoj konsultaciji sa prijateljem koji se bavi projektovanjem ozbiljnijih stvari (mostova,nadvoznjaka itd...) dobio sam preporuku i objasnjenje da je glavna armatura temelja i ono sto stvarno nosi opterecenje kuce, ono sto svi zovu uzengije i da to treba da bude ozbiljna armatura. I da bi trebao da idem sa tom glavnom armaturom 12 na 25cm, a poduzna moze da bude i 10. Dimenzije trake 60x30 ili 60x40
Plac je na padini ali su sve parcele kaskadno vec poravnate i tako je 100+god
Kisa kad padne napravi se blato i posle 3h sve ode dole. Zemlja se relativno lako kopa prvih pola metra, posle je tvrda, mora da se natapa za rucno kopanje. Ovo iz iskustva kopanja sahte za vodu, do 180cm u dubinu.
E sad pametniji od mene neka kazu svoje misljenje, sta je ovde ispravno i kojim putem ici. Svakako sa majstorovom preporukom bi bilo najjeftinije, ali da ne bude sve je to super i drzi dok ne drmne prvi zemljotres 7+ pa bude kuku lele...
Svakako mi 75 deluje dosta siroko, i to sam mislio oko 60, ali koji oblik armature temeljne trake i koji precnici nisam pametan.
Evo i slika predlozenih oblika temeljnih traka koliko sam ja razumeo. Kao i idejna od kuce, doduse crtano sa krovom na 2 vode, a bio bi na 4, ali daleeeeko smo od krova
Ulazna vrata i garaza i terasa su na juznoj strani, a druga terasa na zapadnoj.
Svaka pomoc i savet je dobro dosla, mada sam tako i zavrsio u ovoj dilemi odmah na pocetku.
Unapred hvala
Da li moze neki moderator da prebaci temu u drugi podforum.
izgradnja-renoviranje-kuće
Bio trebalo da je ispravan za ovu temu