Dragi forumaši,
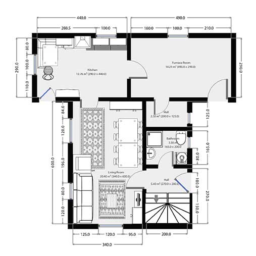
nov sam ovom forumu. Treba mi pomoć oko izbora sistema centralnog grejanja za porodičnu kuću koja je grejne površine 45 m2 prizemlje i 35 m2 sprat, odnosno potkrovlje. Kuća je izgrađena od standardnih blokova sa izolacijom od stiropora 5 cm i kosim krovom. Energent bi bilo ogrevno drvo. Kotao bi bio instaliran u pomocnoj prostoriji u prizemlju, skroz desno na skici. Skica prostorija data je u prilogu.
Da li se opredeliti za jednocevni, ili dvocevni sistem razvoda?
Koji tip kotla za grejanje, koji proizvođač i koja je potrebna snaga kotla da bi se obezbidilo 20 C na ovoj grejnoj površini?
Koliki broj grejnih tela je potreban prema priloženim podacima i koje? Da li se opredeliti za panelne, ili alu radijatore? U kupatilima planirani sušači umesto radijatorskih tela.
Hvala unapred!



Ja bix ti preporucio alfa plam como 15 jako dobro se pokazala