Nadam se da je lakse ovako sa novom temom da pitam sve sto me zanima vezano za renoviranje stana nego da otvaram brdo novih tema po forumu.... 
Kao sto sam vec napisao pre par dana, pocinjem sa renoviranjem svog stana od nekih 58 kvadrata. Radi se apsolutno sve od rusenja zidovam, nove instalacije, stolarija, pod, kupatilo...
Zgrada je napravljena 72. a stan se nalazi na poslednjem, cetvrtkom spratu i iznad mene je samo ravan krov ( uradjena hidroizolacia prosle godine).
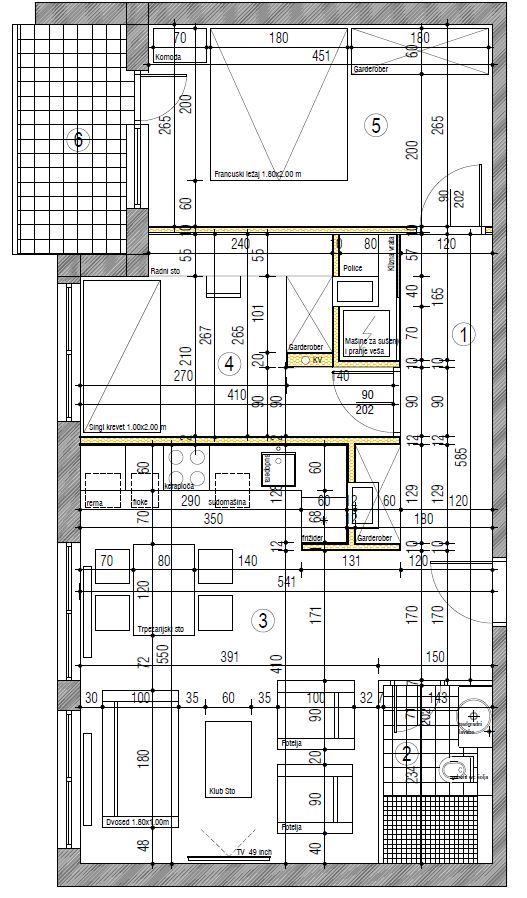
Za idejni porjekat, razmestaj prostorija sa angazovao arhitektu, jer i posle par meseci mozganja nisam moga naci idealno resenje, jer kroz sredinu stana prolaze dva ventilaciona otvora i kuhinjska vertikala. Mislim da sam vec postavljao prvi projekat ali on vise nije u opciji pa sam se odlucio za drugi ( see attachment
). U stanu postoji i jedan noseci zid, duzine 3.4 metara i debljine 19cm, on ce isto da se rusil, ali po propisima... strucno lice ce se pozabaviti time.
No da se vratim na problem oko novog idejnog projekta. Kao sto se na njemu moze videti kuhiska vertika, KV, nalazi se u malom improvizovanom zidicu, metar udaljenom od sudopere. Da li je tu nesto u opste izvodljivo da se napravi, da se uzeme u obzir da je pod koji se dize od parketa, iverice i nekih 10-12cm sitnog peska ??

Šta da se napravi sa tom vertikalom ?
https://www.facebook.com/tenzor1/
https://tenzorisanje.wordpress.com/
https://www.youtube.com/channel/UCHEOtDmyQYSMVXVjjyVsWkw