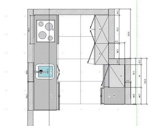
Ovo je novogradnja, na slici sam označio dje se što nalazi.
Bitno je da je sudoper sa jednom "rupom" a tamo di ide ravni dio sudopera da ispod ide perilica.
i da, kuhinja nema "vrata" nego je dio dnevne sobe (na slici piše parket)
Hvala
ima ovaj 2d i 3d prikaz: www.floorplanner.com
to nije problem.. nemam ideju kako postaviti ideju stolaru gdje da šta stavi...
pa mislio sam da ako ovdje ima netko da da svoj prijedlog..
šta sve tu trebamo staviti: sudoper, perilicu, frižider, ploču za kuhanje, pećnicu, stol, radnu ploču, mikrovalna, police... a sad kamo šta?
Dizajniranje kuhinje je po meni vrlo lep i ozbiljan posao i ne treba se raditi preko nogu. Meni je bilo uživanje dizajnirati moju i skoro mi je žao što je završena i rado bih ti pomogla ali to je dugotrajan posao i nije samo važno gde ćeš šta staviti!
Kog stila želiš da ti bude kuhinja?
Od kakvih materijala? Boje?
Stil, boje ostatka ambijenta???
Daj malo podataka
Primera radi, ja sam mesecima surfovala po internetu u potrazi za idejama, onda danima sve to pravila u 3d programu, onda završila, da bih na kraju, na sajmu videla neku debelu radnu ploču koja mi se nikako nije uklapala u dotadašnji plan - pa sve ispočetka!
Najvažniji savet: Nikako ne bi trebalo da daš "savet" stolaru gde šta da stavi. Stolaru trebaš dati gotov nacrt sve u milimetar.
A to se najbolje radi u kitchendraw
www.kitchendraw.com :bye2
Pa šta da ti kažem,otiđi negdje i konsultuj
nekog projektanta,pa njemu objasni svoj problem...
Mislim kakav je to stolar,bez ideja...???
Projektovanje kuhinje je potežak posao,
čisto sumnjam da će ti to neko uraditi s foruma a da tebi odgovara.
Ja znam za jednu kuhnju napraviti po 10 solucija.
Pa onda potrošač prihvati onu prvu, grrr...koja i bude uvijek najbolja.
Stvarno nemam vremena,da ti pomognem...
Eto ja i djevojka uređujemo novi stan, htjeli bi da to bude neki spoj onoga što nam se dopada i funkcionalnosti. Prednost je to što ja radim sa 3D programima ali nedostatak informacija o funkcionalnosti. Pogotovo kad se radi o ovom kosom zidu. E, stil mora biti čisti minimalizam. Boja drva nije toliko bitna za sad jer ćemo razmisliti kad napravimo kostur. Prvo moram skupiti neke informacije kako taj prostro učiniti funkcionalnim. Imamo gdje za kupiti materijal, nismu uzimali pravog stolara. Za sad pokušavamo skupiti informacije o funkcionalnosti pa da se bacimo na izvedbu...
@Bojanale: hvala na linku za software, sad ga idem skinut
@bosch-ke: nema problema prijatelju, ako ti padne kakva ideja samo napiši, bit ću zahvalan
p.s. u prilogu šaljem zamisao o raspodjeli elemenata radne ploče
Sličan nam je raspored. Evo slike moje kuhinje
Samo mi nije jasno u kom delu se nalazi taj kosi zid. Da li je to ovaj dimenzija 2.60?
hvala na slikama Bojanale, taj kosi zid je glavni vanjski koji seže u dnevnu sobu i ustvari je dugačak 780. razmišljani smo o šanku ali odustali jer bi stavili eventualno neki okrugli stol jer moja draga voli raditi rezance i slične stvari pa joj treba mjesta 
razmišljani smo o šanku ali odustali jer bi stavili eventualno neki okrugli stol jer moja draga voli raditi rezance i slične stvari pa joj treba mjesta
Umesto stola: kitchen islands (pronađite na google) sa odgovarajućim stolicama
c!
ovde nista nije kako treba.
prvo sto nije kako treba je frizider pored sporeta. to treba izbeci po svaku cenu.
druga stvar koja nikako ne pashe je ugao izmedju masine za sudje i sporeta, ona oker zona. po ovoj slici, to je potpuno odbacen prostor, "mrtav", ili ja tu nesto nisam ukacila? aaa ne, niposto se to ne sme tek tako olako izgubiti.
po meni se najbolja iskoristenost postize ako se kuh.elemeti postave paralelno, a ne na "L". znaci, na zid levo i na zid desno.
na levi zid, recimo, isli bi elemetni ovim redom:
masina za sudje, sudopera, ladice, frizider (ili sporet). znaci, oko sudopere imamo na obe strane pomalo "daske" za spremanje hrane sto je vrlo znacajno. isto vazi i za sporet: mora biti malo "daske" pored.
na desni zid bi isao sporet (ili frizider) i jedan kuh.element u to udubljenje od 123 cm (fridz/sporet da bude u cosku) , a iznad njega na slici, preko puta frizidera/sporeta, jedan kuh.plakar (dubine jedno 35-40 cm) od poda do plafona koji bi sluzio za odlaganje hrane, posudja itd, jer vi necete imati dovoljno prostora za smestaj kuh.potrepostina, koliko vidim. imacete, sem ladica, fore max. za samo za tri viseca elementa , a to bas i nije nesto...
vitkim shankom bih vizuelno odvojila kuhinju, sa barskim stolicama iz dn.sobe (tako da zausima prostor samo koliko za barske stolice), a u samu dn.sobu bih stavila regularan pravougaoni sto i stolice, niposto okrugli, jer okrugli oduzima mnogo prostora. ako tezis minimalizmu, on ti i ne pashe nego cetvrtasti sa vitkim stolicama.
priznajem da nisam citala bas svaki redak gore ispisan, a i umorna sam (proslo jedan nocu), pa ako sam negde promasila, izvinjavajte 
ali ono sto ne moram da citam, vec jasno vidim sa slike je da je kuhinja minijaturna i da ima taj nezgodan ukoshen zid, te da je potrebna jako, jako dobra organizacija da ne bude posle: radio sam na brzinu, sad se kajem natenane 
javi mi da li ti odgovara ovaj paralelni nacin rasporeda elemenata, pa da eventualno nastavim dalje da drobim... 
Nikola, veliki problem moze da ti predstavlja taj krivi zid pa mi se predlog koji ti je Frau dala cini kao najbolje resenje 
Takodje mi se ne svidja tvoja postavka stola, ne bi imao prostora da se okrenes u kuhinji, sve bi nekako bilo nabudzeno a rekao si da zelis minimalizam. Onda lepo napravi sank izmedju dnevne i kuhinje, em ce biti lepo, em funkcionalnije 
Ovo su neki moji, tj Frau predlozi, a ti vidi sta ti je ciniti, jer ipak na kraju, tu trebas ti da zivis. Da ne zaboravim, sta god da smislis, obavezno se konsultuj sa zenom, da ne bude posle... :hh
P.S. Mozda bi sa slikama bilo lakse, dobili bi neku predstavu o prostoru, ali ako nisi u mogucnosti, nema veze.
Evo i jednog interesantnog linka, pa ti mozda bude od koristi
http://idealna.com/index.php?option=com_content&task=view&id=480&Itemid=89
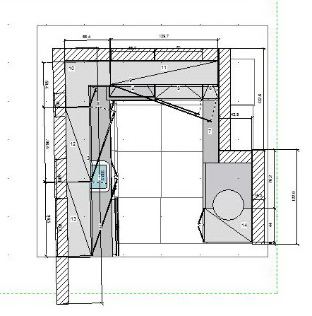
@frau: hvala za iscrpan odgovor. Koliko sam ja shvatio ti bi napravila nešto poput ovog u prilogu?
pogledaj zelenu liniju na nacrtu (pločice na zidu di je sad peć su samo 60 cm postavljene na kratkom zidu od 132)
bdw. sa ovim rasporedom morali bi okrenuti sudoper naopako jer je samo sa jednim udubljenjem, a ispod ravne metalne ploče sudopera mora ići perilica ispod.
@djuma: hvala na korisnom linku, sliku prostora ću kasnije poslati, a zena je tu da blagoslovi svaki moj potez :ahaha
ne, ne tako.
recimo na levom, kosom zidu, isti raspored kakav si i ti gore bio nacrtao (ladice, sudoper, masina za sudje, mrtvi ugao), samo bi u cosku, umesto oker mrtvog ugla, isao ili sporet ili frizider (pozeljno sporet), a ostatak na drugom zidu ne tamo gde si ti to nacrtao, nego nize, u prosirenje od 123 cm dubine 42 cm koje ti je na poslednjoj slici prazno (tamo gde si bio nacrtao sto i stolice). ovako kako si sad postavio elemente, imao bi jako malo prostora izmedju frizidera i sporeta, sto nikako ne bi valjalo, ne bi ni vrata mogao da otvoris. taj deo bi mogao da iskoristis, kako sam vec rekla, za plici plakar od poda do plafona. veruj mi na rec, to je najbolja stvar koju bi tvoja mini kuhinja sadrzavala, jer ne treba smetnuti sa uma da negde morate da drzite spagete, secer, brasno, kese za djubre, neke ekstra tanjire itd...uopste, sve elemente u tako malom prostoru treba podici do plafona!
e sad, posto sudopera i masina za sudje dodju kao set i ne moze da im se menja pozicija, onda bi najbolje radio ovakav raspored na levom zidu (naravno, ako je ovako tehnicki moguce, ne znam u kojoj su fazi instalacije pa navodim idealan slucaj):
- sporet, ladice, masina za sudove, sudopera
u tom slucaju bi tvoja zena imala "daske" i pored sporeta i pored sudopere, sto je zaista neophodno.
svi viseci elementi iznad tog dela kuhinje bi trebali obavezno da idu DO PLAFONA!
na drugi zid (desni) bi isao plici plakar na uzem delu, a na sirem (123 x 42 cm) frizider i jedan donji kuh.element (donji kuh.element, naravno, blize dn.sobi). tu ti plocice na zidu uopste ne trebaju.
u taj kuh.element bih ja stavila duboke fijoke za tanjire, case, solje, vrlo je zgodno imati blizu masine za sudje i kuh.element u koji se odlaze sve ono sto se najcesce upotrebljava.
alternativno tu moze da ide visoki element cija se vrata izvlace i za njih su zakacene police, znaci, izvlaci se ceo sistem sa policama zajedno sa vratima. to je za slucaj da vam vise treba smestajni prostor nego radna ploca (hm).
ako imas dovoljno veliki budzet i zelis da kuhinju sredis tip-top (sto bi rekli u filmu: "malo ali *ebitacno"
), frizider sa panel vratima (istim kao sto je ostatak kuhinje, ugradbeni) bi bio detalj za padanje u nesvest. nemoj da zaboravis na pravilnu orijentaciju vrata frizidera.
ako bi se opredelio za donji kuh.element pored frizidera u toj nishi, razmotri sa stolarom da ti napravi radnu plocu koja se izvlaci ispod topa elementa. imao, bi, znaci, kao lajsnu koja bi se, kad se izvuce, pretvarala u dodatak gornjoj ploci tog elementa, dodatnom radnom prostoru (to isto moze da se izvede i sa uspravnim elementom). ne znam da li razumes sta hocu da kazem. kao ploca koja se izvlaci iz kuh.elementa po potrebi.
posto je kuhinja mala, a ako jos niste kupili sporet, toplo ti preporucujem sporet sa indukcionom plocom is prostog razloga sto ta ploca ne ostaje dugo vrela kao kod regularnih ploca (sto nadalje znaci da, ako nesto pokipi, ne moze da se zapeche kao kod reg.), tako da moze da se iskoristi u vreme kad se ne kuva, kao dodatni radni prostor (neki ovde, ne zna se koji
, na toj ploci drze laptop kad krisom pushe pored filtera za paru, haha). indukcione ploce bih ja nazvala plinom na struju: greju brzinom koju ima plin (kad voda kljuca, recimo, na 8-ici, i ti iskljucis, ona prestaje da kljuca momentalno, kao kad se iskljuci plin), stedljivi su (jer rade samo kad je na njima posuda), ako zaboravis da iskuljcis sporet, on se sam iskljuci, ma mnogo, mnogo prednosti ima ova ploca nad regularnom staklenom. jedino sto treba znati je da radi samo sa s/s posudjem sa namagnetisanim dnom. ja sam, recimo, trebala da se odlucim: cepter ili ta ploca...i odlucila sam se za tu plocu, iako je jeftinija od ceptera, ali te osobine su me kupile i nikad nisam bila srecnija!
sto se tice boje i materijala za kuhinju, iako je mesanje dve boje sad hit, kad je prostor mali, treba se drzati jedne. da li ce to biti drvo ili nesto drugo - stvar je ukusa. samo neka bude sto monolitnije.
shank...
on treba zapravo da bude porub poslednjeg elementa na levom, krivom zidu, ploca koja je nesto visha od elementa samo sa gornjom plocom koja ide prema dn.sobi (gledano s profila - u "L"). posto je prostor mali, isto to bih uradila mozda i sa druge strane, ako je kraj niza donji kuh.element, a ne visoki. napraviti tako da prostor za prolaz bude min. 80 cm, ja mislim da toliko moze da se izgura, ali to je nesto sto ti moras da izmeris, ja bas nisam bliska sa evropskim standardima.
i da ne zaboravim jednu od najvaznijih kuhinjskih dzidza - kantu za djubre. ona mora da ide ispod sudopere.
ja sam ti ovde, pomalo i napamet, nabacala ono sto je po meni najbolje iskoristen prostor, e sad ti vidi sta i kako mozes. uzmi neki komad namestaja ili neku vecu kutiju, pa je stavi odmaknutu 80 cm od zida, 60 cm od zida, koliko god ti ispada razmak izmedju elemenata, pa vidi koliko realno imas prostora za kretanje, otvaranje vrata, ladica itd...jedno je papir, drugo je real life 
aaa, evo i slicice. odlicno.
vidim da su plocice vec postavljene, i u mom predlogu bi ostle vidljive plocice na zidu naspram dn.sobe. no, nista za to, to se da maskirati jednom obicnom, po meri isecenom plocom koja se, recimo, ofarba bojom za skolske table na koju bi se pisalo i crtalo. vi ste mladi, tabla moz' da vam koristi za skolovanje, haha! a bogami i, kad se zakacite, da razmenite misli, a da ne progovorite ni rec
)
(***off topic: posvadjali se muz i zena i - ne govore. posto je ona njega budila svakog jutra u 7 za posao, kad se on probudio u 11, nasao je pored kreveta poruku na papiru: "ustani, sedam je sati"
)
kad budete birali boju kuhinje - mislite dugorocno! ako je crvena trenutni hit, taj hit ce da prodje za kratko vreme, a vama ostaje "demode" situacija. radije se opredelite za neku klasicniju varijantu.
e sad ja to moram sve poloviti, nacrtati, objasniti dragoj pa pošaljem komentar. Neizmjerno sam zahvalan na uloženom trudu frau!
Ajde da pogledamo tu varijantu, grubo nabacano, samo raspored (Ako sam dobro razumela Frau).
Ako je ok idemo dalje
U toj varijanti poprilično smetaju pločice zalepljene na zidu 207cm. Svaka improvizacija (pomenuta ploča) kvari minimalističu ideju po meni
Setih se da sam negde, na nekom podforumu, video lažne prozore. Palo mi je napamet da bi mogao to da uradiš na onom golom zidu u pročelju.
Još ako bi ugradio daylight neonku, imao bi osećaj da je prozor pravi. 
A možeš da razmisliš i o ovakvom stolu, pa će biti mesta za rezance
bravo, bojana, bravo za ove 3D slike! to je otprilike to! ajde dodaj, ako ti nije tesko, na ovaj zid levo, i visece elemente, da vidimo kako pashe.
U toj varijanti poprilično smetaju pločice zalepljene na zidu 207cm. Svaka improvizacija (pomenuta ploča) kvari minimalističu ideju po meni
istina je da bi bilo lepse da nema plocica, ali reko' sad, kad su vec tu, da se necim zamaskiraju...
a reci mi da li ti imas neku ideju u vezi nikoline kuhinje? znam da imas ukusa i maste, pa da pomognemo coveku koliko mozemo 
Nikola za ove savete sto su ti dale Frau i Bojanale, neko bi debelo platio :hh stvarno sam odusevljen njihovom kreativnoscu i brzinom odgovora. Gde mi je bila pamet kad sam projektovao kuhinju :tup uvek kasno saznam da ovde imamo ovakve divne devojke(zene) i ovim putem im se neizmerno zahvaljujem sto postoje i sto ulepsavaju ovaj nas forum 
Da ne bude da samo hvalim a nista ne predlazem - evo i od mene malog doprinosa :eek: ja bih taj zid gde su plocice resio tako da preko plocica ili zalepim laminat ultraplast ili da se obijaju plocice. Takodje bih gledao nekako da sa te strane nekako budu i viseci elementi, ako je ikako izvodljivo, jer prostora za odlaganje stvari uvek treba. U svim ovim kombinacijama frizider bi trebalo izbaciti iz tog coska i staviti u onaj deo najblizi dnevnoj sobi sa desne strane(ako imas mogucnosti obavezno neka bude ugradni, tj da se ne vidi), a pored njega bi napravio jos jedan ormar njegove visine gde bi moglo da stane gomila stvari. Ostaje da vidis gde ces sa sporetom, mada mislim da on moze isto sa te desne strane, ne mora skroz u cosak do zida sa plocicama, nego nekako blize frizideru(naravno da postoji neki deo radne povrsine koji ih razdvaja, bar 20-30cm). Krivo mi je samo sto nisam vican crtanju pa da ti to lepo sve demonstriram, ali da jesam verovatno bih ti onda uzeo i pare za to :hh :hh :hh
ja sam očaran majkemi
trudim se složiti kuhinju, ali ovak nešt mislim da mi ne bi palo na pamet - ovo je predivno.
ploča za kuhanje nesmije biti do zida jer je kosi, pa bi ja na kraj dodao nepravilni pravokutnik širine cca 25 cm sa ladicom priljubljenom na pećnicu (slika u prilogu)
p.s. vidim 2 pećnice.. jel možda ona u ormaru mikrovalna?
uu vidim lijepo renderira taj kitchen draw. nažalost gdje god i koji god Kitchendraw 5.0 skinem baca mi eror odma na početku instalacije.
nabavio sam verziju 4.0 i radi - vrlo jednostavan za hendlanje, samo još nisam nikakve pluginove ubacio jer recimo ne mogu naći frižider, možda se skriva, možda je u šumi 
Program je jako dobar i detaljan, koriste ga ljudi koji prave kuhinje. Možda ima lepših rendera ali ovaj radi u milimetar.
Treba malo vremena da se uđe u štos, a ne trebaju ti plugin-ovi, sve je tu samo isčačkaj.
da ali ti radiš u 5.0? jer meni ni jedna instalacija ne želi krenuti 
Čudi me, ja sam radila u 4.0 ranije a juče skinula 5.0 bez problema!
Ako ne uspeš postaviću jedan isto odličan, lepši prikazi ko smišljeni za minimalističke enterijere ali nije tako detaljan kao KD
Pogledaj po forumu, imas par programa kojima moze sam da uklopis kuhinju i ubacis elemente pa cak i da vidis u 3D. Imas program od IKEA-e besplatan je cak mislim da ga ima i na njihovom sajtu bas za projektovanje kuhinja.