@BOSSKE hvala na odgovoru.
Trenutno zivimo u kuci sagradjenoj jos davne 1945 mesovito cerpic i cigla, karatavan. To sve stoji nepomereno. Najradije bih nadogradio staru kucu, bruto povrsine je 52m^2, mada svi faktori govore da je jeftinije napraviti novu nego nadogradjivati staru. Mali je plac a stara kuca koristi dok se ne izgradi nova. Nova kuca se mogla udaljiti na 1m kao sto je arhitekta predvidela ali prilikom lokacijske rekli su da mora ovako..Prozori moraju da su udaljeni na 2.5m od komsijskih placeva.
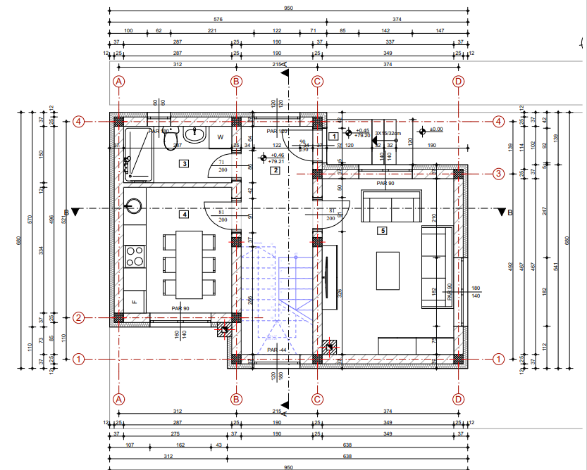
Na nacrtu prizemlja ukupne dimenzije su 950x680. To su dimenzije s uracunatom izolacijom. Bez izolacije to je (950-24) x (680-24). Ispod izolacije cenim da svakako ne ide temelj. Ja se ovde najvise pitam da li bih mogao napraviti temelj mozda cak u punoj dimenziji 950x680 pa mozda cak ici na ciglu i po svugde po spoljasnjim zidovima ? Preko da ne ide nikakva izolacija zasad vec omalterisem samo, to bi bilo u propisanih 950x680 ukupno, samo bez izolacije. Mada koliko cujem postoji ta kontrola kad se temelj napravi da li je tacan gabarit..Ako i ne mogu svugde onda makar s te komsijske strane da bude cigla i po i da ne stavljam izolaciju tamo. Ako bude morao tacan gabarit temelja, onda ako idem na ciglu i po, s te strane gubim oko 1m^2 korisne povrsine, a prema komsiji je luft oko 12cm.
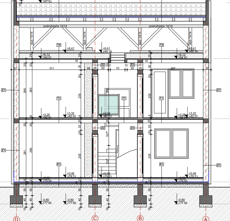
Ako uradim vertikalne serklaze i omalterisem samo, onda s te strane po uglovima u prostorijama se vuce kondenzacija, tako nesto sam cuo.. Ako bih svugde radio spoljasnje zidove ciglom, na ciglu i po (37cm), da li serklaz mora biti 37cmx37cm? Ili je dovoljno 25x25, cini mi se da bi to ublazilo kondenzaciju, ako se spolja samo malterise? Pocetnik sam u svemu ovome, a cilj mi je da naucim da ovo radim i smanjim kredite za otplatu..
Ne bih da pametujem, ali zar nisi mogao kucu pomjeriti za jedan metar makar od komsijine, mada ne znam ni kako dopustaju zidanje zid na zid, kad su kod mene po urbanistickom planu trazili minimum 2,5m da kuca bude udaljena od ivica placa.
Za temelje ne znam, ali napaticete se sa fasadom samo tako, i to koliko vidim morace da se radi fasada zajedno sa zidanjem, uz gomilu problema, kako zasalovati, i skinuti salunge sa stubova, a i kamena vuna koja bude na otvorenom izmedju tvoje i komsijine kuce ce primiti vlagu i mislim da je takva izolacija uzaludno bacanje para. da si bar metar odvojio kucu od komsije, mada i to je malo, moglo se nekako skelom prici pa postaviti fasada kako Bog zapovijeda, i da nemas problema.
Temelje mozes uraditi da budu i 2 metra sirine, nista ne skodi, samo se ne radi, jer je to bacanje para. a mogu da odstupaju dimenzije, samo da ne idu na ustrb dimenzije cokle, tj da cokla cijelom duzinom stabilno nalijeze na temelj. Dosta kuca po Vojvodini i nema temelje uopste, jer temelj sluzi da ima tezina kuce na sta da se osloni, i zadrzi kucu da ne krene kliziste, sto u ravnici nema ni teoretske sanse da se desi.
Sav beton i armatura na kuci sluzi samo i iskljucivo samo da drzi konstrukciju objekta u slucaju potresa, klizista ili ulijeganja, ranije se ni armatura nije ubacivala u beton, pa izgurase kuce i po 100 godina. Jedini problem je ako krene da se mrda tlo, onda dodje do situacije, kao sto sam vidio zanimljivost u mjestu Skala, na Kefaloniji, da citavo selo bude bukvalno otreseno i sravnjeno, prilikom zemljotresa, kao da je neko uzeo kuce i otresao sa njih materijal.
Bez serklaza i stubova moze da se desi recimo da posle x godina dodje do utanjanja tla i da se otkine dio kuce, obicno cosak, da pucaju zidovi mnogo laske, jer zemlja radi, krtice kopaju tlo, voda ispira, ima tu mali milion faktora koji se desavaju.
Sto se stuba tice ispod terase, ako se dobro armira i uradi ojacanje, mozda i mala upustena greda, mislim da ne bi trebalo da bude problema da nosi tu tezinu, opet ima strucnijih ljudi pa ce te sigurno posavjetovati. Ali svakako mozes kad zavrsis sve, dodati taj stub, ukoliko bi bio potreban.