šeme kopčanja prekidača
Želio bi da ova tema ostane ovako bez komentara tako da je vremenom dopunjavam i kad nekom nešto zatreba lakše će se snaći
šeme kopčanja prekidača
šeme kopčanja prekidača sa lampama,šeme flou lampi i česti kvarovi na njima
Ko sve ovo pročita i shvati - može sam da izvodi elektroinstalaciju.
Sretao sam majstore elektičare koji ne znaju ni polovinu ovoga iznad.
HVALA AUTORU !
Onda to što si sretao nisu bili električari a kamoli majstori....
Onda to što si sretao nisu bili električari a kamoli majstori....
Još da je naveden izvor informacija, kao stari SAM, na primer, pa bi ljudi mogli još po nešto korisnu da nadju u knjigama i starim časopisima, a ne da dobiju samo na kaščicu.
Nije mi jasan komentar,objasni molim te
objasni ovaj komentar
Na tavanskim stepenicama hocu da uradim osvjetljenje sa dvije sijalice od po 60 w (znaci bice spojene serijski) koje bi palio i gasio sa dva jednopolna izmjenicna prekidaca na dnu i na vrhu stepenista.
Da li ce se prekidaci grijati jer na njima pise da se koriste za paljenje-gasenje jedne sijalice sa dva mjesta?
Hvala unaprijed.
Imaš lustere kjoji imaju više sijalica i prekidač to odrađuje bez problema.
Na prekidaču imaš oznaku koliku struju može da prekida i to je verovatno 10A što je daleko više nego što će te sijalice da vuku.
Sijalice ćeš valjda vezati paralelno međusobno, zašto serijski?
Hvala puno na odgovoru.
Steta ali na ovim novim prekidacima ne pise amperaza.
Mislio sam jednostavno na jednu crnu zicu koja vodi od prekidaca spojiti jos jednu i tu istu provuci do druge sijalice, a tako isto i nulu- plavu zicu. (ugradio sam plasticne cijevi izmedju galerije na tavanu i spustenog plafona od gipsanih ploca u koji sam ugradio upustene lampe sa reflektorskim sijalicama , da li je to serijsko ili paralelno kopcanje pojma nemam)
To je paralelno vezivanje.
Na prekidacu pise 10X i 250V, izgleda ovo 10x je umjesto Ampera, znaci po tvome mogu spojiti dvije sijalice bez problema.
Molim za stručnu pomoć!
Kupio sam nekakvu prastaru vikendicu i renoviram je po sistemu sam svoj majstor.
Problem je u elektro instalaciji gdje je prava zbrka. Svi provodnici su crne boje . Faza nije problem. Kako da odredim koji vod mi je uzemljenje a koji nula??? Prema čemu da se rukovodim, i šta se može dogoditi ako ih zamijenim a posle toga uključim neki veći potrošač (npr. TEA peć, boiler ili veš mašinu)?
Paaa ako zameniš fazu i zemlju ceo uređaj tj. njegova spoljašnjost i metalni delovi koji su inače izloženi dodirima će biti pod naponom i prvi ko ih dodirne će biti smlaćen strujom, a ako zameniš fazu i nulu u zavisnosti od uređaja ili će prekidač umesto faze prekidati nulu pa će u unutrašnjosti uređaja sve biti pod naponom ili neće biti ništa jer to ti je kao kad utikač okreneš i uključiš u utičnicu (za monofaznu struju) kod trofazne je već ozbiljni slučaj i rezultat je iskakanje osigurača ako si zaista srećan ili pregorevanje uređaja, mogući požar i opet nečija pogibija. U svakom slučaju preporuka je obavezno pozvati nekog stručnog električara da na licu mesta proveri situaciju i da predlog šta i kako dalje jer se sa stujom nije igrati.
Hvala Peca..
Mozda se vnismo dobro razumeli ali meni je problem nule i zemlje, kako naci koja je koja? fazu je lako naci tinjalicom kad je ukljucena struja. Kada mjerim instrumentom imam napon na uticnici izmedju faze i nule isti kao i izmedju zemlje i faze. (naravno ja tu ne znam koje je nula a koja faza? Kako da odredim koji vod mi je uzemljenje a koji nula??? Prema čemu da se rukovodim, i šta se može dogoditi ako ih zamijenim a posle toga uključim neki veći potrošač (npr. TEA peć, boiler ili veš mašinu)?
Pogledaj malo bolje te crne provodnike moguće je da imaju brojeve na sebi. Ako imaju onda skini masku sa utičnice (pre toga isključi struju) pa pogledaj gde je koja žica vezana. A ako nije tako nadji električara pa neka vidi da li može sistem zaštite da se izvede nulovanjem.
Raspitaj se da li je cela mreza nulovana,tj uzemljena,sko jeste onda je nula i uzemljenje prespojeno tako da ti to ne stvara nikakav problem ako zamenis na utikacima
Uzmi momce jedan duzi izolovani kabal (recimo kupis dvozilni kabal za stonu lampu pa ga pocepas na dva dela i sastavis da dobijes 10tak metara) i kupis ili nabavis
dve krokodil stipaljke koje povezes na krajeve kabla onda nabavis jednu batriju i sijalicu ili uzmes univerzalni merac koji meri odpornost i sve to prikacis pa onda na posao ((ISKLJUCIS STRUJU ODVRNES OSIGURACE I STAVIS IH U SVOJ DZEP)) - skines sve poklopce razvodnih kutija i prekidace i utikace pa trazis koji kraj na razvodnoj kutiji je povezan sa krajem prekidaca ili uticnice. Obelezis kablove i posao zavrsen. E sad ako to nisi razumeo onda cu i da ti nacrtam
:)
samo ako mi budes trazio.
jedno pitanje,pa ko mozhe,neka mi pomogne,unapred hvala 
od kutije mi ide kabal do prekidacha...od tog prekidacha,idu tri kabla za sijalice...do sada mi je radila samo jedna sijalica,i sada hocu da stavim josh dve,na svaki od pomenutih kablova,po jednu,i da svaka ima prekidach za sebe,bez obzira shto imaju taj jedan koji je glavni,i kada je struja na njemu iskljuchena,nece biti struje ni na ova dva..no,to nema veze 
zanima me samo,kako da ih povezhem,poshto pokushavam neshto sam da uradim kuci 
poshto prekidach ima dve kleme,ja sam fazu tj.crnu zhicu kroz koju protiche struja i koja dolazi do novog prekidacha povezao sa novom fazom,kroz koju tek treba da protiche struja....u drugu klemu sam povezao dve nule,na isti nachin,ali neshto nece....do kog problema je doshlo,i kako ga mogu reshiti? 
Evo ti sema u boji - ako to radis kako si zamislio onda ova sema ti odgovara ne zaboravi da nula ne ide na prekidac vec ide direktno na sijalicu samo faza ide na prekidac i sa njega na sijalicu.
E majstori ovako.
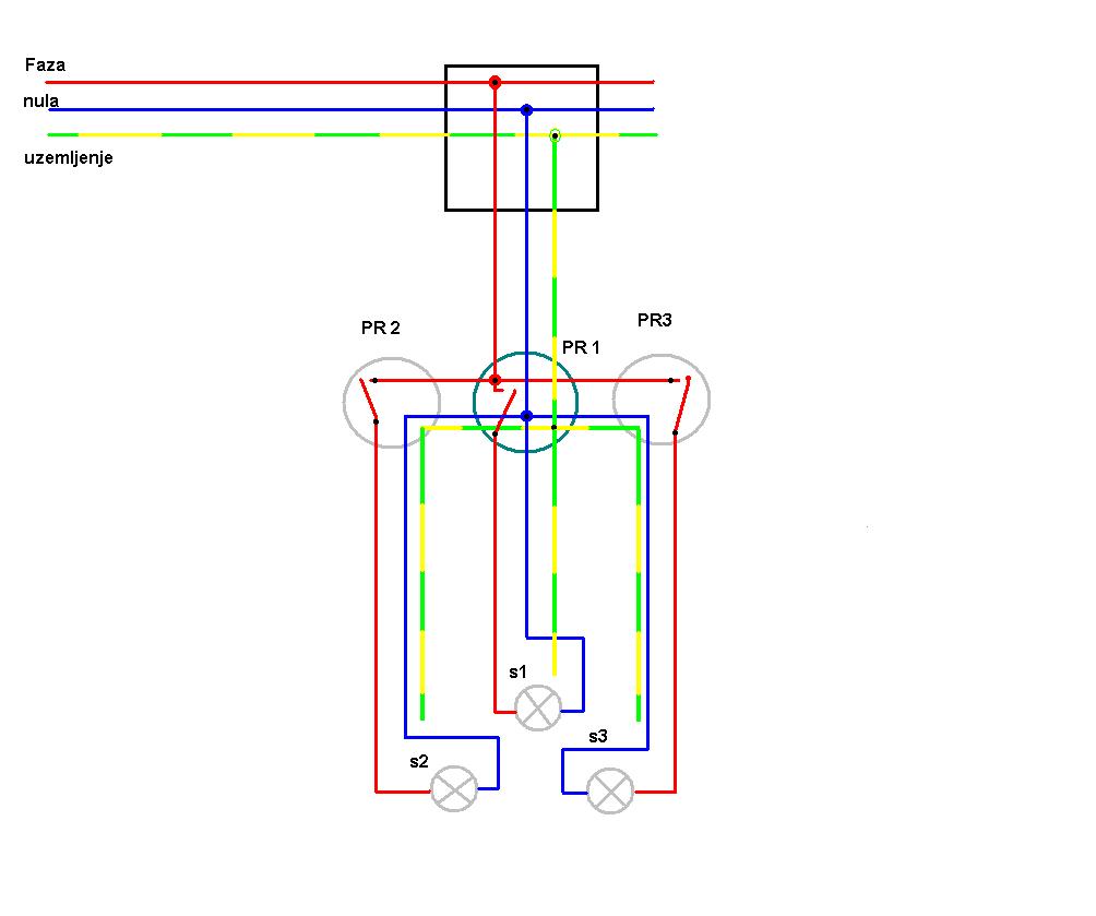
Koliko sam ja ovde uspeo da nešto nadjem i pročitam ja sam sebi po tim textovima napravio neku šemu,e ako ova šema valja onda sam nešto i razumeo pa i naučio.Molim majstore da pogledaju pa da kažu,hvala u napred! 
Peca,svaka čast na slikovitom objašnjenju,jako poučno!Meni kao amateru ili početniku u ovom delu gradjevinskih poslova dodje da nikada u životu ove kablove ni u prodavnici na stelažu u koturu ne dotaknem a kamoli da ih stavljam u zid!!Ali zaista mi se svidja vaše objašnjenje,pozdrav...
Ta šema, što si je nacrtao, principijeno je u redu.To će raditi tako ako se spoji, medjutim nije dobro mešati babe i žabe, što bi rekli.Strujni krug gde je sijalično mesto osigurava se sa slabijim osiguračem i koriste se provodnici manjeg poprečnog preseka od provodnika za utičnice, koji se osiguravaju sa minimum 16A.U projektovanju instalacija postioje pravila kojih se treba držati, medjutim ovde na forumu je postalo uobičajeno, ajde da zaobidjemo pravila i da bude što jeftinije, pa makar kako to bilo.Prema fotografiji sa nika zaključujem da si vozač profesionalac, pa bi to bilo ko kad bi na taj kamion navuko traktorsku gumu.Što, važno je da ima guma na felni.
Aha,što znači da pored ovih kablova sada koji su na tom crtežu treba teoretski vuci plus još druge kablove za sijalično mesto da se ne bi sijalično mesto vezalo za ove postojece na crtežu,ako sam dobro razumeo?Hvala na ispravci,pozz.
Upravo tako, moraju biti razdvojena ta dva strujna kruga i vezani svaki na odgovarajući osigurač.
Znači i ovaj deo gradiva smo utvrdili.Ako je moguce samo saznati koji kablovi su poželjni za ovako zamišljen posao?Znači rasveta i utikači?A kasnije bi me interesovala i trofazna,mislim da ce me sve u vezi instalacije kablova interesovati al ajde za sada ovo,hvala 
Moj stav je poznat, elektrotehnika se ne uči na forumu.To nije igra, uostalom kao i vožnja.Mora neko da verifikuje znanje, a tek posle dosta iskustva i predjenih kilometara dobija se viša kategorija (tj. polaže) za upravljanje motornim vozilima.Imam ih od A do D, pa mogu i o tome da pričam.
Alexander, na šemi ti piše utikač, trebalo bi da bude utičnica.
Do sijaličnih mesta takođe dovedi uzemljenje.
Za utičnice 2,5 mm2, a za sijalična mesta 1.5 mm2, ako je postojeća instalacija za normalne potrošače koji se koriste u domaćinstvu.
Links:
[1] http://www.samsvojmajstor.com/portal/sites/default/files//sites/default/files/instal_8.jpg
[2] http://www.samsvojmajstor.com/portal/sites/default/files//sites/default/files/instal_7.jpg
[3] http://www.samsvojmajstor.com/portal/sites/default/files//sites/default/files/instal6.jpg
[4] http://www.samsvojmajstor.com/portal/sites/default/files//sites/default/files/instal_5.jpg
[5] http://www.samsvojmajstor.com/portal/sites/default/files//sites/default/files/instal_4.jpg
[6] http://www.samsvojmajstor.com/portal/sites/default/files//sites/default/files/instal_3.jpg
[7] http://www.samsvojmajstor.com/portal/sites/default/files//sites/default/files/instal_2.jpg
[8] http://www.samsvojmajstor.com/portal/sites/default/files//sites/default/files/instal1.jpg
[9] http://www.samsvojmajstor.com/portal/sites/default/files//sites/default/files/instal_16.jpg
[10] http://www.samsvojmajstor.com/portal/sites/default/files//sites/default/files/instal_15.jpg
[11] http://www.samsvojmajstor.com/portal/sites/default/files//sites/default/files/instal_14.jpg
[12] http://www.samsvojmajstor.com/portal/sites/default/files//sites/default/files/instal_13.jpg
[13] http://www.samsvojmajstor.com/portal/sites/default/files//sites/default/files/instal_12.jpg
[14] http://www.samsvojmajstor.com/portal/sites/default/files//sites/default/files/instal_11.jpg
[15] http://www.samsvojmajstor.com/portal/sites/default/files//sites/default/files/instal_10.jpg
[16] http://www.samsvojmajstor.com/portal/sites/default/files//sites/default/files/instal_9.jpg
[17] http://www.samsvojmajstor.com/portal/sites/default/files//sites/default/files/prekida__i.jpg
[18] http://www.samsvojmajstor.com/portal/sites/default/files//sites/default/files/smetnje_i_kvarovi_na_fsn-kama_2.jpg
[19] http://www.samsvojmajstor.com/portal/sites/default/files//sites/default/files/smetnje_i_kvarovi_na_fsn-kama.jpg
[20] http://www.samsvojmajstor.com/portal/sites/default/files//sites/default/files/spojevi_svjetiljki-fluoroscentne_lampe.jpg
[21] http://www.samsvojmajstor.com/portal/sites/default/files//sites/default/files/spojevi_svjetiljki_jedan_primjer_stubi__ta.jpg
[22] http://www.samsvojmajstor.com/portal/sites/default/files//sites/default/files/spojevi_svjetiljki4.jpg
[23] http://www.samsvojmajstor.com/portal/sites/default/files//sites/default/files/spojevi_svjetiljki3.jpg
[24] http://www.samsvojmajstor.com/portal/sites/default/files//sites/default/files/spojevi_svjetiljki2.jpg
[25] http://www.samsvojmajstor.com/portal/sites/default/files//sites/default/files/spojevi_svjetiljki1.jpg
[26] http://www.samsvojmajstor.com/portal/forums/gradjevinarstvo/elektroinstalacije/kratke-upute-za-elektroinstalacije#comment-320830
[27] http://www.samsvojmajstor.com/portal/users/zlatan
[28] http://www.samsvojmajstor.com/portal/forums/gradjevinarstvo/elektroinstalacije/kratke-upute-za-elektroinstalacije#comment-320831
[29] http://www.samsvojmajstor.com/portal/forums/gradjevinarstvo/elektroinstalacije/kratke-upute-za-elektroinstalacije#comment-320832
[30] http://www.samsvojmajstor.com/portal/forums/gradjevinarstvo/elektroinstalacije/kratke-upute-za-elektroinstalacije#comment-320833
[31] http://www.samsvojmajstor.com/portal/users/expert
[32] http://www.samsvojmajstor.com/portal/forums/gradjevinarstvo/elektroinstalacije/kratke-upute-za-elektroinstalacije#comment-320834
[33] http://www.samsvojmajstor.com/portal/users/darkos
[34] http://www.podsvojostreho.net/adserver/www/delivery/ck.php?n=a9b20567&cb=12354551126612312
[35] http://www.samsvojmajstor.com/portal/forums/gradjevinarstvo/elektroinstalacije/kratke-upute-za-elektroinstalacije#comment-320835
[36] http://www.samsvojmajstor.com/portal/forums/gradjevinarstvo/elektroinstalacije/kratke-upute-za-elektroinstalacije#comment-355895
[37] http://www.samsvojmajstor.com/portal/users/zvukoljub
[38] http://www.samsvojmajstor.com/portal/forums/gradjevinarstvo/elektroinstalacije/kratke-upute-za-elektroinstalacije#comment-356077
[39] http://www.samsvojmajstor.com/portal/forums/gradjevinarstvo/elektroinstalacije/kratke-upute-za-elektroinstalacije#comment-356079
[40] http://www.samsvojmajstor.com/portal/forums/gradjevinarstvo/elektroinstalacije/kratke-upute-za-elektroinstalacije#comment-371987
[41] http://www.samsvojmajstor.com/portal/user/93515
[42] http://www.samsvojmajstor.com/portal/forums/gradjevinarstvo/elektroinstalacije/kratke-upute-za-elektroinstalacije#comment-371991
[43] http://www.samsvojmajstor.com/portal/users/datas
[44] http://www.samsvojmajstor.com/portal/forums/gradjevinarstvo/elektroinstalacije/kratke-upute-za-elektroinstalacije#comment-371999
[45] http://www.samsvojmajstor.com/portal/forums/gradjevinarstvo/elektroinstalacije/kratke-upute-za-elektroinstalacije#comment-372003
[46] http://www.samsvojmajstor.com/portal/forums/gradjevinarstvo/elektroinstalacije/kratke-upute-za-elektroinstalacije#comment-372011
[47] http://www.samsvojmajstor.com/portal/forums/gradjevinarstvo/elektroinstalacije/kratke-upute-za-elektroinstalacije#comment-375642
[48] http://www.samsvojmajstor.com/portal/users/mrrki
[49] http://www.samsvojmajstor.com/portal/forums/gradjevinarstvo/elektroinstalacije/kratke-upute-za-elektroinstalacije#comment-375644
[50] http://www.samsvojmajstor.com/portal/users/peca
[51] http://www.samsvojmajstor.com/portal/forums/gradjevinarstvo/elektroinstalacije/kratke-upute-za-elektroinstalacije#comment-375647
[52] http://www.samsvojmajstor.com/portal/forums/gradjevinarstvo/elektroinstalacije/kratke-upute-za-elektroinstalacije#comment-375656
[53] http://www.samsvojmajstor.com/portal/users/svetleći
[54] http://www.samsvojmajstor.com/portal/forums/gradjevinarstvo/elektroinstalacije/kratke-upute-za-elektroinstalacije#comment-375949
[55] http://www.samsvojmajstor.com/portal/users/pirke
[56] http://www.samsvojmajstor.com/portal/forums/gradjevinarstvo/elektroinstalacije/kratke-upute-za-elektroinstalacije#comment-375958
[57] http://www.samsvojmajstor.com/portal/users/probisvet
[58] http://www.samsvojmajstor.com/portal/forums/gradjevinarstvo/elektroinstalacije/kratke-upute-za-elektroinstalacije#comment-376428
[59] http://www.samsvojmajstor.com/portal/users/zoffman
[60] http://www.samsvojmajstor.com/portal/sites/default/files//sites/default/files/slika.png
[61] http://www.samsvojmajstor.com/portal/forums/gradjevinarstvo/elektroinstalacije/kratke-upute-za-elektroinstalacije#comment-376435
[62] http://www.samsvojmajstor.com/portal/sites/default/files//sites/default/files/vezivanje_sijalice_1.jpg
[63] http://www.samsvojmajstor.com/portal/forums/gradjevinarstvo/elektroinstalacije/kratke-upute-za-elektroinstalacije#comment-382585
[64] http://www.samsvojmajstor.com/portal/users/alexander
[65] http://www.samsvojmajstor.com/portal/sites/default/files//sites/default/files/elektro_schema.png
[66] http://www.samsvojmajstor.com/portal/forums/gradjevinarstvo/elektroinstalacije/kratke-upute-za-elektroinstalacije#comment-382587
[67] http://www.samsvojmajstor.com/portal/forums/gradjevinarstvo/elektroinstalacije/kratke-upute-za-elektroinstalacije#comment-382592
[68] http://www.samsvojmajstor.com/portal/forums/gradjevinarstvo/elektroinstalacije/kratke-upute-za-elektroinstalacije#comment-382596
[69] http://www.samsvojmajstor.com/portal/forums/gradjevinarstvo/elektroinstalacije/kratke-upute-za-elektroinstalacije#comment-382597
[70] http://www.samsvojmajstor.com/portal/forums/gradjevinarstvo/elektroinstalacije/kratke-upute-za-elektroinstalacije#comment-382621
[71] http://www.samsvojmajstor.com/portal/forums/gradjevinarstvo/elektroinstalacije/kratke-upute-za-elektroinstalacije#comment-382622
[72] http://www.samsvojmajstor.com/portal/forums/gradjevinarstvo/elektroinstalacije/kratke-upute-za-elektroinstalacije#comment-382634
[73] http://www.samsvojmajstor.com/portal/print/forums/gradjevinarstvo/elektroinstalacije/kratke-upute-za-elektroinstalacije?page=1
[74] http://www.samsvojmajstor.com/portal/print/forums/gradjevinarstvo/elektroinstalacije/kratke-upute-za-elektroinstalacije?page=2
[75] http://www.samsvojmajstor.com/portal/print/forums/gradjevinarstvo/elektroinstalacije/kratke-upute-za-elektroinstalacije?page=3
[76] http://www.samsvojmajstor.com/portal/print/forums/gradjevinarstvo/elektroinstalacije/kratke-upute-za-elektroinstalacije?page=4
[77] http://www.samsvojmajstor.com/portal/print/forums/gradjevinarstvo/elektroinstalacije/kratke-upute-za-elektroinstalacije?page=5
[78] http://www.samsvojmajstor.com/portal/forums/gradjevinarstvo/elektroinstalacije
drugi dio