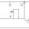
Pozdrav, radim adaptaciju stare sobe gips-karton plocama pa sam razmisljao da sam razvedem struju u toj sobi. Dovukao bih novu struju od sata a staru struju bi ponistio. Skicirao sam sobu pa ako je neko voljan neka mi napise kako sve to da povezem ili cak neka nacrta na ovoj mojoj skici.
Interesuje me koje kablove treba da koristim za uticnice, prekidace i svetlo a koji kabl mi treba od sata do razvodne kutije.
Unapred hvala!
