Postovani majstori i strucnjaci,
vec sam trazila pomoc na sajtu i zahvaljujuci Vasim odgovorima, resila problem.
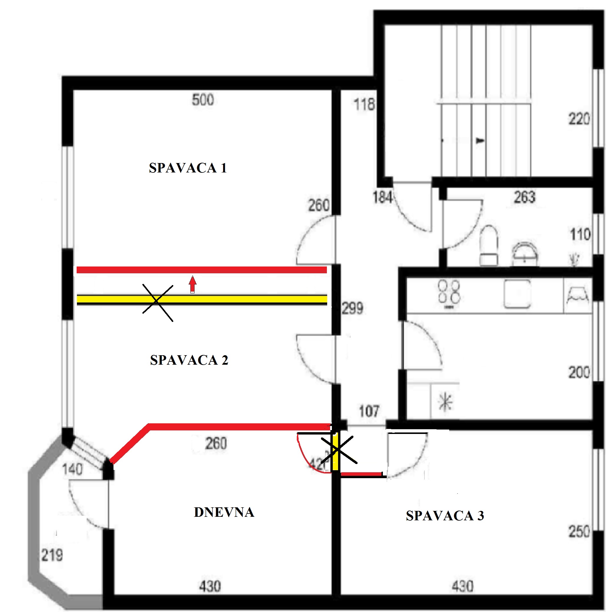
Sada imam pitanje za nekoga ko moze da mi kaze kako da pregradim stan, da se dobije funkcionalniji prostor. Ja sam nesto kao pokusala, ali slaba vajda od toga. Znam da cete vi to bolje od mene odraditi.
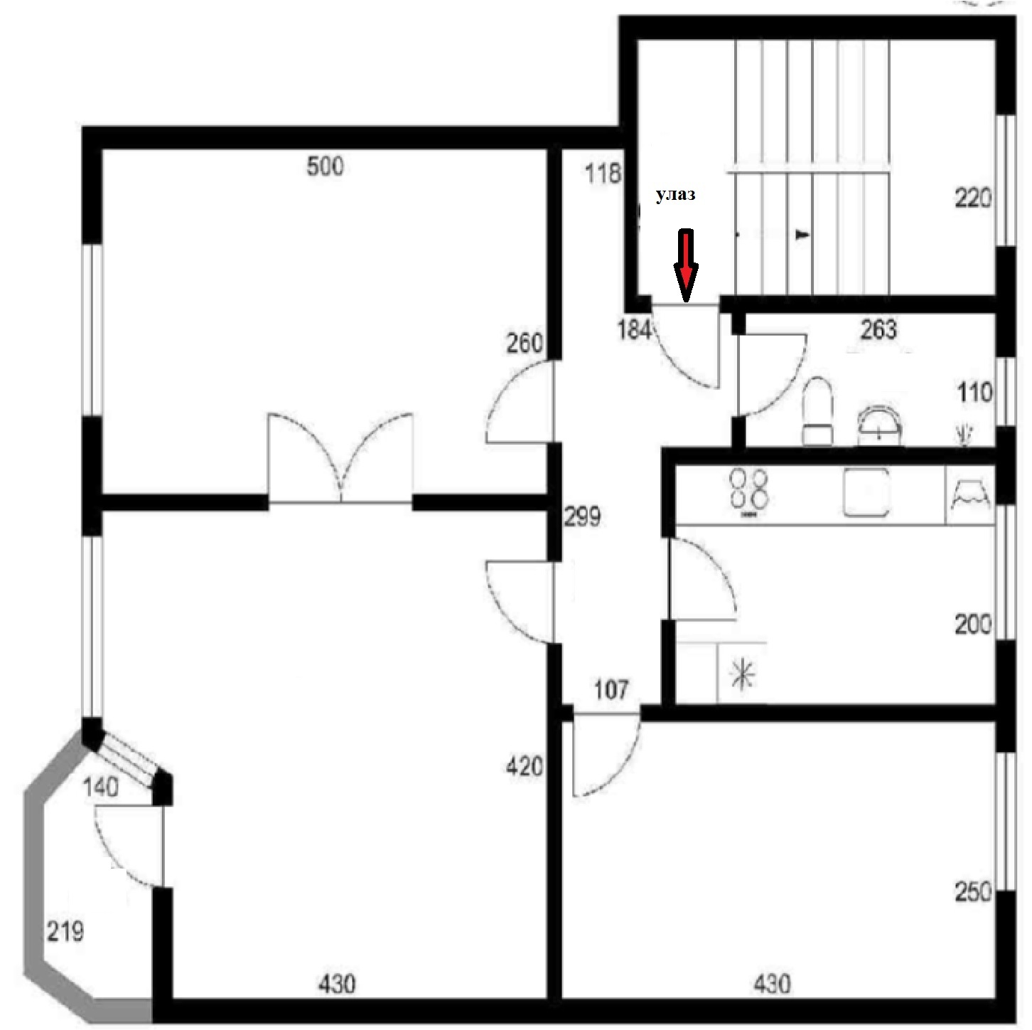
Postavila sam sliku, pa ako neko moze da pomogne...
U stanu treba da zive roditelji i deca razlicitog pola, pa bismo da svako ima svoju sobu. Prakticno, 2 sobe za decu i soba za roditelje.
Dnevni boravak bi trebao da ostane samo dnevni, sa izlazom na terasu. Znaci roditelji ne spavaju tu, nego u svojoj sobi.
I, da, umalo da zaboravim da pitam. Cime je najbolje pregradjivati?
Hvala unapred svima koji odgovorite.

Najbolje je pregradjivati gips plocama. E sad postavlja se pitanje kako organizovati taj prostor. Prva ideja koja mi se javila da onu sobu 500x260 pregradite na pola i izbijete jos jedna vrata a ona koja vode i dnevnog boravka zatvorite ali to bas nije dobra ideja jer ta prostorija ima samo 11 m2 pa kada se podeli to je bas malo po mom misljenju. Verovatno ce se javiti jos neko sa boljam idejom.