Planiram praviti vikendicu tipa a frame imam nekoliko pitanja.Objekat bi trebao biti 8x5,rogovi 6 do 6.5 m,temelj od betona,zadascano falcovanom daskom i pokriveno sendvic panelima od 8cm plan je i zimi provoditi vreme u objektu.Pitanje je koja dimenzija rogova bi trebala biti i razdaljina izmedju dva roga.Ima svakakvih planova ali nista konkretno.Neko kaze 20x8 neko 15x5 itd.Da napomenem radio bi od camove gradje.Unapred hvala.
A frame kuca pomoc
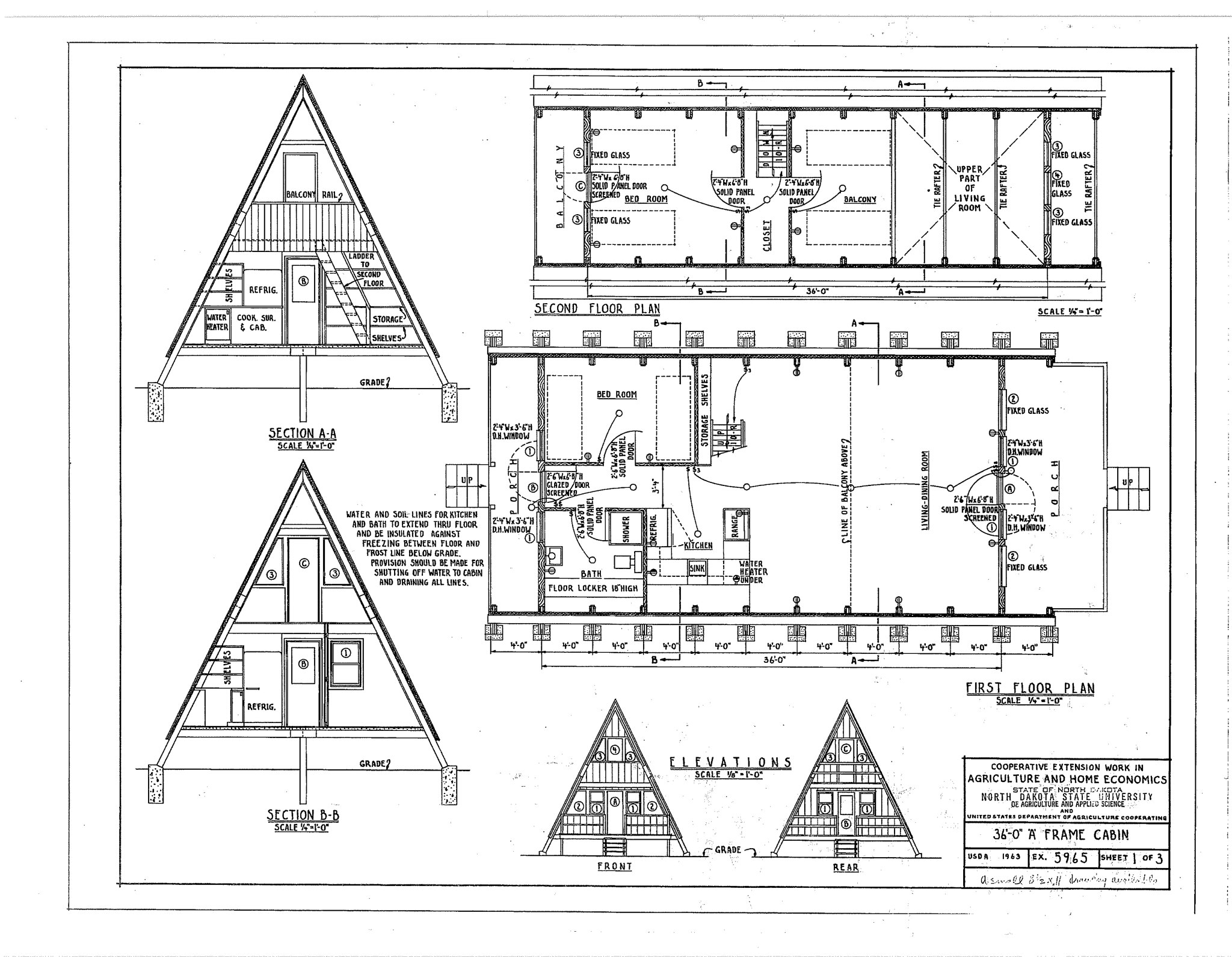
https://www.pinterest.com/pin/688487861763120097/
Evo nekog plana kako bi trebalo to da izgleda.E sad sta da kazem za zemljiste,tvrda podloga nekih 200 m od reke ali nije plavno i vec ima nekoliko vikendica u blizini ravno ko tepsija.Ja bi radio klasican temelj od betona a ne sa ovim stopama to mi se nesto ne svidja.Na bocnim stranama temelja postavio grede na koje bi lezali rogovi.Znaci jedina dilema dimenzija rogova da ne budu preglomazni a ni slabi.
I da hvala na dobrodoslici.
Rog 5x15cm bi možda mogao da prođe jer je 5m baš mali raspon za ovaj sistem. Štaviše i sami sendvič paneli nose dosta. Zato i mogu da prođu ovako male dimenzije roga. Ipak najbolje bi bilo da se sračuna tačno. Verovatno bi zatražilo malo veću visinu tipa 5x18cm. Nemam iskustva kako bi se ponašala ova konbinacija. Nezgodan bi bio rad i ukrupnjavanje konstrukcije. Kad pogledate 6.5m rog a tanak 5cm to se uvija kao zmija. Dok napravite nosače, uspravite i povežete elemente u prostorno stabilnu konstrukciju. Posle je lako. Razmak rogova bi za ovako male dimenzije trebalo da bude kao i na klasičnim krovovina 80-tak cm (zbog daščanja). Može razmak da ide i više nije problem jer niste ograničeni krovnim pokrivačem (kao kod crepa jer ne mogu letve da prenesu veći raspon).
Temeljni zid mora da se završi profilisanim serklažom (da bude sa kosim čelom) da rogovi upru celom površinom poprečnog preseka u oslonac a ne da se zasecaju.
Uvek se potrudite da okačite fotografiju a ne link ka nekoj stranici.
Pozdrav svima na forumu, ja sam u ovome pocetnik pa nemojte zamjeriti ako sam promasio mjesto gde da pisem o ovoj temi. Naime trebaju mi iskustva majstora koji su radili drvene vikendice konkretno me zanima model A-frame tj. Vikendice u obliku trougla. Dali neko ima crtez detaljne izgradnje konstrukcije ili nesto slicno sto bi mi pomoglo da vidim koje daske da kuoim koliko komada koje togove i koju debljinu itd itd. Svaka informacija i crtez konstukcije bi mi dobro dosao. Planiram osnovu da bude 6x6m ili 6x7 m. Ako neko nesto moze mi pomoci??? Evo i slika odprilike sta bi pravio.
Zaboravio sam naglasiti da bi kucicu pravio na betonske stubove nebi radio betonsku plocu.

Strasni, dobro došli na forum. Niko ne može da Vam odgovori tačno sa sigurnošću na pitanja koje ste postavili. Morate da imate barem neku fotografiju, skicu, najosnovniji plan kako to izgleda u poprečnom preseku. Gde se šta oslanja, na kojoj visine, kako se prenosi opterećenje sa jednog na drugi konstruktivni element, gde je lokacija objekta,...