Kao sto i naslov kaze, potrebna mi je preporuka za odgovornog izvodjaca radova. Kuca se zida na prolece, na Zlatiboru, ispod Spomenika.
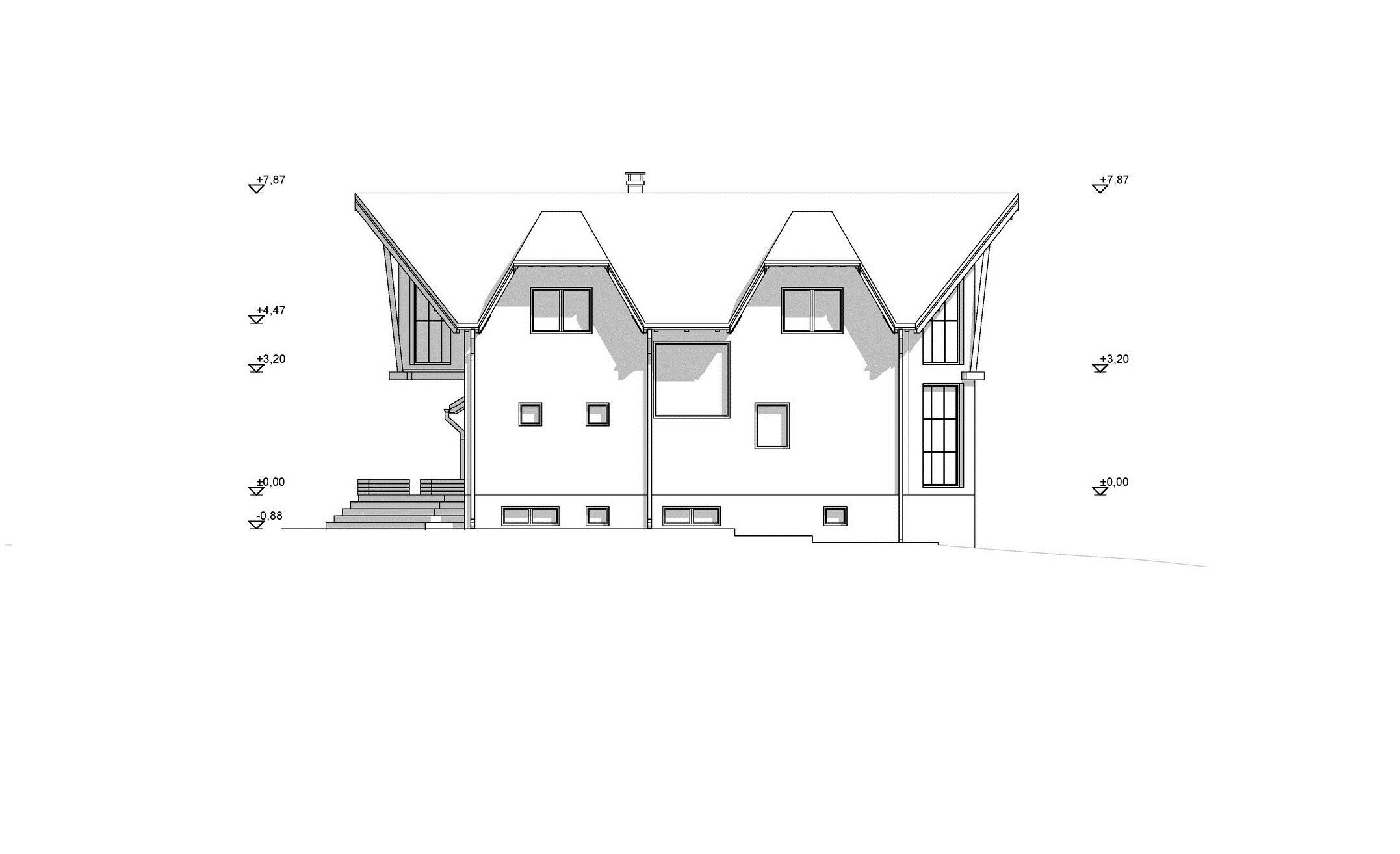
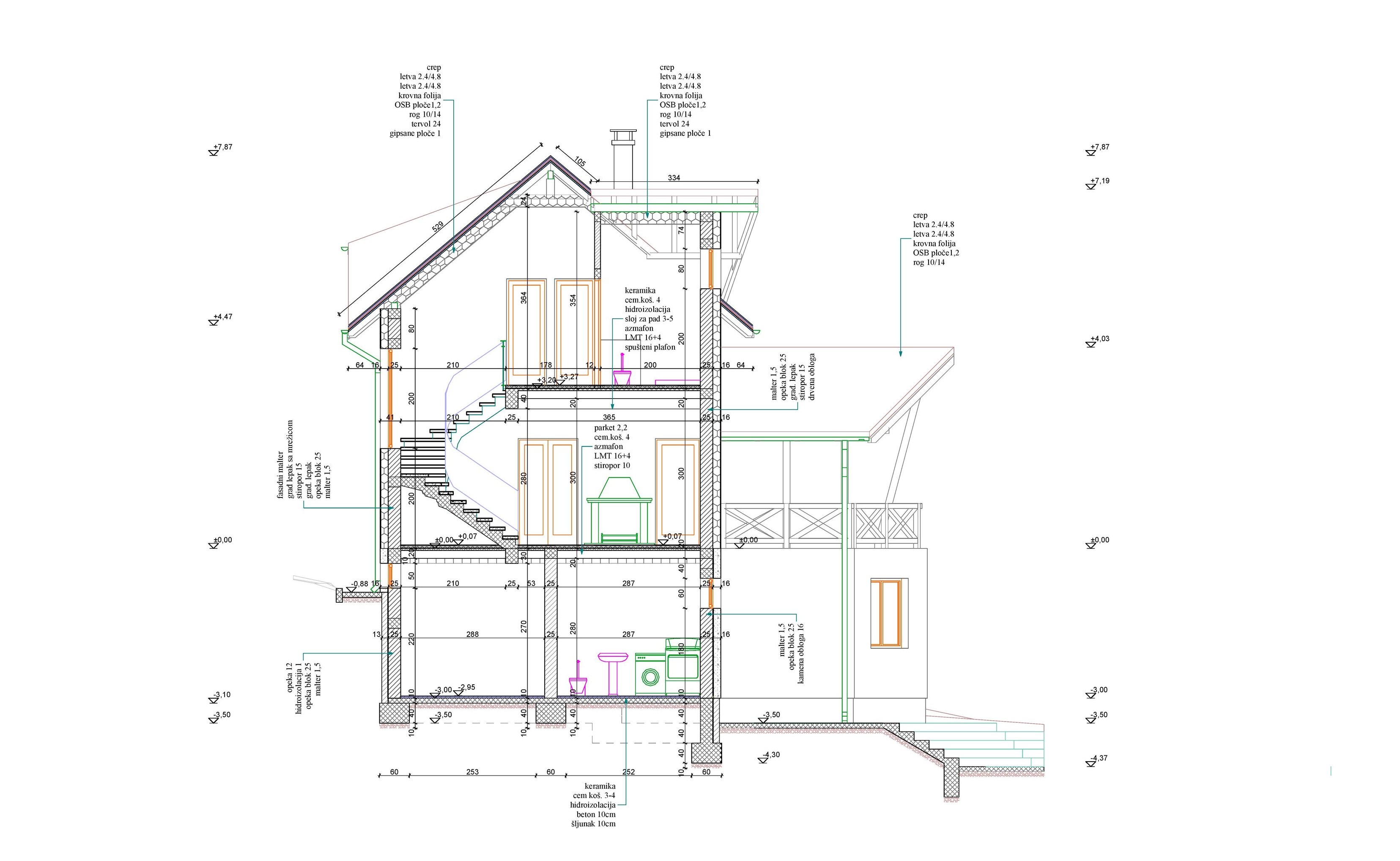
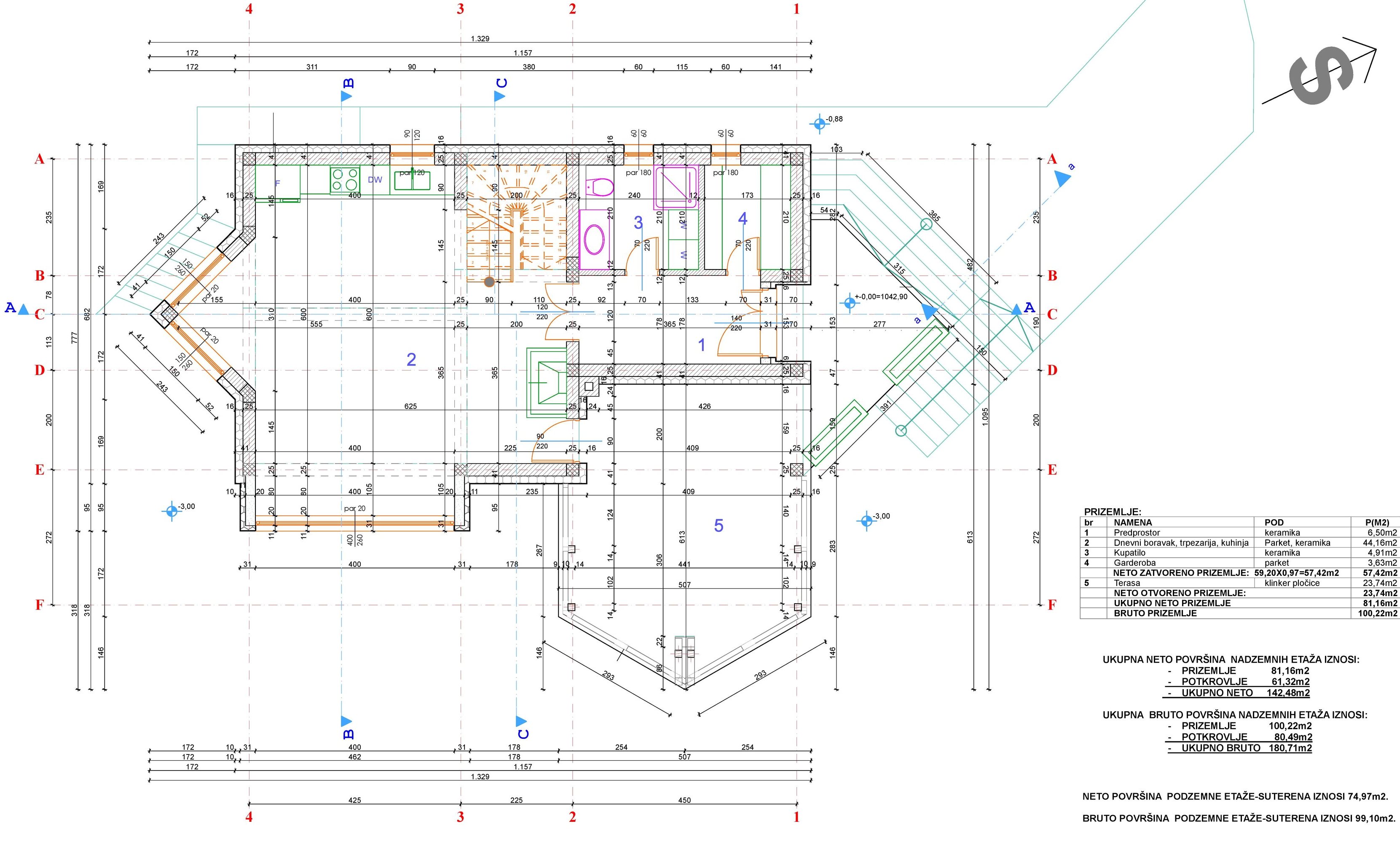
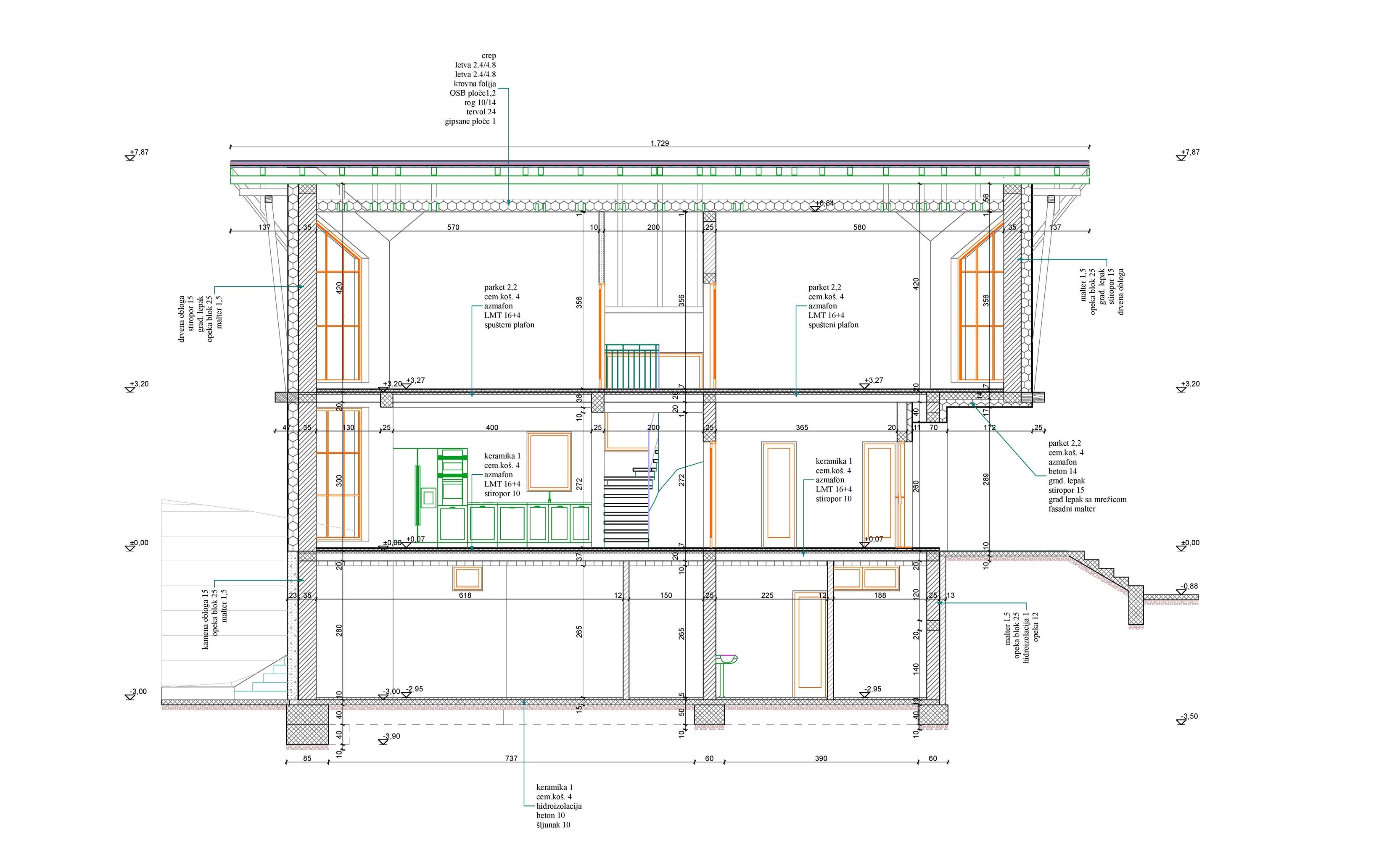
Sve ce se raditi po projektu, i plan je da se na prolece digne "pod krov" sto se kaze. Dakle, iskop, temeljenje, zidanje, pokrivanje, hidroizolacija,...Strukura je Suteren+Prizemlje+Potkrovlje i ima 280m2 bruto. Zida se blokovima, betonom, negde Ytong blokovima (terase,erkeri). Sve gde se betonira tj gde ima potrebne kolicine betona planiram beton iz mixera. Stolarija je dogovorena vec.
U zavisnosti od finansijskih mogucnosti, radilo bi se i struja i voda,kao i ostali zavrsni radovi, ali sada me prvenstveno interesuje "siva faza".
Najradje bih neku proverenu preporuku iz tog kraja (Ue, Pozega, Priboj, Prijepolje,...) ali naravno ne odbacujem nista sto je kvalitetno
Mislim da sam dao dovoljno podataka a ako neko moze da pomogne tu sam za sva druga pitanja i razlicita misljenja.
U prilogu saljem slike iz projekta.

Zare80, dobro došli na forum. Izbegavajte da kačite delove tehničke dokumentacije sa imenom i prezimenom projektanata kao i njihovim licencnim pečatom. Trimovao sam ja i ponovo okačio slike.