Dragi prijatelji, ljubitelji tehnike ``sam svoj majstor``,
nisam našao pravi način da dođem do rešenja problema u kojem sam se našao te sam odlučio da pokrenem novu temu.
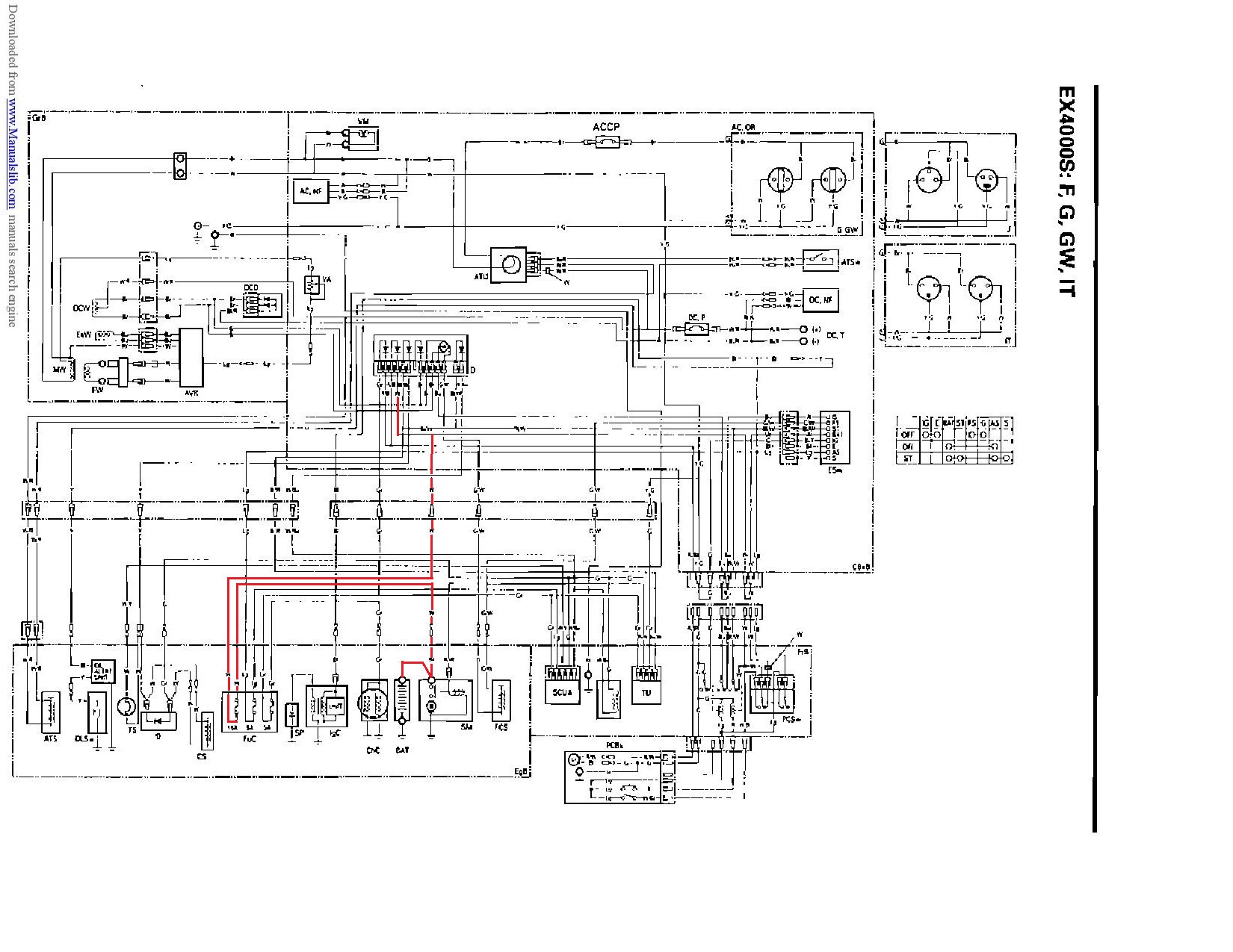
Naime, dobio sam na poklon agregat Honda EX4000S.
PROBLEM, iako je u svakom smislu kompletan na njemu i bukvalno nema ni jednog kabla u sistemu ožičenja.
PITANJE: gde pronaći elektrošemu za njega, bila ona u boji ili crno-bela SAMO DA SU OZNAKE NA NJOJ ČITLJIVE.
Došao sam do jedne ali se oznake (slovne i brojčane) ne mogu pročitati zbog loše rezolucije.
Molim za svaku pomoć a stojim na raspolaganju da pružim svakome pomoć iz oblasti koje poznajem a poznajem dosta.
Ovde postavljam šemu do koje sam došao.
agregati za struju
hvala od srca, na žalost i ovo što sam ovde okačio je baš iz te skripte a čitljivost vodova jako niska gotovo beskorisna. Tu i jeste problem jer je nemoguće pratiti oznake po legendi o boji vodova. U svakom slučaju veliko hvala na brzom odazivu. Ukoliko ‚‚nabasaš na nešto (daj Bože u koloru) javi. Ako ja tebi ikako mogu pomoći na usluzi sam
A da kontaktirate hondin servis?
poku[avao sam ali nisu naro;ito predusretljivi. {to reko[e stari ``use i u svoje kljuse``. Možda ću nešto i uspeti. Hvala, pozzzzzz
Na linku koji je Peca postavio je elektronska varijanta uputstva, pa je zbog "težine" dokumenta rezolucija slika oborena, a time i šeme degradirane.
Ni ja nisam našao ništa bolje.
Međutim, postoji na nekoliko mesta ponuda štampane verzije tog uputstva, gde su šeme svakako čitljive.
Obzirom na vrednost uređaja, mislim da se isplati kupiti ga. Ne samo radi osposobljavanja agregata, već i radi dalje pravilne upotrebe i održavanja.
Zdravo, dali može to kaj pomoči: https://www.megazip.net/zapchasti-dlya-generatorov/honda/ex4000s-12582/e... ili https://www.manualslib.com/manual/1015430/Honda-Ex4000s.html?page=46#manual
hvala na uloženom trudu. Nije sporno kupiti ali ja nisam ‚‚nagazio‚‚ te linkove. Ukoliko ih imaš nalepi. Pozdrav
prvi link mi ne otvara a sa drugog i sam dosta koristim naročito kada su u pitanju matične ploče. Međutim ova skripta im je u očajnom stanju, imam je. Hvala puno, lep pozdrav
Ispravan link od @som16:
https://www.megazip.net/zapchasti-dlya-generatorov/honda/ex4000s-12582/e...
Za papirni manual guglaj "Honda EX4000S manual" i idi na slike. Ima ih dosta na e-bay-u i sličnim sajtovima
Npr. ovaj, košta £19.99:
https://www.ebay.ie/itm/Honda-Generator-EX3300S-EX4000S-EX4500S-Owners-M...
A ima ih još...
a dokle sam stigao? I do kraja i do početka. Naime stvar toji ovakoi:
generator koji sam dobio je sa svim ispravnim kalemovima, našao sam neku šemu koju sam veoma dugo editovao s obzirom da je nečitka, da odvajam 20 dolara za skriptu nisam bio u mogućnosti te sam sve to radio korak po korak. Dobrim delom i uspeo pa je čak uradio u koloru. Kaćim je ovde ako nekome zatreba. Šema je za agregate Honda EX4000S.
E sad, pošto ja imam samo generator potrebna je velika i što je moguće stručnija pomoć.
Gde šta kako priključiti.
I ono što mi je najvažnije gde dovesti i koliki treba da bude pobudni napon. Na slici sam obeležio šta je šta (zapravo ono što imam i što znam)..
Na samom generatoru stajala su dva konektora (imam ih) sa posečenim žicama.
Kupljen je nov AVR, nove su četkice i ne bih da nešto zafrknem.
Svetlozelena znam da dolazi na AVR.
Merenjem napona na diodama između crno-crvene i braon pokazuje 12 V pa i više.
Evo slike pa ko je voljan da pomogne hvala.

На сајту произвођача је доступно комплетно упутство које има и шему
https://www.honda.co.jp/ownersmanual/pdf/power/generator/32ZB7620_web.pd...
Шема је нешто боља, не значајно али делује читљивије.