Postovani,
najverovatnije ce se ovo protumaciti kao reklama, ali sta cu...
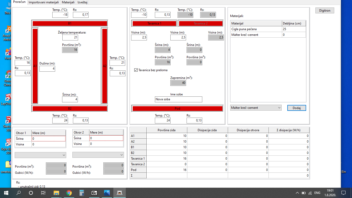
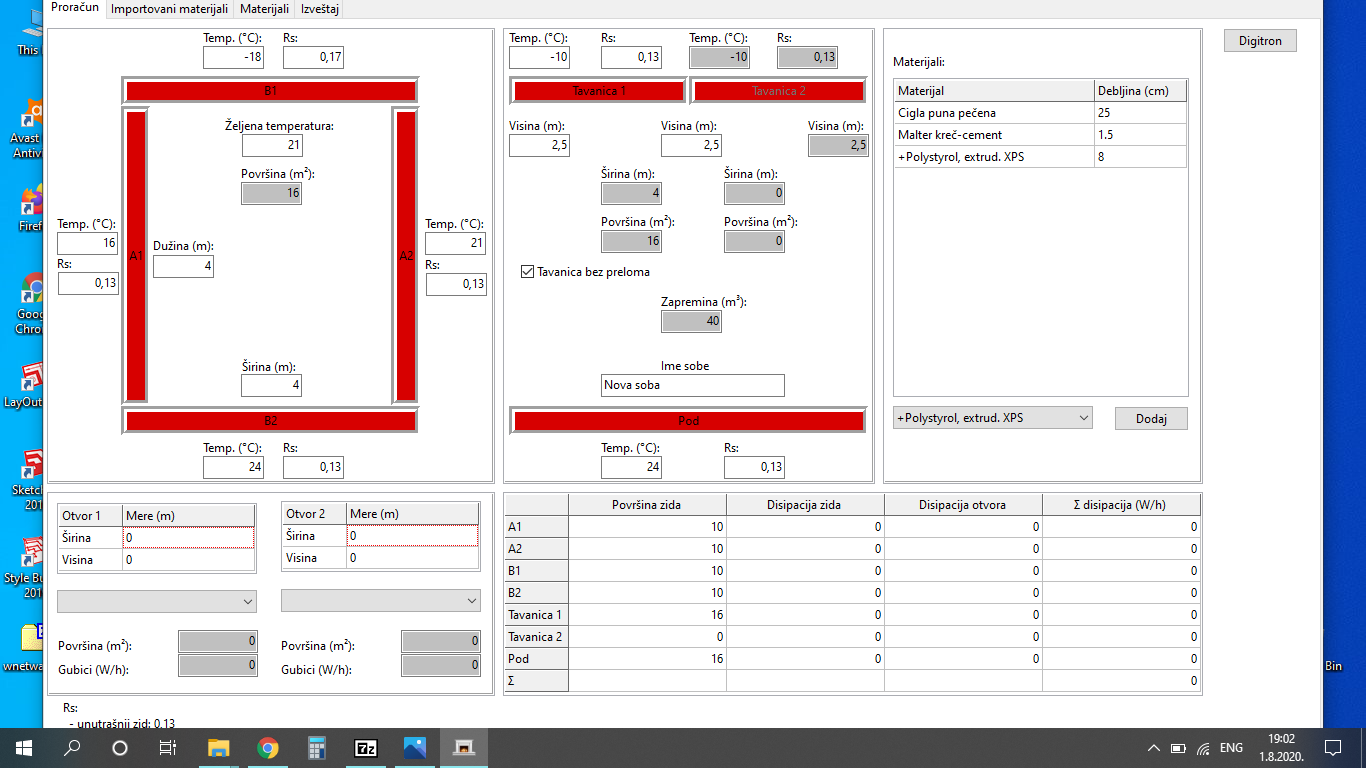
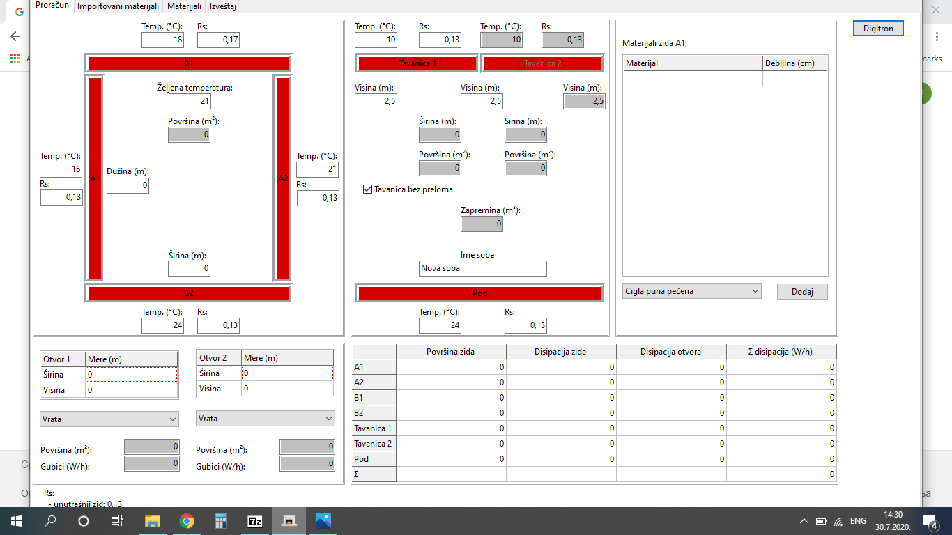
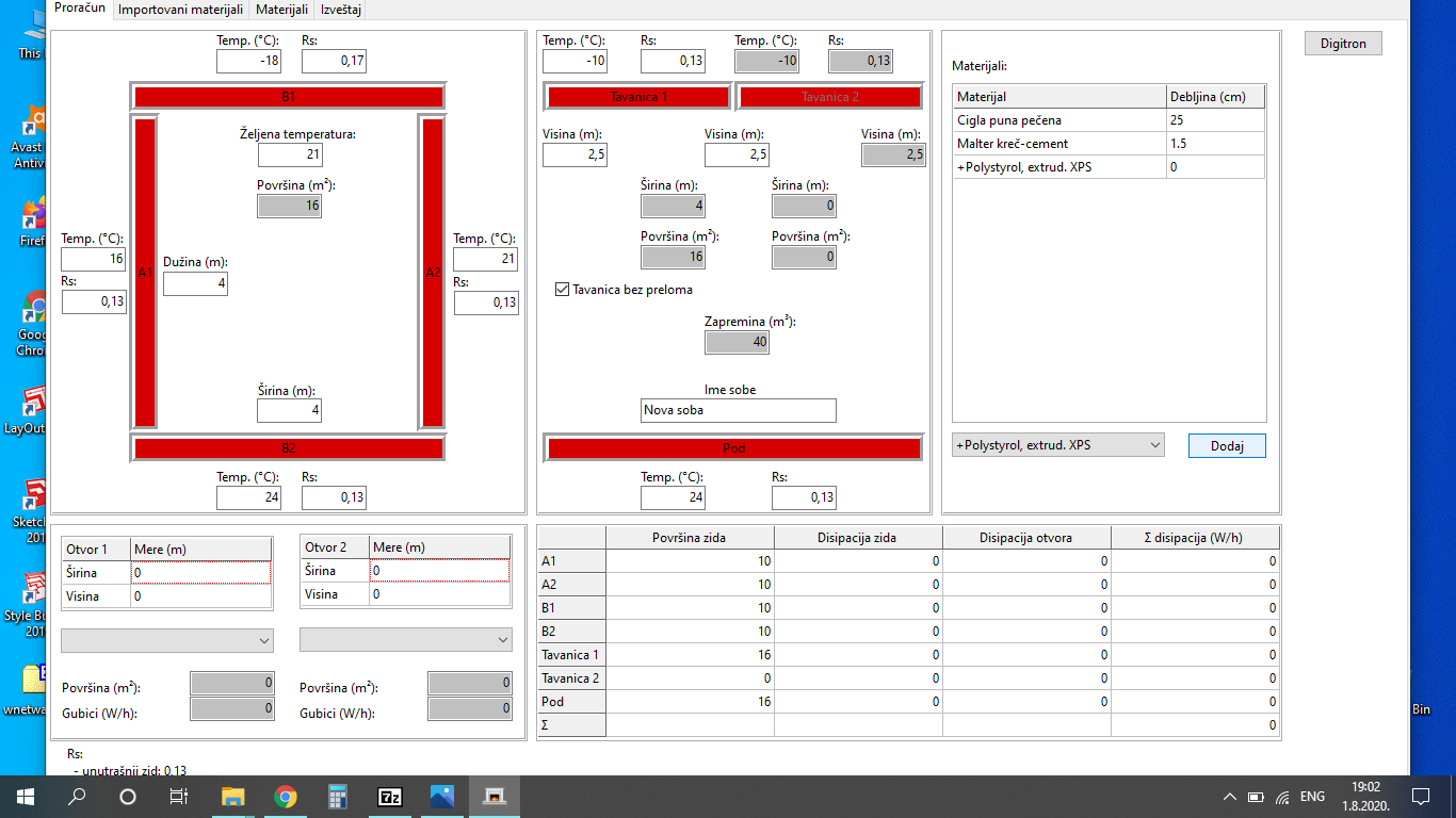
Nakon vise meseci lupanja glave, trazenja pomoci po internet forumima, isprobavanja razno-raznih Excel tabela, kupovine gomile knjiga, itd. itd... resio sam da na osnovu sakupljenog iskustva napisem program za proracun toplotnih gubitaka prostorija.
Za sada samo screenshot programa dok ne smislim nacin na koji mogu da zastitim program od nelegalnog koriscenja, ali svakako ce postojati i besplatna verzija za privatnu upotrebu.
Javljam se ponovo za koji dan sa besplatnom verzijom programa.


Ideja: napravi web varijantu da ljudi ne moraju da se bakću sa intalacijama a i rešio si problem nelegalnog korišćenja. Možeš da biraš da li je pretplata na mesečnom, godišnjem nivou ili za stalno. Krenuo sam i ja da pravim (verzija bi bila potpuno besplatna) ali su me privatne i poslovne obaveze u tome sprečile. Za sada.
Kako tvoj program ima opciju za računanje toplotnih gubitaka cele kuće?