Pozdrav svima,
ako da Bog, u septembru krećem sa gradnjom doma. Već sam krenuo sa nekim planovima, ali želim da čujem što više mišljenja,jer jedino tako mogu doći do boljeg rešenja.
Plan placa u prilogu.
Za početak, interesuje me da li je dobar odabir pozicije zakuću? Ono čime sam se vodio,jeste da volim da imam pogled na plac, pa sam se tako odlučio da povučem kuću na jednom kraju placa. Druga stvar jeste da sam se vodio na osnovu susednih objekata.
PLac - početak,ideje,predlozi,saveti
Ovde možete detaljnije da pogledate plan http://archon.pl/gotowe-projekty-domow/dom-w-rukoli-ver-2/m8071f7813fbbf
A tu je virtuelni prikaz https://www.youtube.com/watch?v=nB3TspKxTPg
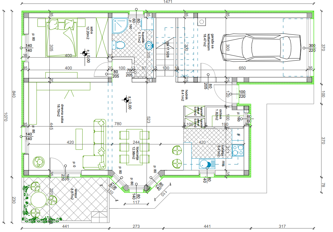
U prilogu je i modifikovani plan sa situacijom na samom placu.
Značili bi mi komentari i predlozi.
Voleo bih da dobijem komentare na ovaj plan prizemlja i potkrovlja.
Ili je potreban neki poseban pristup za dobijanje odgovora, ili su ljudi na odmoru 
Prvo da ti poželim sretan početak izgradnje to jest planiranje.
Kada postavljaš kuću na plac razmišljaj kako će to izgledati kada se okolina urbanizuje. Mislim da će tvoj plac nekada (u budućnosti) da se podeli na dva, tako razmisljaj kako će izgledati polovona na kojoj je kuća i gde će kuća da ti "gleda"
Kuća čiji si plan postavio je namenjena da bude okrenuta onim "polukružnim" delom ka jugu ili jugo istoku. Zid garaže, kupatila, sobe bi trebalo da je na severu. Garaža ti zaklanja pogled ulevo na ulicu gledajući sa ulaza. Gledaj da ti kuća ima podrum u kom možeš napraviti kotlarnicu, ostavu, postaviti donji razvod kanalizacije....
Plan mi se inače sviđa ali možda nije za tvoj plac. Bolje potraži plan koji bi se bolje orjentisao na tvom placu.
Ali (uvek postoji ali) ako se tebi sviđa onda te baš briga za tuđa mišljenja. 
Srećno!
Hvala!
Okolina je "urbanizovana" pa sam na osnovu toga i pozicionirao kuću. Jbg.gradilo se kako se htelo,pa mi ništa drugo nije preostalo. Ali sam zadovoljan iz razloga što mi dnevna soba,trpezarija i kuhinja gledaju na preostali deo placa.
Značilo bi mi mišljenje što se tiče rasporeda prostorija. Evo, ovih dana sam dobio primedbu na položaj kupatila, jer je previše blizu dnevne sobe,pa bi ga valjalo izmestiti na neko drugo mesto. Isto tako se postavlja pitanje opravdanosti postojanja ovog malog hodnika kod sobe i kupatila, jer smanjuje prostor sutra kad unosim stvari u sobu.
Takvi komentari mi puno znače, jer čovek ne može sve da vidi u trenutku.
Razmišljao sam da podignem najviše 3 bloka za potkrovlje, ali me savetuju da je premalo,i da treba barem 5 bloka, kako bi bolje iskoristio prostor.
Što se krova tiče, da li da radim zidanu ploču ili ne?
Sendvič zid sam planirao kombinaciju blok, kamena vuna i cigla, meutim dobija komentare da je bolje stiropor.
Ja bih kucu pomerio na desnu stranu placa a zamenio bih mesta prostorijama sa leve i desne strane kuce... kao u ogledalu...
To bih uradio zbog Sunca da vecim delom dana u dnevnoj sobi i na terasi imas Sunca. Previse Sunca leti ces resiti tako sto ces posaditi neko drvece i roletnama.
Mislim da ce i leti i zimi biti tako prijatnije i energentski efikasnije.
Mozda bih dodao jos koji prozor i u dnevnom boravku ili ih povecao.
Raspored ugaone garniture i prozora u dnevnom boravku mi se ne svidja. Mozda prozor 1.4x1.4 da bude pomeren prema sredini kuce
Ona tri prozora u trpezariji bih stavio da idu skoro do poda. (volim svetlije prostorije, stvar ukusa)
Sto se tice kupatila u prizemlju mozes zid od 1m koji prolazi pored WC solje da ga produzis da ide do lavaboa a na sredini da budu vrata od kupatila.
Prolaz (vrata) za taj mini hodnik bih stavio onda malo desno da bude na sredini ovog novog sireg hodnika.
Znaci kupatilo bi bilo 2x2 sa vratima na sredini i taj hodnik bi bio 2x1 metar isto sa vraima na sredini.
Prakticno kupatilo bi ti bilo iste velicine kao i sada jer taj deo gde ti se otvaraju vrata bas i ne mozes iskoristiti.
Nemas dimnjak na koji bi mogao da prikacis neku pecku na drva da ti direktno greje sobe. Za centralno grejanje ipak treba struje.
Da, zivimo u 21. veku ali ne zaboravi da u Srbiji najduzi predio mira traje 40 godina pa po tome smo 13-tom veku. Pre samo 15 godina smo bili bombardovani.
Nisam pesimista vec sam optimista i smatram da ce nas za mog zivota zadesiti barem jos jedan rat (optimisticki gledano). Da sam pesimista rekao bih jos tri rata 
Salim se ali ima nesto i u ovoj sali.
Pre koju godinu u sred zime nedelju dana nije bilo gasa pa znam da su ljudi u prodavnicama razgrabili kvarcne i uljane peci i koristili ih tih nedelju dana.
Covek mora da racuna na vise nacina grejanja...
A sto se tice da je hodnik dole mali i nepotreban i da ce biti komplikovano unositi stvari... Danas je vecina namestaja montazna i ajd da kazem montazno-demontazna.
Imas prozor, ne zivis u zgradi. Uopste to nije nezgodno za unosenje stvari.
Potkrovlje mi je ok, ne znam sta bih menjao...
Zbog trenutnog stanja i pogleda, odabrao sam ovo mesto za kuću. Činjenica je da bi zbog Sunca bilo bolje rešenje da se kuća postavi kao što si predložio.
Već je isplanirano da stavim veće prozore,pa će biti dovoljno svetlosti.
Što se tiče kupatila slažem se da je deo gde se otvaraju trenutno vrata skoro neupotrebljiv, i da neću izgubiti ništa ukoliko proširim hodnik za taj deo, a vrata od kupatila stavim pravo.
I taj hodnik bi od dnevne sobe odvojio nekim paravanom. Time bih dobio potpuno odvojen "noćni deo"
Hvala na konstruktivnim predlozima!
Takođe bih voleo i veću terasu nego što je trenutno u projektu.
Da li je rešenje da terasu pustim preko celog frontalnog dela kuće?
I treba mi savet da li da terasu ostavim otvorenu, pa eventualno sa nekom tendom kasnije da pokrivam po potrebi ili da fiksno bude natkrivena?
Dimljak će biti u delu gde je kotlarnica, tj.trenutno u garažnom delu. Da li treba ostavljati još jedan dimljak ako želim možda kamin u dnevnom boravku?
Sto se tice pokrivanje terase ja sam izracunao ugao sunca na prozore i spustio krov da leti nemam direktnog sunca u prostoriji a zimi je Sunce nize pa ga imam u celoj sobi. Leti mogu i da stavim nesto montazno, npr trska.
Dimnjak mora biti blizu peci, moze recimo na zid gde ti se sada otvaraju vrata od kupatila. Gore malo promenis raspored stvari u kupatilu. Promer dimnjaka je razlicit za razlcite vrste lozista i energenata i principa rada kotlova.
I pazi sta pise na sajtu... kuca kao ima 97m2!!!!!. Poljaci drugacije racunaju nego mi. Racunaj da imas barem 200m2 i tako i cenu racunaj. Ako ti neko kaze 400e/m2 ti racunaj 200*400 = 80.000 e.
Tako sam se ja zeznuo. Sve lepo uklopio i odneo arhitekti da mi precrta kad ono 50m2 vise... Kod tebe je to jos 100m2 vise...
Bez obzira sto ti je zid u potkrovlju manje od 1m i prilikom obracunavanja porez i ostalih gluposti sto placas oni ne racunaju celu povrsinu jer je tamo nizak zid ti neces nesto puno vise materijala utrositi. Imaces isto poda, isto vrata, isto prozora, isto plafona, isto struje, malo manje cigle i malterisanja i malo manje fasade. Ako dozidas 1m tog zida to ce da te kosta mozda 2000e vise a to nije nista na kucu od 80.000e tako da taj manji zid ne utice na konacnu cenu i racunaj ga skoro ga da je 2 metra 
Inace jako lepo si iskoristio prostor i imas lepe prostorije.
Što se tiče poljskog sajta, tamo sam našao jako lepe modele, odabrao jedan koji mi se svideo, i onda prilagodio svojim potrebama sa arhitektom. Tj.prilagođavanje još uvek traje.
Još jednu dilemu imam. U početku sam hteo da idem sa 3 bloka + greda za potkrovlje, međutim, savetuju me da je to malo, i da je šteta da ne iskoristim prostor u potkrovlju na bolji način.
Predlažu mi barem 120cm da podigne, tj. 5 bloka + greda. Izgleda su uspeli da me ubede.
Takođe bih možda voleo da izvučem jedan wc odvojeno od kupatila u prizemlju, ali za sada nemam ideju gde bih ga stavio.
Inače kvadratura kuće koju sam plnirao ne bi trebalo da pređe 95m2 sa terasom.
I još nešto, ako pogledate npr. ovaj model https://www.youtube.com/watch?v=VBJimiRcww4 ne vidi se koliko je zidano za potkrovlje. Zbog krova se to ne vidi. Isto bih voleo i na kući koju planram da bude tako.
Jel može neko da mi objasni kako se to postiže?
Hvala!
Moja je slicna kuca. Isto sa poijskog sajta. Na sajtu je 80cm zid ali je mislim pod uglom od 42 stepena. Ta strmost krova omogucuje da u potkrovlju stojis na 1m od zida a ispod moze da stoji krevet, sto, ormar i slicno. Nije malo 80cm 100 mi je super a 120 mislim da je taman ali nisam smeo vise da idem od 100cm jer mi je u projektu vec 80. Neces puno pogresiti sa bilo kojom merom. Moras racunati da ce ici izolacija barem 25cm (izmedju rogova 12cm a 13cm ispod) i gips karton.
Ako zelis jos jedan WC mozes umesto ostave. Ja nisam planirao osavu jer imam garazu i planiram jos jednu garazu sa ostavom u dvoristu a ono sto ce trebati iz ostave donese se jednom nedeljno i stavi u frizider.
E sto se tice kvadrature.... Racunaj dole dnevna soba 19m2, trpezarija 13m2, kuhinja 6m2, ostava 2m2, plakari 1m2, garaza 19m2, stepenice 3m2, kupatilo 6m2, mali hodnik 1m2 i soba 12m2 i na kraju terasa 8m2.
82m2 bez terase i 90m2 sa terasom. Ti si vec u prizemlju ispunio tvoj plan!
Gore imas jos 75m2 i iznad garaza neiskoristeni prostor jedno 10m2 koji isto podize cenu pa neka bude 5m2.
To ti je ukupno 170m2. Skoro duplo vise nego sto planiras.
Kod tebe je jos gori odnos. Na sajtu pise 95m2 a imas 170m2.
Uzmi izracunaj kvadraturu poda svake prostorije i saberi pa to pomnozi sa 350-450e (a moze i dosta vise).
Ytong ti radi 420e kljuc u ruke niskoenergetsku kucu.
E sada ako si ti mislio samo dole da ti ne prelazi 95m2 onda je ok. Onda se nismo razumeli.
Ne bih da dodjes u situaciju kao ja da sve lepo isplaniras i onda kada dobijes pravu kvadraturu onda svi planovi padnu u vodu pa pravi plan nanovo a pri tome ne zelis da odstupas od
ove zelje.
Kod mene sam planirao kucu od 150m2 poda i kada je arhitekta precrtao kucu sa sajta i ja dosao da vidim skicu kad ono kuca 220m2 a spoljne dimenzije iste.
Na sajtu pise 150m2 a ispadne na kraju 220. I to je sve bez terasa i ulaznog platoa. Sa terasam 250m2,
E onda je usledilo smanjivane kuce. Zid tamo zid vamo ali onda ne moze trpezarijski sto, kuhinja premala....
Da,dole sam računao do 95m2 sa terasom. Što kažeš to je moja želja. Nakon što završim plan, idem kod ljudi koje sam planirao za gradnju da daju procenu i što se tiče materijala i što se tiče rada. E onda ću videti da li su to samo lepe želje, pa ću morati da smanjujem, ili idem po planu.
Treba mi ostava dole uz kuhinju,pa je ne bih dirao.
Ali bih isto odvojio mesta za veš mašinu i zamrzivač negde ispod stepenica.
Videću još, pa ću verovatno okačiti malo modifikovani plan.
Takodje bih dodao da gradnju planiram fazno. Cilj mi je da ove godine ukrovim. Nisam još uvek računao troškove, ali što bi rekli, preko palca, računam da će mi izaći između 15-17k eura ti, da kažem grubi radovi. Ovde ne govorim o troškovima projekta i dokumentacije,dozvole, i sl. Znači samo grubi radovi i majstori.
Ja sam sada u fazi struje, vode i malterisanja sa veoma slicnom kucom.
http://pracownia-projekty.dom.pl/fa_morfeusz_i.htm
Zidovi su mi kraci za 70cm.
Dosta sam sam radio sa drustvom i racunam da sam prosao jeftinije nego da su mi majstori sve radili.
Materijal me je kostao oko 20.000e a 4.000 ruke, ruckovi itd... Inace za komplet ruke su mi trazili od 6 do 12.000e.
Posto sam dosta sam radio morao sam uzeti i pomocnih daski, alata itd u vrednosti od 1000e.
Temelj - 2500e, nulta ploca 2000, zid prizemlje 6000 (Ytong), fert tavanica, stepenice i terase 3500e, potkrovlje 2000e, krov skoro 8000.
Krov i potkrovlje i stepenice mi je majstor radio i to po stvarno normalnim cenama. Imao sam i duplo skuplje ponude.
Eto 20.000 materijal bez ruku, papira, prozora, alata....
Papiri su me kostali oko 2.000e.
Prozori i vrata i roletne i komanrnici oko 7000e...
Ja sam sebi racunao do detalja i izaslo me je 10% skuplje nego sto sam racunao. Materijal sam dobijao dosta ispod cene. Recimo Ytong mi je bio fabricke cene.
Gvozdje od poznanika ispod nabavne cene na vecini vecim gradilistima. Sljunak i cement sa minimalnom marzom...
Drugar je potrosio 18.000e za kucu od 130m2 od cigle, krov na 2 vode, sve je sam radio, jedino nesto zidari su mu radili za 400e.
Tvoja je za 50% veca i komplikovanija.
Ako mozes napisi tvoju racunicu pa da vidimo gde su razlike.
Od početka razmišljam da li si ti pisao blog http://gradnjakuce001.blogspot.com/ 
Sad kad si mi poslao plan tvoje kuće, prilično sam siguran da jesi.
Ja ću ovih dana završiti idejni projekat sa arhitektom, pa ću sa tim planom otići do majstora koji će raditi kuću.
On će mi dati specifikaciju, pa sa tom specifikacijom idem od stovarišta do stovarišta. Tada mogu da se javim sa računicom.
Inače, ja sam se nisam bavio nekom računicom. Ovo što sam napisao, milsio sam okvirno, i sa tom cenom bi se uklopio.
Jeste, to mi je blog 
Nisam osvezio listu troskova ali ako imas gmail mogu da ti sherujem dokument pa da vidis detalje sta me je koliko kostalo.
Belezio sam sto kazu svaku kilu eksera, mozda cak nesto i izostavio ali ne verujem da sam izostavio vise od 100-200e....
I sam raspored prostorija je dosta slican s tim da mi je tvoj bolje iskoristen kod dnevne sobe i trpezarije.
Meni je posle smanjenja kuce bio problem premala kuhinja koju sam premestio gde je soba u prizemlju a onda sam morao staviti i da mi je trpezarija bliza
kuhinji a dnevni boravak na sredinu. Cim je dosao dnevni boravak na sredinu a tv na spoljasni zid morao sam ostaviti mesta za prolaz do kuhinje i terase
a ti nemas konkretan prolaz vec imas mesta izmedju kreveta i stola i to ti je izlaz na terasu. To je taman tih par m2 sto meni sada nedostaju kada planiram namestaj 
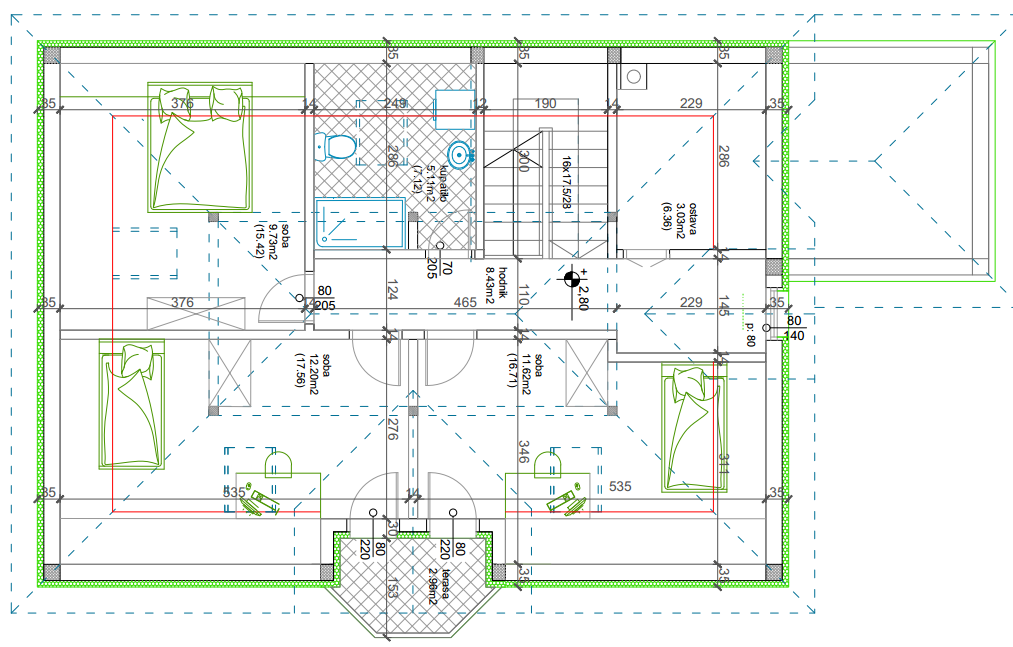
Da li moraju postojati drveni stubovi u potkrovlju na sred soba? To mi se takođe ne sviđa kod postojećeg plana.
Ako pogledate plan potkrovlja, videćete da su ucrtani stubovi po soboma, i jedan na ivici stepeništa i ostave.
Bolje je da stavis betonske stubove i moraju tamo biti. Mozda mozes koji stub da izbegnes i resis na drugaciji nacin ali tesko i skupo... Proveri sa arhitektom.
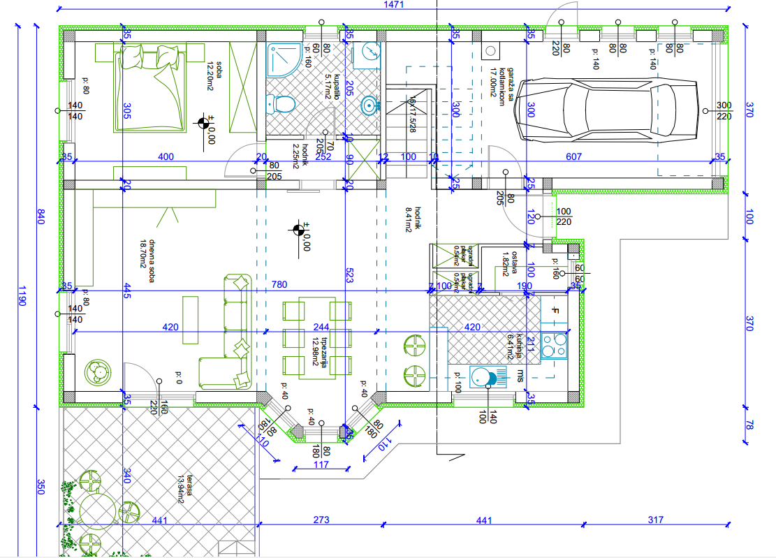
Evo izmenjenog plana prizemlja i potkrovlja.
U prizemlju je izmenjen deo kod kupatila, u potkrovlju je izbegnuto pojavljivanje stubova u sobama osim u jednoj, gde nije moglo (osim da se produzi hodnik).
Molim za komentare
Lepo, lepo. Uspeo si sakriti stolicu, Vidim da ti je visina plafona 2m i 53cm. Ja bih stavio barem jos jedan red blokova. Prostorija ti je prakticno 8-9 metara dugacaka i 4.5m siroka.
U tako valikim prostorijama kada ti je nizi plafon gubis osecaj prostranosti i imas osecaj da ti je plafon tek nesto iznad glave.
Malo sam se raspitivao i citao iskusva ljudi koji su ziveli u vise kuca kazu da im je najprijatnije bilo u takvim kucam kada je plafon minimum 2.7metara. I moje licno iskustvo je takvo. Kada gradis kucu onda malo tj. mnogo vise obracas paznju na takve stvari kada ulazis u neciju kucu i onda shvatis zasto si se u necijoj sobi po pitanju ambijenta prijatnije ili manje prijatno osecao a nisi ni razmisljao zbog cega.
Jos jedan red cete kostati 100-200e a lepsi je osecaj. S druge strane malo teze je zagrejati ako nije podno grejanje jer kod radijatorskog grejanja toplota se gomila kod plafona i spusta se prema dole. Ja sam isao na 280 i sam prostor izgleda ozbiljnije iako nije zavrsno.
Sve su to finese. Mozda sam pristrasan zbog slicnosti moje kuce ali mi se svidja 
@vlado107
Imaš poruku u inboxu 
Koje su preporuke za pregradne (unutrašnje zidove)?
Naime, u potkrovlju su svi zidovi prema novom crtežu debljine 12cm.
Inače, spolja će biti sendvič zid giter blok + kamena vuna 5cm + puna cigla.
Još mi nije potpuno jasno ni zašto je npr. na ostavi debljina zida 7cm ili na kupatilu 10cm.
Ако би у купатилу био тањи зид нема шансе да се постави водоводна инсталација и овако са 10 цм ће бити муке.
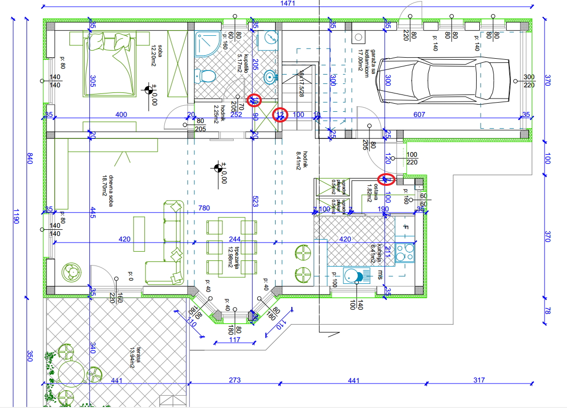
Ne bi trebalo da bude problema jer je zid gde se postavlja instalacija malo deblji. Evo slike sa označenim zidovima.
Kakva je inače praksa da se rade unutrašnji zidovi? Ja sam mislio da idem sa giter blokom od 20cm, ali arhitekta je drugačije zamislio.
Za giter blok ovde na forumu mozes samo lose da procitas. Moje licno iskutvo je negativno.
Sendvic zid giter + 5cm kamene vune plus puna cigla ne ispunjava uslove za dobijanje energetskog pasosa a samim tim neces moci dobiti gradjevinsku dozvolu.
Najmanje ces morati stviti 8-9cm kamene vune. Sendvic zid je super (bez gitera) ali je i skup.
Osim termoizolacije, sigurno ide još najmanje 3cm vazdušnog prostora.
Interesuje me redosled: giter + termoizolacija + vazdušni sloj + cigla? Da li cigla (nije fasadna cigla) ide spolja ili giter dolazi spolja?
@ Vlado
Kakve su to loše stvari vezane za giter blok?
Da li nekom ima iskustva sa Kanjižinim crepom i koje su preporuke? Vlado za tebe znam da si uzimao Danubia i da si zadovoljan.
Giter blok nema termalnu masu i leti ce se brzo toplota uvucu u kucu a zimi prilikom prestanka grejanja brze ce se kuca ishladiti. Bice vece oscilacije u temperaturi.
Ziveo sam u giter blok sa 5cm stiropora i bilo je tesko zagrejati kucu a za par sati temperatura opadne za 5-8 stepeni a ne bi trebalo ni za 0.5.
Nije ni zvucni izolator. Pogledaj ovde na forumu sta kazu...
Komsiji se smrzla voda u cevima giter + 5cm stiropor dok drugom isti slucaj samo cigla nije doslo do smrzavanja...
Imaces veoma skup 60cm sirok zid a nece biti neki kvalitet sto se tice toplotne izolacije a cak i sa tim slojem vazduha nece ispunjavati zakonski minimum.
Mada ove moje tvrdnje proveri kod nekoga ko zna to da izracuna.
@Vlado
Ali ovde nije u pitanju samo giter blok, Valjda nešto znači ta termoizolacija i puna cigla? Da bi se leti toplota uvukla u kuću potrebno je da prođe ciglu,pa termoizolaciju pa tek onda blok.
Isti slučaj i zimi. To je neko moje laičko razmišljanje. Verujem da je bolje koristiti neki termo blo i slično, ali već dolazim u situaciju da razmišljam malo o finansijama. Znam da na izolaciji ne treba štedeti, ali moram da biram neko srednje rešenje.
Prelistavajući forum uvek je bilo kritike na račun onih koji traže savet (ili utehu)nakon izvedenih radova,ali ja se informišem pre početka radova.
Tako pokrećem i pitanje potkrovlja i krovne kontrukcije. Predložena konstrukcije ide redom:
- crep
-letva 5/3cm
- kontra letva 2.4/5 cm
- paropropusna folija
- OSB ploče 15mm
- PVC + mineralna vuna 10 cm
- rog 10/14cm
- metalna podkonstrukcija 3cm
- rigips 1cm
Koje su prednost/mane kose ploče? Odnos cena kvalitet kose ploče ili klasičnog tavana (ruke + materijal).
Jednostavno što više čitam i raspitujem se, to sam u većoj dilemi. ALi već za koji dan moram da presečem i odlučim.
Toplota dolazi ne samo spolja vec i iznutra. Kuvanje, kupanje, tv, sijalice, bojler, covek odaje 200-400w, prozori, provetravanje.... Ako su masivniji zidovi sa unutrasnje strane trebace veca energija da se zagreju leti. Zimi isto tako ali onda ce se i teze kuca ohladiti. U svakom slucaju ja bih obrnuo giter i ciglu. U stvari isao bih najmanje cigla 25 + 10 kamena vuna + par cm vazdusni prostor + 12cm cigla ili giter blok.
Sa giterom je ubedljivo najjeftinija gradnja i pitam se zasto svi ne grade giter blokom. Znaci da ima neke mane,
Sto se tice potkrovlja ovde je vec napisano uzaludnost postavljanje OSB ploce ako se stavi kvalitetna paropropusna folija.
10cm izolacije je vrlo malo za potrkovlje. Mislim da je zakoniski minimum oko 20-22cm.
Prednosti i mane kose ploce.... Sto se tice termo izolacije naspram mineralne vune ili stiropora je vrlo mala. Tipa samo 1cm mineralne vune ce da ti zameni celu kosu plocu kada je u pitanju termoizolacija. Ako je kosa ploca od Ytong blokova onda 5cm mineralne vune ti zameni ceo ytong blok ali ti moras opet staviti barem 15cm termo izolacije.
Ne znam cene ali mi deluje jako skupo i uzaludno. Mene je krov izasao 35e/m2 radi i materijal a sama kosa konstrukcija kosta min 25e/m2, pa gde je tu rad, crep, opsivanje, folija, letve... Meni deluje skuplje.
Da li si pricao sa projektanom o debljini izolacije? Mislim da ces zbog zakona morati ici na dosta deblje.

Ovo je predlog i kako bih voleo da izgleda kuća. Uz neke modifikacije koje ću sa arhitektom srediti.
http://www.kucasnova.com/projekti-kuce/projekat-kuce-sa-potkrovljem-arch...