@Kv74
Mislis na prestrujni ventil izmedju sabirnika i razdelnika. Zavisi od toga da li postoji pumpa primarna do razdelnika. Ako imas pumpu, onda mora prestrujni ventil. Ili automatski ili kosi balansni pa da se podesi na na primer 0.5 - 0.8 m3/h. Najbolje resenje u tom slucaju je hidraulicka skretnica da se postavi.
Izmedju sabirnika i razdelnika koje si postavio na slici, najbolje je da se ugradi prestrujni ventil od 1/2" tipa Heimeier ili slican. Ipak pumpa jeste "pametna", ali ako sve trmoglave zatvore u isto vreme dolazi do kavitacije u samoj pumpi a tada moze doci do ostecenja
Izrada Akumulacione posude
AcaFaca, aj druze, pa cekamo da postavis svoje komentare na grejanje... Kako je proslo grejanje sa akumulatorom kad je bilo minus 15?!?
Jel si imao problema?
Kakva ti je potrosnja sa akomulatorom toplote? Manja ili veca?
Pozdrav...
@ Kv74
Pozdrav, ja sam na grdičkom brdu, a ti druže?
@Grejac
kad ste već pomenuli pametnu pumpu, i ja sam pribavio samo GRUNDFOS ALPHA2, ne planiram da postavljam termoglave na radijatore, prevashodno sam je kupio zbog povoljne cene, koštala je kao i obična grundfos 25-60, a i zbog uštede energije. Moje pitanje je da li ona može raditi u start stop modu kao i obična pumpa ili ne. Hvala unapred na odgovorima.
Ako nekog interesuje kupovina iste, mislim da ih čovek od kog sam kupio ima još, neka mi se javi privatnom porukom i ja ću dati broj telefona prodavca.
@tihi2
Za vikend mi stiže akumulator toplote iz Nemačke, pazario na ebay.de. Polovan, cena mislim da je bila povoljna 160evropskih novčanica za 1000l. Dovozi mi to jedan Vaš sugrađanin. verovatno ću u nedelju dolaziti do Novog Sada da isti preuzmem i platim, pa ako ste kod kuće voleo bih da svratim, da se upoznamo i da pogledam Vaš sistem grejanja. O istom sam puno čitao na više foruma, a voleo bih i da vidim.
Sto se tice pametnih pumpi, najbolje je da rade non stop. Svaki start stop nije bas dobar za njih. Realno, one toliko smesno trose, da je suludo gledati da se postavljaju na neke termostate i slicno. Yonos, Stratos i Aplha trosi oko 25- 35 W u punoj snazi.
Ne stižem baš da aktivno pratim pa me zato nema.
Iskustva su za sada više nego dobra pogotovo što je zima većim delom u plusu. Ranijih zima sam imao velikih problema kod ovakvih temperatura zbog kondenza u peći. Sada je situacija skroz drugačija i peć se prosto sija unutra. Ranije smo je čistili na 10-15 dana i to je bio muški posao. Sada je otvorimo jednom mesečno i to ne iz neke potrebe nego zato što ćale ima vremena pa čisto preventive radi a i da bi se malo divio koliko je čista i suva.
Pumpa startujem u 6 ujutru i pre 9 nema potrebe za loženjem kada je iznad nule. Prva vatra traje do podne i onda smo mirni do 17-18h kada opet založimo za uveče i da bi napunili akumulator. Nama ovakav režim loženja nije problem jer je ćale kući pa je uglavnom slobodan. Ko nije u mogućnosti da loži iz dva puta može da proba sa većom posudom a i to opet zavisi od površine kuće.
Kada je bio jači minus vatru nismo gasili preko dana i akumulator je služio da ne bi ustajali rano da ložimo a i taman lepo održava noću temperaturu u spavaćim sobama zbog gravitacione cirkulacije vode.
Potrošnja ogreva je sigurno manja a koliko je to videću na kraju sezone.
Ako nekoga još nešto zanima neka pita slobodno. Ja sam više nego zadovoljan i svima mogu da preporučim ugradnju akumulatora. Takođe mislim da posuda nikada ne može biti prevelika i da treba iskoristiti maksimalno prostor koji imate.
Meni ostaju još male dorade na kraju sezone ili kada budem imao vremena, valjalo bi da ugradim diferencijalni termostat da gasi pumpu kotla kada se ugasi vatra ali i ovako je više nego dobro.
@komshija_kv
grdica?nismo daleko-:),ja sam u ribnici,kod novog mosta na ibru.drugara interesuje alpha 2 32/60,ako ti nije teško pošalji mi broj tel na
pp tog čoveka koji ih prodaje.
@grejač
Izvini ako filozofiram-:),ali na sajmovima su upravo reklamirali i grundfos i wilo ove pumpe za te namene,ako su termoglave na radijatorima i sve zatvorene,da one to prepoznaju i obaraju obrtaje i snagu na 3w(25/6) i,navodno,sprečava šumove u sistemu i kavitaciju(mada mi nije najjasnije šta je kavitacija u sistemu grejanja,znam za kavitaciju turbina i brodskih propelera).naravno,ovo je sve teorija,ti opet imaš iskustva u praksi šta se dešava,pozdrav
kod nas u kv još nije strašno,sneg kao obično,za sada.
Što se tiče kavitacije,gledam na sajtu wilo,ima neke veze sa temperaturom fluida-minimum suction head at 50/95/110C 0.5/3/10
Nije mi ovo najjasnije,koliko sam ja uspeo da zaključim,problem sa kavitacijom se javlja kod otvorenih sistema?
Neznam dali i koliko šteti pametnoj pumpi uklj i isklj,ali kad sam razgovarao sa zastupnikom salus kl-06 wiring center(za elektro povezivanje sobnih termostata i elektroaktuatora) koji ima modul za upravljanje pumpom,odnosno,kada termostat u sobi uključi elektroaktuator na razv/sabi,uključuje se i pumpa,inače je isključena,ako sam ja dobro razumeo
Prosto receno, kavitacija se stvara kada je diferencijalni pritisak na usisu i potisu pumpe van nekih granica koje su propisane.
Ево ако ово може да помогне:
@tihi2
Ubo sam, da 'prostiš ko prstom u da ne kažem šta hehehe. Organizovao sam kamionče za prevoz, pa ću videti, ako ne bude neko nevreme dolazim sutra.
Što kaže Kv74, kod nas malo snega ima, ali ništa strašno.
I ovde je ok, bljuzgavica samo. Prošlo. Za put nema problema, samo auto putem. Preko Rume za kamione bilo zabranjeno (do danas u podne).
Drugari, izvinjavam se ne stigoh da se javim ranije, brdo nekih obaveza.
Prvo želim da se zahvalim Tihomiru aka @tihi2 na gostoprimstvu koje nam je ukazao i datim savetima.
@Kv_74 Akumulator je stigao. Samo sam ga istovario pod trem da ne kisne što kažu, umotan je u debeo najlon, a nisam stigao ni da ga odmotam. tihi2 ga je pogledao kad sam svraćao kod njega i reče da je potpuno isti kao njegov, u šta sam se uverio kad sam pogledao u njegovoj kotlarnici.
Žao mi je što je bilo malo vremena ali i da je bilo 3 sata bilo bi malo.
Sad samo da smisliš kako da ga povežeš. Ako imaš neke nedoumice čujemo se.
Inače to je Sunsystem od 1000l, duplo jeftiniji od moga ali malo stariji (ipak je polovan).
Samo što pre stavljaj u njega vodu.
@tihi2
u potpunosti se slažem sa svim iznetim. Što se tiče vode, moraće malo da sačeka dok ne prođu ovi mrazevi, s obzirom da stoji napolju tj pod tremom, najmanje bi mi trebao bojler pun leda hehehehe.
Išao sam kod ovog dekice što mota grejače i čovek me je onako bledo gledao kao da pričam ne znam ti ja šta. Pitao sam još na par mesta i svuda dobio isti ili sličan odgovor, nema ili ne postoji. Verovatno će to morati da mi napravi vaš komšija. Nešto sam razmišljao kako su povezani grejači pa mi jedino logično izgleda veza u trougao pošto je u zvezdu veza sa nulom i to je onda 220V, a ne 380V, ako se ne varam. Ako budete imali vremena napišite šemu veze kod vaših grejača.
Pa mogao sam ti i ovaj moj višak dati.
Šema je laka čim kažeš sebi da hoćeš 380V i zaključiš da uopšte nema nule na grejačima.
@tihi2
Hvala puno još jednom na ukazanom gostoprimstvu!
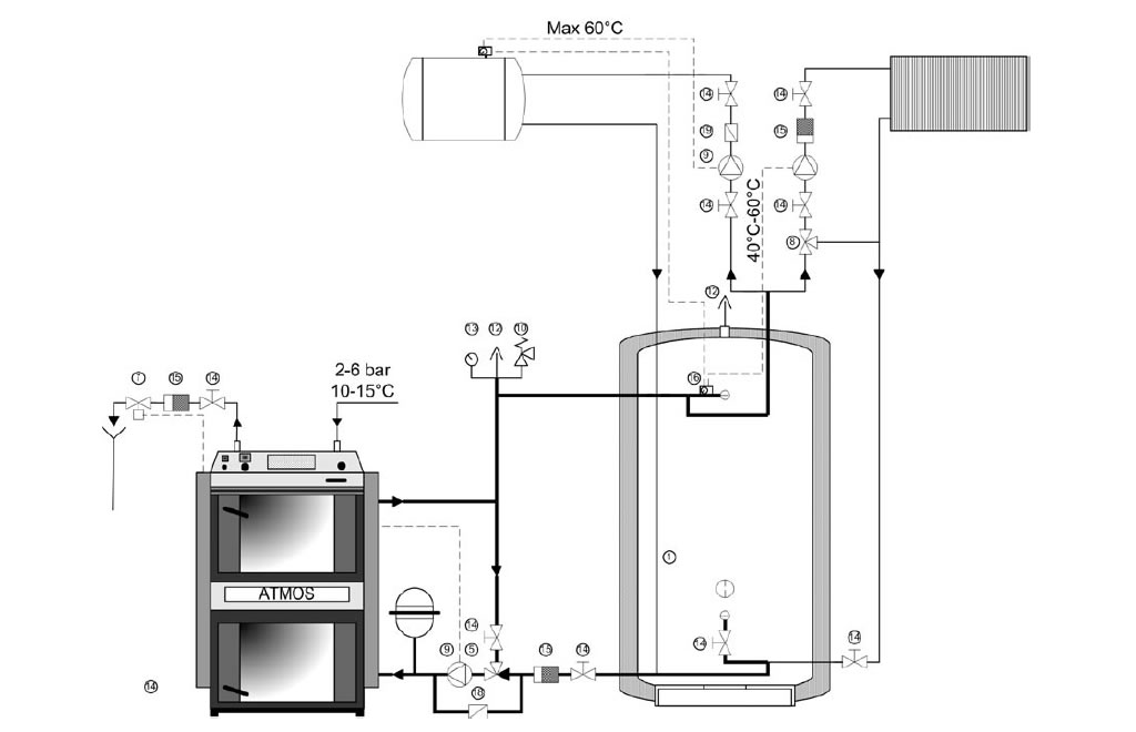
E sad, hteo bih da sa vama prodiskutujem na temu povezivanja bafera u sistem. Ne verujem da ću upotrebiti pravu terminologiju, ali mislim da ćete me razumeti. pitanje je da li bafer vezati redno tj serijski ili paralelno. Gledah neke slike pa se zbunih malo, evo pogledajte i vi pa prokomentarisiste, ovo kako ja vidim je paralelna veza i deluje mi da voda prvo ide u krug grejanja prema kuci, a zatim u bafer kad se zatvori mesni ka kući? Šta je po vama bolje ovakva veza ili ulaz u bafer pa izlaz iz istog na vrhu u grejni krug prema kući?
Čini mi se da je kod tihi2 urađeno ovo sa izlazom na vrhu.
Nije mi baš najjasnija šema. Kao da ima cev u akomulatoru koja, ne znam kako, odlučuje da li voda ide odmah iznad iz akomulatora ili ostaje u njemu. Tako se to ne crta.
Moj princip je jednostavan: akomulator se greje nečim i u njemu se održava temperatura 30-40*C. Potpuno nezavisna elektronika upravlja grejanjem kuće, gura vodu iz akomulatora u kuću i održava 22.3-22.5*C.
I to je sve.
Može da se pravi i takvo upravljanje imao sam ga. Dok sam ložio posle noćnog gašenja i jutarnjeg čišćenja kotla sam posle potpale prvo zagrevao kuću pa posle prebacivao na grejanje akomulatora. Nije mi se svidelo iz više razloga: trebalo je ložiti, ako je jako hladno sobe se dosta ohlade, jutarnja temperatura radijatora je 70*C pa neprijatno zrače toplotom, trebao bi da kupim 4 motorna ventila da to radi automatski a šta vredi da automatizujem kad treba da ustanem prvi i ložim, itd...
Ovako ustajem u 7-8, žena otišla još u 7 na posao, baba i deda ustali u 6, a kuća topla od 6 (zbog matorih, naravno). Milina.
to sa akumulatorom toplote je uvek dobra varijanta ali će tek da dođe do punog izražaja sa toplijim danima kad je prema kući i 35-40 stepeni puno a kod mene će to biti slučaj. sve preko 35 stepeni u kotlu (nemam mešni, još), smem da ostavim gorionik da se uključuje i isključuje (piljevina, kao što znate). ispod te temperature nisam probao a to bi značilo još koju neprospavanu noć.
u ozbiljnom sam razmatranju da ugradim rezervoar od bar 1000 l i mešni ventil. bio bi to pun pogodak. nudi mi prijatelj svoju cisternu od nafte od 2000 litara, ona pljosnata, visoka a uska. ne znam koliko bi bilo pametno upustiti se u takav poduhvat. sistem mi je otvoren i cele zime, ako zanemarim pucanje lanca na mešaču kad su mi ispala klešta u spremnik pa zaglavila, nikakvih problema nisam imao. koliko bi rđa bila agresivna u slučaju ovakvog rezervoara s obzirom da ne bi bio pun, i tu bi bio otvoren sistem pa bi trebalo prostora za dilataciju... nisam dovoljno pametan... naravno, što jeftinija ssm varijanta. neki predlozi, saveti...?
komshija_kv,
vidim da je u upotrebi Atmos kotao; jeli to klasični ili "uplinjevani"? Se izvinjavam ali na "shr jeziku" ne znam upitat odnosno napisat besede za taj tip kotla.
Ja sa uradio slično, kako je odgovor "tihi2". Glede povezivanja: imam Attak kotao , uplinjevali DPX 25; zalogovnik-spremnikakumulator je 3600l i u njemu je inox bojler za sanitarnu vodu. Najprije ogrejem akumulator ; to je jedan krog hidraulične vezave; imam na peči laddomat za upravlajnje vezave peč-zalogovnik, patrona je 65°C.
Druga vezava je zalogovnik/akumulator - kuča. Tu imam 3 kroge, od kojih dva upravlja avtomatika , a jedan je talno sa fiksnimtropotnim termo ventilom.
Samo grijanje je radijatorsko , talno samo v oba dveh kupatilah. Bar meni se ovako čini više jednostavije.
U tvome primjeru, "komshija_kv" moraš najprije definirat, gdje je prioriteta: kuča ili zalogovnik.
Možes izvest vezavu, da najprije dođe topla voda , da segrije stanovanje i kad je to na zahtjevanoj temperaturi, avtomatika preokrene smer viška vruče vode u akumulator. "gile960", možda če ti plošnatu cisternu napraviti "ovaljnu" zbog pritiska. Bolje okruglog presjeka; je tu komentar na početku ove teme.
Veličina spremnika/akumulatora ti je tudi zavisna od jačine tvoje peči.
peć nije problem, 53kW za oko 160 kvadrata, predimenzionisana u svakom smislu i baš zato imam prostora za akumulator toplote, već sad vidim koliko bi mi pomogao na današnjih 13 stepeni a tek je počelo da otopljava a kuća ipak treba da se greje. ne znam, možda neka cevna ojačanja oko cisterne ili probušiti na više mesta pa povezati suprotne zidove armaturama... sve je u opciji
Te cisterne bi trebale da izdržavaju bar 1bar.
Ako najviša tačka tvog sistema nije viša od 10m onda bi mogao tu cisternu zatvoriti i nju priključiti na sistem. Tada bi cisterna bila uvek cela u vodi i ne bi bilo korozije. Ali dodatna stvar bi tada morala biti da se prelivni rezervoar koji je na tavanu poveća za 200l zbog dilatacije (tj širenja) vode. To zna da bude problem zbog mesta.
Druga sigurnija varijanta je da napraviš izmenjivač i da imaš, recimo, otvoren sistem radijatori-pumpa-izmenjivač_u_akomulatoru-radijatori kao i do sada i da imaš drugi krug otvoren sistem kotao-pumpa-akomulator-kotao i da staviš višlje od kotla i akomulatora onaj prelivni sud od 200l (ako imaš toliko mesta u kotlarnici). Ovo je dobro ako uzmeš prelivni sud pocinkovan ili emajliran ili čak od inoxa pa ako nešto pojede rđa, pa treba da se menja, neka to bude jeftinija komponenta. Ali ovo zahteva mesta još za taj sud. Ali ako se nađe za akomulator valjda će se naći i za prelivni sud. A može i ceo iznad da se postavi.
pritisak u sistemu mi je 0,7 dok pumpa ne krene a onda poraste na 0,8 bara, znači oko 7m. prva ideja mi se jako sviđa ali nemam uslova za 200+ litara ekspanzije u kući. sadašnja je (43 litre) u stepeništu pod samim plafonom, toplo joj a preliv sam izbacio kroz zid i na onih -17 je visila mala ledenica, zbog toga sam neki dan prikačio crevo od tuša u kupatilu (alternativa), reko, da dopunim sistem i dok sam izašao napolje već sam čuo kako voda curi po krovu, znači da nije puno falilo, ne mora ekspanzija da bude baš puna a i ne može jer odmah izbaci višak u zavisnosti od temperature. prva zima, dva puta za dve nedelje izluftirano i nikad nisam čuo ni jedan mehur u sistemu od tog drugog odzračivanja. odoh ja na drugu stranu.... htedoh reći da mi se ideja naročito sviđa jer ne bi bilo dodatnog izmenjivača, pumpe, viška ventila.... što se kotlarnice tiče, to je podrum 6x3 m, visine 2m i služi samo za tu namenu (naravno da sad ima i nepotrebnih stvari), u njoj ne stoji ogrev, mesta ima. nešto sad razmišljam, mogao bih da spojim 5-6 kamionskih boca za vazduh ili 3 bojlera, sečem dna i zavarim jedno za drugo pa da sve to dignem na ionako mali tavan iznad potkrovlja, trebala bi dobra izolacija a verovatno i neki mali izmenjivač toplote da ne smrzne ni pod razno... mora li baš da bude preko 200 litara ili da češće proveravam količinu vode?
al' si me sad potpalio, tihi 
gile960, ako pokalkuliram, trebaš imati zalogovnik volumna bar 2650L = bar 50l (52l) vode na 1kW jačine tvoje peči. Da ne dube hude krvi, to sam napisao na podlagi, kakva se količina vode na kW moči zahtjeva kod nas. Možeš li, da ugradiš dva zalogovnika kod tvoje peči?lp
Teoretski, voda se širi 4% pri zagrevanju i najveću zapreminu zauzima pri +4*C. Ispod toga ne smeš ići.
Ekspanzione posude za zatvoren sistem se uzimaju uvek oko 10% jer sa 5% bude velika oscilacija pritiska (od ispod 1bar do 3).
Ti bi mogao da probaš sa 5-6% i mislim da bi bilo ok.
Nema potrebe da se seku bojleri ili kamionske bode. Dovoljno je da su spojene nekom cevi, da imaju otvor (može isto cev) na vrhu za odliv vode i da se nalaze višlje od sistema.
Viđao sam da ljudi seku bojlere za ekspanziju. Ako se stavi ceo biojler i sa vrha sprovede cev napolje, postignut je isti efekat a ima mnogo manje isparavanja vode.
To je dobra prilika da zameniš stari prelivni.
zalogovnik je pretpostavljam akumulator toplote? ne razumem zašto mora? razumem ja da za sve ima neki proračun ali... nije mi bitno koliko mu vremena treba da se ugreje a samim tim i da se ohladi, potpaliću vatru to me bar ne košta ništa, zagrejati ga opet na 70-80 stepeni i dok traje-traje. i 500 litara vode na 70 stepeni mi je dosta za nekoliko sati na toj spoljnoj temperaturi. i u kotlu ima 135 litara. znam samo da mi je četvorokraki ventil preko neophodan da bih prema kući puštao odgovarajuću temperaturu a to na 10 stepeni napolju nikako ne bi prelazilo 35-40 stepeni, ručno, u zavisnosti od doba dana. u najhladnijim danima ove zime, ono kad je nekoliko dana padala temeratura i do -17 nije mi trebalo preko 60 stepeni prema kući pa samim tim ni u peći jer nemam mešni ventil. nemam problema ni sa kondenzom ni sa ostalim vratolomijama tog tipa pa ga nisam ugradio. pokušavam, a na kraju ću i uspeti, da to sve napravim sa što manje novca kojeg ionako nema. tako sam počeo i grejanje, u decembru '13-te a u oktobru '14-te je bilo u pogonu. skoro godinu dana. opet imam tu skoro godinu da rešim mešni i akumulator, manje nego dok nisam imao ništa uključujući i odžak.
edit:
sad videh da je pisao i tihi dok sam ja pisao. i ja sam uverenja da bi mi i stotinak litara ekspanzije bilo dovoljno a bilo bi izvodljivo da na sadašnju posudu redno povežem bojler od 80 l pa bih imao ukupno 120 l. problem bi bio samo što bi taj bojler morao biti na oko 3 metra od postojeće ekspanzije. povezao bih ih sa cevi većeg prečnika da vodi bude lakše. da li bi to funkcionsalo? sadašnja ekspanzija je na najkraćem mogućem vodu do peći a da ima potrebnu visinu, vezana je na potis.
Nisam procitao sve komentare pa ne znam da li je neko vec pisao o tome, hteo bih da kazem svima koji bi da stavljaju elektricne grejace da im je bolje da stave elektrodne grejace. Prednosti su manja potrosnja struje i trajnost jer zapravo nema grejaca vec je grejac sama voda. Mane su u specificnom nacinu upotrebe na koji nismo navikli pa treba znanja i vremena da se covek navikne. Prave ih dve firme u Kragujevcu a i lako ih je izraditi u kucnoj varijanti. Mada, ja sam isprobao sve moguce izvore toplote i na kraju napravio pec na drva koja je stedljiva i ekoloska, nesto poput "raketne peci", i nema boljeg resenja. Moze se dodati izmenjivac i prikljuciti radijatori, to cu probati samo zato sto prodajem takve peci pa mi traze sa izmenjivacem da greju vodu, ali realno nema potrebe jer se sa nekoliko rupa u zidovima i ventilatorima iz kompjutera resava grejanje udaljenih prostorija po smesno jeftinoj ceni u odnosu na radijatore. Kazem sve sam isprobao a sada mi je mesecni racun za grejanje nula dinara
Nakupim granje, letve i ostali otpad iz kuce, dvorista i komsiluka i uzivam uz pucketanje vatrice...
Ako neko zeli da napravi elektrodni grejac odnosno kotao nek mo se javi, ne mogu porukom da objasnim. 069662975
Da Gile, to je to. Mnogo dobra stvar ali zbog specificnosti upotrebe nije bas proslavljeno na nasim prostorima. Buduci da se bavim inovacijama, usavrsio sam taj kotao odnosno podigao mu stepen korisnog dejstva, ali je preskup u toj varijanti pa ni sebi nisam odradio, samo sam primetio u eksperimentima razlike. Inace imam tri kotla kupljena u "katani" a pravio sam ih i sam. Sada mi sluze da ne dozvole prevelik pad temperature u kuci kada se zagasi vatra u peci.

pozdrav i tebi komshija_kv,dobro došao u diskusiju.iz kog dela kv si ti?
@grejač,dali je potreban bypass ventil izmedju razdelnika i sabirnika sa elektroaktuatorima,u kombinaciji sa pumpom wilo yonos para 25/6 rka?