Verikalna ne , horizontalna da tako bi se najkraće moglo reći .
Kako izolovati pravilno temelj i prvu plocu?
Hvala na pomoci, pomogli ste mi
Izolacija ploce sa gornje strane i spoljna strana temelja posto ce sam ytong biti dovoljan da ne bude (velikog) hladnog mosta.
Zdravo svima,
Ako nije problem da postavim pitanje ovde, da ne otvaram novi post.
Gotov mi je PGD i dat mi je na uvid pre nego se pošalje u lokalnu samoupravu. Ukratko o projektu, relevantni podaci samo:
- porodična kuća P+Pk bruto 345m2 uključujući garažu, neto 288m2, površina prizemlja 212m2
- nema podrum
- Ytong zidovi 30cm, kamena vuna 15cm
- podno grejanje
- Hteo bih da dobijem što je moguće bolji energetski efikasan objekat s obzirom na već datu orjentaciju, lokaciju itd.
U prilogu skice preseka i osnova.
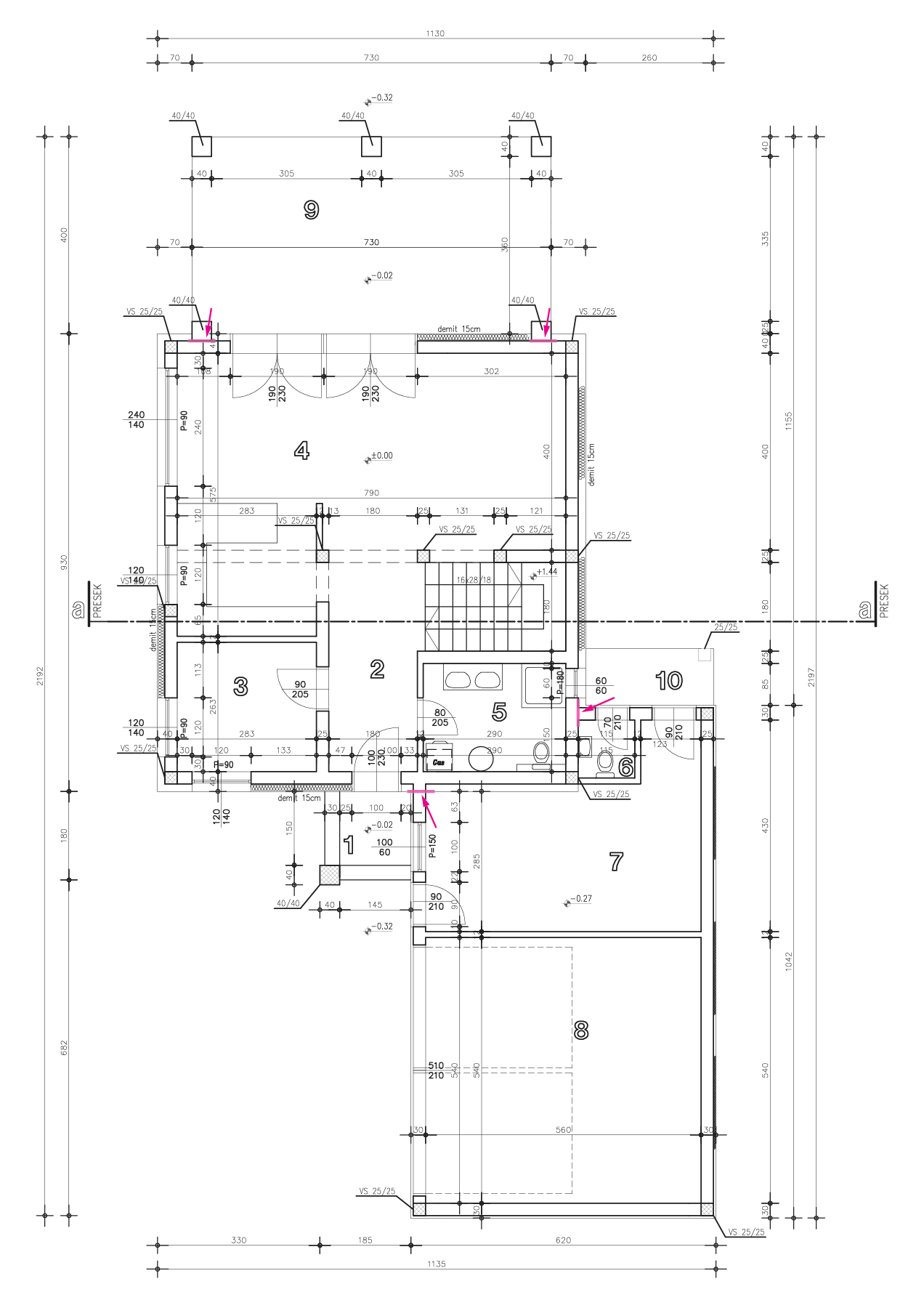
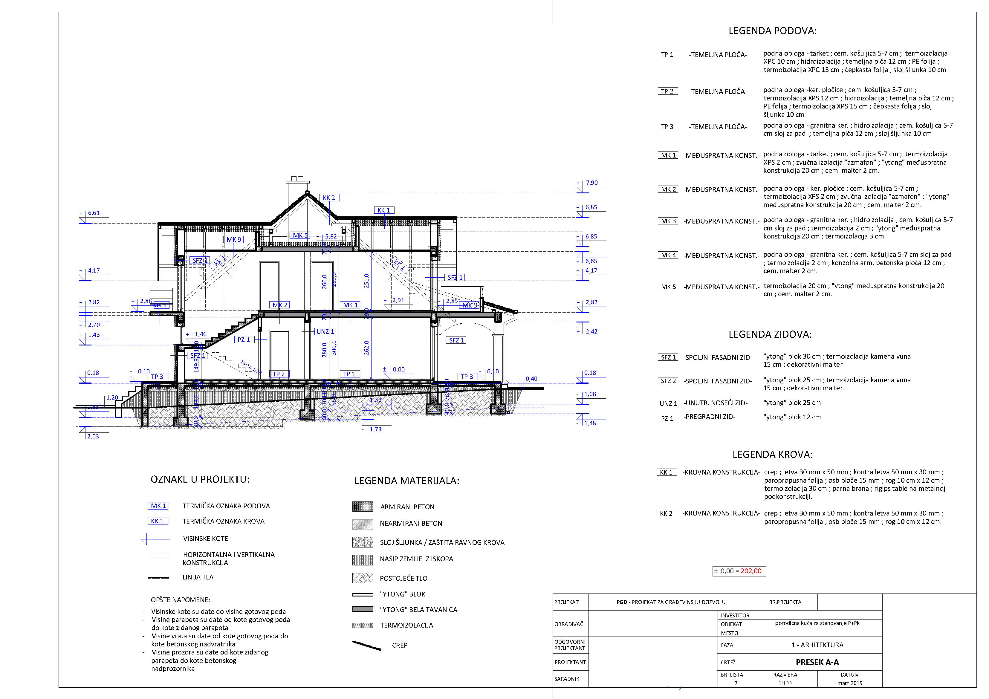
Čitam prethodne komentare i zanima da li neko ima neku sugestiju na rešenje projektanta a tiče se termoizolacije temelja, temeljnih ploča TP1-TP4 kao i dela gde se izlazi na trem (toplotnih mostova kod spoja trema sa kućom).
Predviđeno je XPS 15cm TI ispod TP, zatim XPS 10cm TI iznad TP.
Kontaktirao sam firmu koja proizvodi XPS i tamo su mi rekli da je rešenje "školsko", samo da skoro niko više ne radi trakaste temelje koji su ovde predvidjeni. Najčešće se objekti koji nemaju podrumsku etažu temelje na temeljnoj ploči, smatra se veoma kvalitetno, jeftinije, brže, nema ovoliko iskopa ( koji inače košta dosta) itd i da ako jeveć izabran ovaj način onda treba spustiti termoizolaciju XPS skroz do temelja ispod temelja, oko temelja.
Dalje oni ne bi stavljali XPS 15cm ispod ploče, već 12cm jer je to najveća debljina koja se proizvodi u Srbiji i da bi bilo dovoljno.
Međutim pošto imam fasadni zid od Ytonga i 10cm TI iznad ploče, zanima me uloga ove TI ispod ploče?
Prema elaboratu EE dobijene su sledeće U vrednosti kod TP1 i TP2 sklop: 0,123 W/m2k respektivno 0,118 W/m2k. To bi se verovatno poremetilo kad bi se XPS ispod ploče uklonio, ali bi pretpostavljam bilo zadovoljavajuće, Možda ipak dobijam bolje U vrednosti sa tim XPS-om jer pokušavam da dobijem NE objekat?
Svaka sugestija je dobrodošla.
Da provučem još jedno pitanje a tiče se temelja, ako nije problem.
Lokacijksi ulsovi kažu da se podzemna voda nalazi na -0,6m od kote terena. U PGD piše da su „izvršena ručna iskopavanja jama dubine od 0,8m gde se naišlo na zdravo tlo koje pogodno za fundiranje objekta, nije se naišlo na podzemne vode“. To naravno nije rađeno, tarečenica se provlači još od IDR-a. Pitao sam projektanta o čemu se tu radi i kako ćemo to da rešimo i dobio sledeći odgovor: "Na placu nisu rađena geološka ispitivanja tla prilikom izvođenja radova vrši se procena tla. Objekat se fundira na nosivo tlo , ili se vrši zamena tla. Nasipanje i nabijanje. Mi smo projektom predvideli fundiranje na 80cm od kote terena, odnosno 90-95cm sa nabijanjem sloja šljunka. Zbog podzemnih voda smo predvideli drenažu oko kuće i hidroizolaciju ispod celog objekta."
Negde sam pročitao da je obaveza investitora da izvrši geološko ispitivanje tla.
Meni sad ništa nije jasno. Po meni bi neka logika bila sledeća:
- izvršiti geološka ispitivanja tla. Obaveza investitora?
- Odrediti način izrade temelja
- Predvideti odgovarajuću HI i TI
Meni je još u početku rečeno od strane projektanta da će se ići na trakaste temelje, nisam tada mnogo pitao, ali me sad zanima zašto, na osnovu čega itd. Mnogo drugog, da sad ne davim odrađeno je paušalno i date su neke standardne dimenzije izolacije idr iako sam napomijnao da bih gradio niskoenergetski objekat. Uz moju i projektanta koji je radio elaborat EE su neke naše sugestije usvojene. Inače sam već jednom promenio projektanta
, tako da ne mogu da tražim trećeg, nekome moram da poverim i projekat i poverenje kad sam nisam građ. inženjer.
Pozdrav Milan
milan_despot, eto da malko pokomntiram,
nekoliko manja hiša, se završila 2015 godine. Investitor nije htio AB plavajoče plče niti državne subvencija za samo gradnju kuče, nego samo za rekuperaciju in TČ.
Izradili smo pasovne temelje ( kot tebe isto u projektu), na nju izradili AB plošču debeline 16 cm ( dvije cone MA ); EPS iznad toga izradili hidroizulacijo, iznad smo izradili 18 cm toplotne izolacije ( EPS 150) , betonski mikroarmirani estrih + talno grijanje ( tipa Harriethier, jajčaste cijevi). Ytong debeline 40 cm; fasada ta Tervol lamelama debeline 20 cm. Izolacija na strijehi vpihana celuloza 40 cm. Od vanjske starne smo izradili toplotnu izolaciju od 15 cm XPS-a ( oko temelja).
Glede Geomehanika: svakako izradite bar sondažnu jamu ( kontrolni izkop sa mašinom) do potrebne dubine u zemlji; izkopajte najmanje 4-5 kontrolnih rupa na području gdje če stajati zgrada. Tako budete dobili osječaj in podatke o samoj zemljini. Vidječete kako je sa podtalnicom.
Samu izkopanu građevinsku jamu , je potredbno imatu suhu ; ako bude voda u njoj in voda namoči tampon, nečete dostiči zahtejevane tlačne tvrdnosti temponske posteljice/tampona. U čoškovima izradite drenažu invodu odvedite stran iz jame. Ako je potrebno ugradite i filc/politlak .
Razlika između AB plivajuče plošče i pasovnih temelja je u tome, da se u primjeru AB ploče može dosta kvalitetnije izraditi toplinski ovoj ( omot -tenzor molim za pomoč) kuče. Neke detalje sam več nalimao na forumu. Za izradu PH kuče je bolje izraditi AB plivajuču plšču.
Školsi primjer in XPS: imaš tri varijante ugradnje hidroizulacije: - izpod prvoga sloja XPS-a; između dva sloja XPS-a; - na vrhu AB plivajuče plošče. Svaka za sebe posebno traži klvalitetno izrađene detalje.
Tip bitumenskih hidroizolacijski traka , je odvisan od izvedbe. Zadnju varijantu ugradnje prepuručujem tip sa T4(5) ili P4(5) oznakom.
Svi stikovi kuše sa ostalim dijelovima ostalih pomožnih objetata morajo biti ločeni. Izradi se detalj na stikovima-dilatacije. U tvojem primjeru, se izradi dilatacije između trakastih temelja hiše i garaže; hiše i podesta stubišta; hiše i terase. Pozornost detajlovima.
Hvala som16 na iscrpnom odgovoru. Međutim nema odgovora na moje pitanje vezano za termoizolaciju temelja. Kažeš da ste uradili izolaciju od 15cm XPS oko temelja. Jel to sa spoljne strane ili i sa unutrašnje? Moja dilema ovde u mom slučaju je da li treba da već ubačen XPS 15cm da spustim i na dole do kraja temelja sve do stope ili je dovoljno ovako kako je projektant predvideo samo ispod ploče? Možda i jeste dovoljno jer ima i 12cm XPS iznad ploče plus Ytong spoljni fasadni zid na koji se ta XPS od 12cm oslanja. NE znam zapravo da li će i koliko iz zemlje preko temelja i temeljne stope da mi se pravi toplotni most. Vidi sliku.
Drugo prema onom što sam čitao ovde i guglao na netu trebalo bi da spustim TI i sa spoljne strane ako ne do stope onda barem 60cm u zemlju (negde sam to pročitao ovde na forumu). Preseci koje sam poslao ne predviđaju tako već TI samo do nivoa tla. Prema priloženoj slici treba da ide TI sve do stope. Jel ima neko mišljenje o tome?
Vezano za "pomoćne objekte" kako ih ti zoveš ovde ne znam na šta si mislio da odvojim temelj kuće od trema i garaže? NE sviđa mi se to, da budem iskren jer iznad trema imam krov koji ide iz glavnog krova koji se oslanja na stubove trema, a iznad graže imam terasu. Šta se dešava prilikom pomeranja tla vremenom?
Nisam građevinac niti sam ikad pravio kuću, pa molim za razumljive odgovore ako može 
Hvala unapred svima.
Milan
Gde vam je linija horizontalne hidroizolacije i gde vam je kota iste ?
milan_despot,
dole sem na tvoji slici-nacrtu označio.
S vanjske strani mora ( ??? ) biti toplotna izolacija bar 60 cm izpod nivoja okoline terena. Ne znam, dali je takva zahtijeva kod vas. Za rang PH kuče se predlaže tako, ako su pasovni temelji v projektu in se tako izradi. Toplotna izolacija sa vanjske strane in unutrašnje. Filozofiranje , ako se nađemo u takvom primjeru je, koliko vanjska toplotna izolacija spreči pohlađivanje zemlje/temelja na unutrašnji strani. Treba napraviti kontrolo kondenza za tvoj primjer. Sam več napisao: predlaže AB plavajuču plošču za takve primjere, ako investitor hoče imati PH kuču; najlakše se anuliraju toplinski mostovi. Izrađena kontrola sa termo kamero! Negdje sam nalepio slike za sličan primjer, ugradnje XPS sa notranje strane.
Hidroizolacije ide do drenažne cijevi.
Garažu smo potpuno odvojeno izradili. Nije bila spojena sa hišom. Dilatirana. To sam predividio na začetku gradnje in opbrazložio investitoru in projrktantu; su se strinjali sa obrazloženjem.
Milan, ako imaš mail, molim javi. Lakše ču priljepit slike sa obrazložitviju ; posle dodaš komentar ovdje, da bude u pomoč drugima članovima foruma.
Moli, ako može " tenzor, histerezis, Astrea,..." za pomoč kod prevoda.
)
Mislim da svi mašimo temu , koliko je meni ovde vidljivo nije imeprativ ni PK/NE objekat nego ono što je moguće izvesti iz klasičnog objekta ??
@Tenzor: Horizontalna hidroizolacija je između TP i TI, pa je tu valjda i linija, ne znam?
Pošto mi je ideja da se gradi jedan energetski efikasan objekat (ne pasivan jer ni geometrija ni orjentacija nisu zadovoljene), hteo sam da vidim sa vama svima koji eventualno imate iskustva u izgradnji istih ili imate teoretskog ili praktičnog iskustva da mi date mišljenje na već dato rešenje projektanta (preseke i osnove sam već priložio). Znači nedoumice u vezi TI temelja slične aslservisu koji je pokrenuo ovaj topic.
Opet da napomenem, imam fasadne zidove od Ytonga 30cm, imamo TI od 12cm iznad AB ploče tako da gotov pod dolazi negde u visinu od 18-20cm (zavismo od debljine striha, ide podno grejanje) od samog betona, znači po nekoj teoriji ja sam već prekinuo toplotni most samim Ytong blokom i tom TI iznad ploče. Ako ja to dobro kapiram?
Ostaje pitanje uloge TI ispod ploče ako se ne spusti vertikalno uz temeljne trake. Znači da li je TI ispod AB ploče dovoljna i potrebna ili moram da je spustim i vertikalno sa unutrašnje strane? Koliki su tu uticaji zemlje ispod kuće i da li je uticaj toplotnog mosta preko betonskog temelja toliki da je bolje da ipak spustim TI vertikalno ili da ostavim kako je projektant predvideo, a sve prema skicama?
Na žalost nemam druge skice, u tekstualnoj dokumentacji koja je sastavni deo PGD-a se navodi sledeće (vezano za temelje i hidroizolaciju):
"Фундирање је изведено преко арм. бетонских темељних стопа као и темељних трака испод фасадних и унутрашњих носећих зидова урађених каскадно због терена који је у паду од дворишта према улици."
"Предвиђена је хидроизолација подних плоча свих просторија приземља стандардном битуменском изолацијом и премазима, са повијањем уз темељне зидове до нивоа готовог пода, као и (опционо) премаз истих на делу испод предвиђених зиданих зидова као и хидроизолација купатила и кухиње, како вертикална тако и хоризонтална."
Nadam se da je bar malo jasnije 
Samo bih napomenuo da se bitumenska hidroizolacija još uvek radi jer je pouzdana i proverena, ali ako se ugradjuje u dva sloja.sa preklapanjima. Muka...frka....ali mora da ugradjuje ko zna !!!
....kao bilo šta drugo.Niti jedan ravan krov u Švajcarskoj nisam video bez bitumenske izolacije u dva sloja.
Temelje takođe....
Zašto?
Zbog drugih grubih naknadnih radova....ili zbog palog čekića ( neke alatke ).... ili mesta na terasi gde treba postaviti skleu za fasadu...a pre ugradnje pdnih obloga,...ili....ili..
Samo da ne bi došlo do oštećenja koje nije primećeno....prijavljeno...posle je kasno.
Iz tog razloga se ne primenjuju tankoslojne hidroizolacije ( premazi bilo koje vrste da ih ne nabrajamo) na svakom mestu. Imaju ulogu dodatne zaštite oko otvora ili stolarije,....itd
.Narvno da imaju primenu po nameni u bilo kom sčučaju, pogotovu na malim površinama gde su "sledeći" majstori pažljiviji. Ali na većim objektima....svi ostali treba da gaze kao po jajima....nema se vremena 
U veti termoizolacije temelja XPS-om....napisaću moja iskustva ovih dana....sezona, radi se
O hidroizolacijama je puno puta pisano , i nisam imao nameru da se time u ovoj temi bavim . Bitumenske izolacije jesu dobre i pouzdane do nekle , a od nekle prestaju to da budu . Počevši od načina ugradnje , pa sve do toga na šta se ugradjuju . Konkretno u ovom slučaju TI treba spustiti ispod kote zemljišta i to XPS i koliko je moguće . Ali treba povesti računa da se na mestu HI ne napravi bilo kakav most da ne bi bilo pojavila se vlaga . Kako se temelji rade od betona , smešan je trošak dodati aditiiv za vodonepropusnost betona . I nema nikakvog "povijanja " prilikom izvodjenja HI , vrlo jednostavno HI ispod zidova mora biti spojena sa HI podova , sve ostalo je bacanje i vremena i novca i put da se pojavi kaplarna vlaga . Kako se radi o Ytongu 30 cm širina izolacije ispod zidova bi trebala da bude 50 cm , i to tako da sa spoljne strane zida viri br 5 cm , pa 30 cm pokriva blok a ostatak od 15 cm unutra da bude dovoljan za spajanje sa HI poda . Svakako da se svi VS moraju izvesti sa HI , ako je problem zbog " brkova" treba koriistiti 2K polimercementne premaze , a recimo ako se ručno meša beton za ispunu VS onda u prve dve tri mešalice opet dodati VDP aditiv .
O hidroizolacijama je puno puta pisano , i nisam imao nameru da se time u ovoj temi bavim . Bitumenske izolacije jesu dobre i pouzdane do nekle , a od nekle prestaju to da budu . Počevši od načina ugradnje , pa sve do toga na šta se ugradjuju .
Ogradih se unapred, upravo zbog toga što si naveo. ....valjda se razumemo 
Naravno da se ti i ja razumemo , i ja nisam protivan bitumenskim HI .Ali jesam protiv nepravilne ugradnje bitumenskih HI , kao i primena recimo u kupatilima , direktnom doiru sa vodom ...
Jedno pitanje...
Da li je ovo dovoljno kondora da se podna HI "pozveže" sa zidnom i koji HI premaz da koristim (Sika, Dramin...)?
Unapred hvala na pomoći!
Izbor HI zavisi od vas ako ste već koristili kondor tj bitumenske proizvode , onda nastavite sa istim . dakl bitulit pa kondor V4 da se sve lepo zavari i da preklopi budu dovoljni
Izbor HI zavisi od vas ako ste već koristili kondor tj bitumenske proizvode , onda nastavite sa istim . dakl bitulit pa kondor V4 da se sve lepo zavari i da preklopi budu dovoljni
Jel neophodno da radim sa bitulitom i kondorom? Nadam se da to nije jedina solucija, jer osim što je verovatno i najskuplja, svakako je najnepouzdanija.
Više sam za premaze kao Sikalastik ili Dramin penetrat, jer vidim da većina vas čija reč ima težinu na ovom forumu preporučuje takve premaze.
I nema potrebe za presiranjem, pošto 3 godine "boravim" na forumu (što kao član, što kao gost).
Pozdrav svima,
Velikim delom je odgovoreno u ovoj temi na pitanja iz prvog posta i posto ste napisali da kondor izlazi horizontalno sa spoljne strane i tu ostaje 1-2 cm da viri, tj. ne savija se i ne lepi, interesuje me kako se taj prelaz sakriva ispod izolacije, da li taj deo kondora koji viri ide izmedju kamene vune i stirodura, odnosno povezuju se kamena vuna i stirodur?
Ne znam bas dobro da objasnim recima pa dodajem i skicu u prilogu.
Druga stvar, kod mene je nivo poda 0.32m, sto znaci da se meri od tog gornjeg nivoa gde ce biti betonska ploca, u zavisnosti koju debljinu kosuljice i izolacije stavim menja se pozicija betonske ploce? U mom slucaju znaci da ce sokla biti visoka samo 12.5 cm, tj deo od zemlje pa do pozicije gde kondor izlazi horizontalno napolje? Saljem i crtez donje etaze sa kotama
Hvala unapred!
Stirodur se po visini postavlja tako da prelazi nivo HHI ( horizontalna hidroizolacija ) . U tvom slučaju to bi bilo 15-20 cm iznad drugog stepenika a oko objekta 20-60 cm iznad nivoa HHI . Stirodur treba obraditi sa strane koja se lepi na vertikalnu hidroizolaciju u delu gde je linija HHI tako da se bukvalno ureže u ploču xps-a. Hidrofobni lepak naneti u dva prstena. Prvi prsten ispod HHI i drugi iznad HHI. U tome je caka. Deo gde se nalazi HHI ne treba lepiti.....Da napomenem samo da se stirodur u zoni vertikalne HI ne tipla.
Naravno ima tu još dosta detalja ....kao na primer fugovanje akrilnim gitom spoja XPS-a i stepenika sa spoljašnje strane....a sve pre postavke armaturne mrežice.....
Zatim je potrebno u zoni oko stepenika....ploče terase i svih kontakata stirodura sa betonom naneti u tankom sloju .... visina od 20 cm ...ovaj ili sličan materijal posle gletovanja armirnog sloja.. A sve ovo pre ugradnje ukrasnog maltera. Zašto je to važno?
https://www.roefix.rs/Proizvodi/Toplotno-izolacioni-sistemi/Impregnacije...
Iako je armirni lepak u nekoj meri vlagotporan , postoji rizik da povuče vlagu uvis ...(.kiša , sneg..) i zbog toga dolazi do pucanja ukrasnog maltera u toj zoni. Hidroizolativnim premazom se ova mogućnost sprečava
Onda ovako nekako, ako sam dobro razumeo, kao na novoj skici u prilogu? Crveno je stirodur, zeleno kamena vuna.
Hvala na pomoci 
Upravo tako....
I jos jedna stvar, vezana za termoizolaciju.
U crtezu u prilogu sam oznacio vezu garaze sa kucom ( garaza nece biti grejani prostor ) i vezu terase iza kuce, tj 2 stuba terase koji ce biti uz kucu. Na koji nacin bi resili termoprekid sa kucom ako stubovi terase i zidovi garaze moraju da budu vezani za kucu?
@igor bg
Svakako da kondor i bitumenski premazi imaju svojih ograničenja . No u vašem slučaju kao zaštita od kapilarne vlage upotreba kondora uopšte nije loše rešenje . Cena je nešto što sami možete izračunati pa videti šta vam je jeftinije ili isplativje . Dok bi recimo preporuka za kupatilo bila da izbegnete kondor kao vertikalnu ili HI ispod keramike , kako u prizemlju tako i na spratu
@igor bg
Svakako da kondor i bitumenski premazi imaju svojih ograničenja . No u vašem slučaju kao zaštita od kapilarne vlage upotreba kondora uopšte nije loše rešenje . Cena je nešto što sami možete izračunati pa videti šta vam je jeftinije ili isplativje . Dok bi recimo preporuka za kupatilo bila da izbegnete kondor kao vertikalnu ili HI ispod keramike , kako u prizemlju tako i na spratu
Znači sve prostorije osim kupatila bitulit pa varenjem kondora sa preklopom na 10-15 cm koji se posle dodatno zagreju i letvom utapkaju da bude manji prelaz. A u kupatilu ide premaz tipa Sikalastik na pod, 20-30cm na zid i tamo gde je tuš kabina skroz do plafona.
Jesmo li se dobro razumeli?
Baš tako , stim da i u kupatilu ispod košuljice tj na nultoj ploči radite HI i spajate sa onom ispd zidova . Dok se drugi sloj HI ugradjuje neposredno ipsod lepka i keramike
Baš tako , stim da i u kupatilu ispod košuljice tj na nultoj ploči radite HI i spajate sa onom ispd zidova . Dok se drugi sloj HI ugradjuje neposredno ipsod lepka i keramike
Jasno ko dan. A između kondora i stiropora moram da stavim foliju. Jel to ona građevinska zelena folija (najlon) ili neka druga?
Не треба вам фолија.
Jasno ko dan. A između kondora i stiropora moram da stavim foliju. Jel to ona građevinska zelena folija (najlon) ili neka druga?
........................
Ovo mi nije jasno ....Na koju poziciju misliš da staviš foliju između kondora i stiropora?
I jos jedna stvar, vezana za termoizolaciju.
U crtezu u prilogu sam oznacio vezu garaze sa kucom ( garaza nece biti grejani prostor ) i vezu terase iza kuce, tj 2 stuba terase koji ce biti uz kucu. Na koji nacin bi resili termoprekid sa kucom ako stubovi terase i zidovi garaze moraju da budu vezani za kucu?
Tokom izgradnje stubova , prvo ankerisati XPS minimalne debljine 20mm na poziciji termoprekida a zatim montirati oplatu za izgradnju stuba.

Ako uradi sve betone do zemlje od vdp betona, onda hidro izolacija nije ni potrebna?
______________________________________________________________________________