Nije mi jasna pozicija....gde će biti EPS i kondor u kontaktu ?
Kako izolovati pravilno temelj i prvu plocu?
Nije mi jasna pozicija....gde će biti EPS i kondor u kontaktu ?
Na podu. Pogledaj prošlu stranu. Pitao sam čime da radim HI nulte ploče koja je urađena sa VNP betonom M25, ispod spoljnih zidova (ytong 30+) je kondor v4. Tenzor mi je odgovorio da bi kondor bio dobro rešenje za unutrašnju HI, osim u kupatilu gde ide i premaz preko košuljice. A ja bih na kompletnu nultu ploču stavio EPS pa preko toga bi išla košuljica. Zato pitam da li treba nešto između kondora i EPSa, jer mi se čini da sam negde na forumu pročitao da ima neke hemijske reakcije između bitumenskih i stirenskih proizvoda.
Nisam pratio celu diskusiju, iz tog razloga postavih potpitanje....izvinjavam se
Prvo ne znam odakle ideja da se na tom mestu koristi EPS !? Sve u toj zoni se radi XPS-om....
Da li je projektant tako planirao ili ti razmišljaš kako da prođeš jeftinije ugradnjom EPS-a veće gustine, minimum 150 kPa (15 t/m2)
Ta priča da stirene nagriza bitumen , može doći u obzir ako postoji mogućnost atmosferskih difuzionih uticaja za ekspandirani polistiren u površinskom sloju, opet u zavisnosti od gramaže...odnosno gustine. U ovom slučaju sve je skoro hermetički u sendviču , tako da ne brigaj brigu....
Naravno, nikakve folije tu nisu potrebne kao štp je napisao i @zvukoljub
Nisam pratio celu diskusiju, iz tog razloga postavih potpitanje....izvinjavam se
Prvo ne znam odakle ideja da se na tom mestu koristi EPS !? Sve u toj zoni se radi XPS-om....
Da li je projektant tako planirao ili ti razmišljaš kako da prođeš jeftinije ugradnjom EPS-a veće gustine, minimum 150 kPa (15 t/m2)
Ta priča da stirene nagriza bitumen , može doći u obzir ako postoji mogućnost atmosferskih difuzionih uticaja. U ovom slučaju sve je skoro hermetički u sendviču.
Razmišljao sam upravo zbog cenovne razlike, projektant je bukvalno izgovorio te reči "u toj zoni bi trebalo da ide XPS". Međutim 5cm XPS 30 je cenovno isto kao 10cm A120, a razlika u toplotnoj izolaciji je sigurno bolja sa EPSom. E zbog toga razmišljam o EPSu.
Da rezimiramo... Ako je pod dobro urađen kondorom, to dobro povezano sa izolacijom ispod zidova, onda ne ide nikakva folija na EPS i XPS.
Znaš kako, vrlo je diskutabilno razgovarati o cenovnim razlikama u odnosu na preporuke struke koja kaže da treba koristiti XPS. Izolacija je kao igra šaha....treba razmišljati tri poteza unapred. Prostim rečnikom, ideš u sitna crevca koja su za tebe nepoznanica a hteo bi da držiš sve konce u rukama.....
Menjaj struku pa uči zanat ili prihvati standardne obrazce koji su školski,tehnološki i empirijski zakon 
Na mnogo mesta sam istakao, ne samo ja, da je u pitanju stepen sigurnosti proračuna. Potpuno ista priča kao sa liftom . Uđeš u lift i piše da je nosivost 150kg recimo, a projektovan na 220kg za svaki slučaj ...
Odakle informacija da je EPS u većim gustinama bolji termoizolator od XPS-a ?
Znaš kako, vrlo je diskutabilno razgovarati o cenovnim razlikama u odnosu na preporuke struke koja kaže da treba koristiti XPS. Izolacija je kao igra šaha....treba razmišljati tri poteza unapred. Prostim rečnikom, ideš u sitna crevca koja su za tebe nepoznanica a hteo bi da držiš sve konce u rukama.....
Menjaj struku pa uči zanat ili prihvati standardne obrazce koji su školski,tehnološki i empirijski zakon
Na mnogo mesta sam istakao, ne samo ja, da je u pitanju stepen sigurnosti proračuna. Potpuno ista priča kao sa liftom . Uđeš u lift i piše da je nosivost 150kg recimo, a projektovan na 220kg za svaki slučaj ...
Drugim rečima, 5 XPS + 5 EPS i dobijam ono čemu težim, ispoštovana pravila HI i TI. Jesam li konačno "matirao" problem? 
Šta reći.....Završnu reč će dati tvoj projektant ili ti , iako ti to nije struka ?
Očigledno je da i on razmišlja tri poteza unapred jer je odgovoran za stepen sigurnosti. A ti bi da uštediš na tome......
Šta reći.....Završnu reč će dati tvoj projektant ili ti , iako ti to nije struka ?
Projektant naravno. Razumeli smo se pošto sam naknadno video pitanje koje si postavio vezano za razliku u termoizolaciji izmedju XPSa i "tvrdog" stiropora. Sve ovo i pitam pošto mi nije struka i zato što ne znam. Načitao sam se i naslušao svakojakih stvari. Hvala Izotope na pomoći oko TI, kao i Tenzoru na savetu oko HI.
Srećan rad i slobodno pitaj opet...Ima tu još gomila detalja oko prakse i pravila ugradnje. To je tek glavobolja zbog navika i stručnosti "majstora" , nadzora radova....
Srećan rad i slobodno pitaj opet...Ima tu još gomila detalja oko prakse i pravila ugradnje. To je tek glavobolja zbog navika i stručnosti "majstora" , nadzora radova....
Evo odmah da pitam... Kada zavarim kondor na pod, da li samo poslažem XPS preko, odvojim diletacionom trakom od zida i preko toga košuljica? Ja ću raditi onoliko koliko umem i znam, ostalo će majstori, naravno uz moj nadzor, a sve prema pravilima struke koji ste objasnili na forumu do sada.
Hmm....čačkaš mečku da bi prošao jeftinije. Čizma glavu čuva...a to je hidro/termo izolacija temelja i ploče jednog objekta. Detalji su u pitanju....
Bolje budi pomoćnik nekom majstoru....moj savet.
Upravo o tome govori @tenzor u vezi sa ugradnjom bitumenske HI
Hmm....čačkaš mečku da bi prošao jeftinije. Čizma glavu čuva...a to je hidro/termo izolacija temelja i ploče. Detalji su u pitanju....
Bolje budi pomoćnik nekom majstoru....moj savet.
Upravo o tome govori @tenzor u vezi sa ugradnjom bitumenske HI
Biću pomoćnik, to se podrazumeva, ali kako da znam da je majstor stvarno majstor?! Pošto nisam iz struke, ne mogu da mu kažem "ne može to tako, zato što tako ne ide" a da pritom čovek bude u pravu. Zato tražim pomoć od vas iskusnih da bih znao na šta da obratim pažnju. Za kondor sam pročitao da se vari brenerom, sa preklopom na 10-15cm, pre toga se pod očisti i namaže se bitulit i to je jasno ko dan. Sad čitam dalje korake koji dolaze nakon postavljanja HI.
off: Da nisam ovde video da se krov ne dašča, majstori bi mi daščali kao što su radili i na prethodnih 100 kuća i kao što su sve kuće oko moje podaščane. Ali sam bio "uporan" u tome da se ne dasča jer sam ovde saznao da daska nema nikakvu funkciju ispod crepa.
Kondor na podu ili spolja na temelju se radi u dva sloja....napisao sam to ranije na ovom topiku. Stepen sigurnosti !!
Prvi sloj traka se spaja na sastavku bez preklapanja, drugi sloj počinješ sa polovine trake prvog sloja i preklapaš 10cm. Horizontalni prvi sloj preko cele ploče do spoljne ivice temelja, drugi sloj dižeš na umutrašnju stranu zida za debljinu završne linije poda.....itd....Detalji 
Kondor na podu ili spolja na temelju se radi u dva sloja....napisao sam to ranije na ovom topiku. Stepen sigurnosti !!
Prvi sloj traka se spaja na sastavku bez preklapanja, drugi sloj počinješ sa polovine trake prvog sloja i preklapaš 10cm. Horizontalni prvi sloj preko cele ploče do spoljne ivice temelja, drugi sloj dižeš na umutrašnju stranu zida za debljinu završne linije poda.....itd....Detalji
Ok. Onda na to dolazi slaganje XPSa, odvojena od zidom diletacionom trakom? Pošto stavljam 10cm na pod, uzimam 2x5cm, koje se preklapaju? Oprosti ako sam naporan, ali nemam gde drugo da pitam osim ovde na forumu.
Ako uzimaš 2x5 xps,....onda ti ne trebaju table sa preklopom jer ćeš drugi slog ploča ukrštati u odnosu na prvi.. Tu možeš da uštediš .
Samo polako, ne boj se. Znaš kako kažu : Il`si lud, ili praviš kuću 
Ako uzimaš 2x5 xps,....onda ti ne trebaju table sa preklopom jer ćeš drugi slog ploča ukrštati u odnosu na prvi.. Tu možeš da uštediš .
Samo polako, ne boj se. Znaš kako kažu : Il`si lud, ili praviš kuću 
Loše sam se izrazio... Na ukrštanje sam mislio, ne na falcovani XPS. A mislim da se u današnje vreme stavlja znak jednakosti između lud i gradi kuću. 
Postavka "tehničke " folije je pitanje koje je načešće zloupotrebaljavano . Dosta forumaša ima pitanje da li polagati najlon na nasut materijal pa preko betonirati i to svakako nema smisla jer će isti biti probušen na 1000 mesta . Medjutim kod polaganja na bitumensku HI a da preko ide EPS i XPS ja sam stava da najlon neće da škodi i da neće biti izbušen , a da će svakako imati svoju ulogu preventivne zaštite jer su naši izolateri skloni upotrebi nenamenskih rastvarača prilikom izrade bitumneske HI i obzirom na zanemarljivu cenu najlona , neće biti loše posaviti ga kao neku vrstu preventivne kontaktne zaštite . S druge strane pošto se ipak radi o podu objekta koji je izdignut i neće nikada biti problema sa vodom koja nadire ili vodom pod pritiskom , sama izrada podne HI nije toliko bitna niti komplikovana . Mejdutim razlika izmedju dobro uradjene HI i loše uradjene HI kreće od pogrešnog izabranog materija pa do ofrlje ugradnje . Dakle majstoru za HI u tvom slučaju sve ide na ruku , laka je ugradnja , sve je u horizontali , lako je manevristati alatom ... Uz malo obraćanja pažnje i malo posvećenosti praktično ne postoji način da se napravi greška .
A što se ne bi upotrebio stakleni krš za tampon? Vidim da to niko ne pominje ...
Ja sam odavno pisao o pobadanju staklenih flaša u pesak grlom , kao izuzetnu termo i hidroizolaciju , preko njih ide klasična betonska ploča .
Hvala na odgovorima, izvinjavam se sto davim sa detaljima ali sam shvatio da moram sam da se upoznam sa detaljima kako bih znao sta da trazim tacno prilikom izvodjenja.
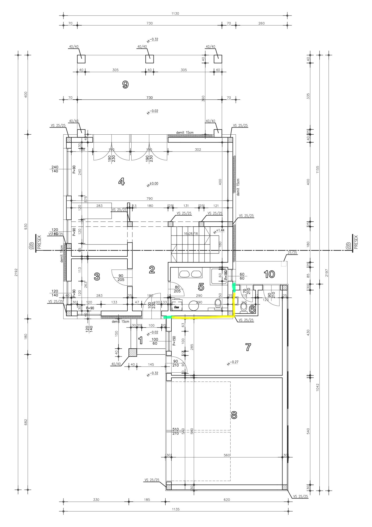
Na skici u prilogu sam oznacio brojevima:
1. Ovaj deo temeljnog zida pre postavljanja stirodura premazati cementnim HI premazom? Da li je potrebno i pozeljno da se premaze i cela betonska ploca pre postavljanja kondora i zidanje, tj.
da se uradi horizontalna HI u 2 sloja, sa nekim HI premazom pa preko njega jos kondor?
2. Ovde sam razumeo da na ovaj nadzemni deo stirodura treba da se nanese HI premaz neposredno pre ukrasnog maltera? samo gde postoji kontakt sa betonom stepenista i terase ili oko cele kuce?
3. Sta naneti na stirodur u ovom podzemnom delu? Ovde se kasnije zatrpa i nabije zemlja pre izrade staze? Da li je pametno nasuti ovde celom dubinom uz stirodur sljunak umesto zemlje?
4. Da li se ovaj deo zida iznad HHI tretira sa nekim sredstvom pre lepljenja stirodura?
5. Da li se stavlja nesto na spoju izmedju stirodura i prvog reda stiropora (ili kamene vune)?
Sto se tice horizontalnih folija, u nekim drugim temama ovde sam procitao da se preporucuje folija pre postavljanja betonske ploce, negde ne.. Isto tako i za folije pre i posle horizontalnog stirodura..
Oznacio sam ih na skici brojem 6. Sta zaista treba od ovih folija? Ovo tek nije neki trosak, ali da se ne vodimo "od viska glava ne boli" posto visak mozda moze da bude kontraproduktivan 
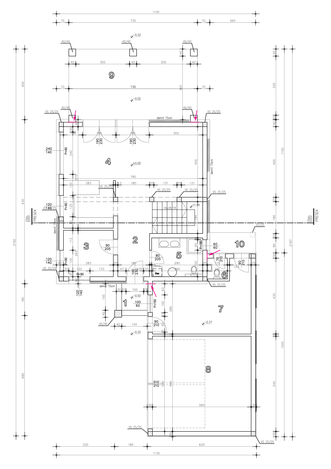
"Tokom izgradnje stubova , prvo ankerisati XPS minimalne debljine 20mm na poziciji termoprekida a zatim montirati oplatu za izgradnju stuba."
Ovo bas nisam razumeo najbolje, da li je moguce da u ovim delovima idem sa neprekinutom termoizolacijom kao na ostalom delu kuce a da se ostvari veza izmedju zida kuce i stubova na terasi, odnosno izmedju zida kuce i zida garaze koja nece biti grejana? ponovo sam postavio crtez ovde sa oznacenim mestima prekida da bude sve u jednom postu.
Zaboravio sam da napomenem da su podzemne vode daleko, neke komsije imaju suve podrume dubine 3-4 metra.
Zahvaljujem se na strpljenju i pomoci!
Jos jednu stvar sam zaboravio kod izolacije temelja, u ovim zonama gde je temelj kuce spojen sa temeljom garaza i pomocne prostorije, koji nece biti grejan.
Pretpostavljam da se temelj radi iz jednog dela bez prekida, ne znam kakva ce situacija biti sa temeljom terase iza, videcu detalje kad bude projekat gotov ovih dana, sta je predvidjeno.
Na skici ispod sam oznacio te 2 zone, zelenom bojom gde se spaja temelj i zutom gde temelj "dele" kuca i pomocna prostorija.
Mnogo pitanja za jedno veče....imaću vremena ovih dana za pojedina pitanja da odgovorim...mada je dosta toga već odgovoreno na drugim temama.Moraš i ti da se potrudiš i čitaš ostale teme.
Da, u pravu ste, svasta sam napisao
Pokusao sam da formulisem pitanja tako da odgovori budu kratki i da ne ulazim dalje posle toga u detalje nego da primenim u praksi i gotovo..
Citao sam i pronasao uglavnom odgovore i savete, jedino sto nisam pronasao jednoznacno, razlicita su misljenja i uputstva, kao sto sam naveo npr. za folije - neko preporucuje sve 3, neko 1 a neko opciju bez folija.. Pa sam zbog toga slozio ovako sva pitanja na jednom mestu konkretno za moj slucaj i za ove kako sam ja zakljucio najbitnije korake gde su kasnije ispravke nemoguce ili tesko moguce i veoma skupe - temelj, HI i TI oko ove zone i ploce..
Voleo bih da ne moram uopste da se petljam sa ovim nego da prepustim sve kvalifikovanim osobama, ali ne ide to bas tako lako 
Cenim svaciju pomoc i utroseno vreme ovde, hvala unapred!
Ако хоћете добар савет онда послушајте шта вам је izotop написао јер је он овде на форуму најстручнија особа по питању изолација, поред њега добе савете даје и tenzor, као и som16, а најстручнији је Histerezis, за грађевинарство у опште..
Bojan1 koliko ste pitanja postavili lakše bi mi bilo da dodjem na lice mesta i sve objasnim "na živo " 
Ko ne zna mora da pita 
Moze i na zivo pa da osvestamo temelje uz neki razanj ili da pokopamo "utopisticku" ideju izgradnje kuce u 21.veku 
Zdravo svima, imam jednu nedoumicu. U planu je nasipanje oko kuce do drugog reda betonskog bloka, tj 40cm, tako da iznad ostane 60cm. Da li je u redu solucija da prvo naspem zemljom do drugog bloka, zatim da odradim trotoar, i da se nakon toga kada se bude radila fasada, stiroporom oblozi temeljni zid?
Ili je bolja solucija da se prvo naspe, pa da se pre nego sto se odrade trotoari, prvo izoluje temeljni zid cepastom folijom, pa da se tek nakon toga odrade trotoari i nakon toga stiroporom izoluje temeljni zid?
Ukoliko je u redu ovo drugo resenje, da li moze neko da mi posalje snimak postupka postavljanja cepaste folije? Hvala
Čime je urađena horizontalna hidroizolacija?
Ono što bi sada trebalo uraditi je ugradnja vertikalne hidroizolacije spolja do kontakta sa HI . Napravljena je greška jer je HI zasečena u ravni zida ( trebalo je da "viri" nekoliko cm ). . Zatim ugraditi stirodur ( XPS ) po čitavoj površini namenskim lepkom koji vezuje na hidroizolaciju.
Ponavljam ...stirodur lepiti namenskim hidrofobnim lepkom u liniju koja je iznad sadašnje HI nekih 15 cm.
Objasnio sam u postovima iznad ,pravilnu postavku stirodura na toj poziciji.
Tek posle svega toga se montira čepasta folija i nasipa sloj za trotoar..
Da li posle preko cepaste folije moze da se postavi neki tanji stiropor kada se bude radila fasada?
Sta dobijam ako izbegnem vertikalnu hidroizolaciju spolja na temeljnom zidu i pristupim direktno postavljanju cepaste folije?
Da li cepasta folija treba iz jednog poteza da ide od mrtve ploce da se savija i da legne na zemlju, pa da trotoar kasnije celom svojom sirinom legne na nju?
Hvala

Ovo mi nije jasno ....Na koju poziciju misliš da staviš foliju između kondora i stiropora?
Da, jer koliko se sećam "gradiva", bitumenski proizvodi nagrizaju stiropor ili sam "pobrkao lončiće"!?