U pravu si. Piše da je za termoizolaciju i pritisak a ja pročitah izolacija pa nisam ni obraćao pažnju kakva izolacija.
Šta onda da stavim kao zvučnu izolaciju?
Мајсторске консултације
Po mom mišljenju,možda bi korišćenje ovih materjala rešilo problem
http://www.knaufinsulation.rs/sr/products/kr-p
Tema termoizolacija nas ponovo dovodi do pitanja koje sam postavio na početku ovog topika,a tiče se ukupne edukovanosti ljudi koji se bave ovim poslom profesionalno.Dajemo savete,svi zajedno, nekome ko se odlučuje da posao završi u varijanti SSM,ili shvati ozbiljnost poduhvata da mora tražiti stručne izvođače radova.
Razlika u sistemima, koje proizvođači materjala nude na tržištu,dovodi do određene "konfuzije" u domenu pravila koja se primenjuju u određenim situacijama.
Meni je žao,jer nemamo nit u projektovanju stvarnosti bez stručne pomoći nekog od arhitekata koji bi svojim iskustvom i znanjem doprineli podizanju kvaliteta rasprave u ovoj oblasti.
Ovo je poziv moderatorima da uključe u dijalog,ako je to moguće, nekog projektanta koji bi dao svoje mišljenje na "majstorske opservacije" i time bi dobili na kvalitetu odnosa "proračun/praksa".
Pre svega,moje mišljenje je da treba konsultovati nauku u ovoj oblasti, koju prate praktična iskustva .
Očigledno je da pojedinci ovde nalaze prostor za sopstvenu reklamu.Sve u svemu...nije ni to loše u podizanju ukupne svesti da se problemu termoizolacije objekata treba prići dosta ozbiljnije.
Moj jedini cilj je da lično iskustvo prenesem drugima,bar ovim putem,jer Vam nisam konkurencija u tom smislu.
Bilo bi dobro da potencijalni investitori shvate šta je to garancija za obavljeni posao.Šta ta garancija podrazumeva i koliko traje.Na osnovu čega se daje garancija.I na kraju krajeva...kako do takvog kvaliteta stići u SSM varijanti!!
Majstorski Pozdrav!
Srećan Rad!!
p.s. bilo bi dobro i korisno da se "energija" (alterenergija) ponovo uključi u dijalog....nema ga odavno!
Svako od stručnjaka jke dobrodošao na forum, a njihovi saveti bi bili posebno cenjeni.Medjutim, čini mi se, da sem nekoliko izuzetaka, ostali ljudi iz struke i nauke nisu baš voljni da besplatno krčeme svoje znanje i iskustvo.
Bio bih posebno srećan da me demantuju u ovoj mojoj konstataciji, ne zbog mene, nego na dobrobit svih onih zaljubljenika u svojih ruku delo, koji posećuju stranice ovog foruma.
fasaderi su u principu jako sujetni (kao doktori) pa tu na forumu cesto dolazi do razmimoilazenja misljenja i mozda je to razlog zbog kojeg nema dovoljno kvalitetni sagovornika koji bi delili savete i razmenjivali misljenja!
U bilo kom zanatu,sujeta je recipročna neznanju.Tehnologija materjala je u stalnoj ekspanziji . U praktičnoj primeni istih ,treba ići u korak sa vremenom ,jer "zanat se uči dok si živ".Iskustvo koje se gradi na temelju znanja, daje sebi za pravo da po nekad "prizemlji" neka lutanja u nepoznato.Eksperimentisanje nekad dovede do "eureke",ali je u većini slučajeva to znak za oprez krajnjem konzumentu.Pogotovu zbog ljudi koji se ovim poslom ne bave,pa im treba skrenuti pažnju da pojedine savete ne uzimaju zdravo za gotovo.Po onoj narodnoj "Sve što leti,to se jede"!
Hteo bih da razmenimo mišljenja o jednom segmentu ugradnje izolacije koji se provlači kod svih sistema prisutnih na tržištu kod nas.To je postavljanje "početne lajsne"!
Nije mi jasno iz kog razloga se forsira primena početne lajsne?To je uhvatilo toliko maha kod nas, da su ljudi to prihvatili kao obavezu/zakon!Gotovo svi prizvodjači i prodavci termoizolacionog materjala to preporučuju kao prvi korak.
Moje mišljenje je da je to velika greška.Uprošćavanjem se došlo do polovičnog rezutlata.Preskače se hidro/termo izolacija temelja.Zašto?
Čizma glavu čuva!! 
Koliko vidim "kibiceri" sa foruma nisu spremni da iznesu svoje mišljenje zašto forsiraju ugradnju početne lajsne.Shvatam da je problem samo u jednom..... Pa tako smo naučili ili videli da svi ostali rade isto!!
Problem se zasniva na apsolutnom nepostojanju standarda za ugradnju fasade u Srbiji.Takvo stanje treba promeniti, počev od svesti ljudi koji žele da termoizoluju svoj objekat do onih koji se tim poslom bave profesionalno.
Ovde mislim na konsultante u vodećim kompanijama za proizvodnju fasadnih materjala i majstora koji imaju njihove licence.Nešto tu ne štima!!!!Da ne govorim o projektantima koji su sigurno svesni značaja definisanja standarda.
Ukupna finansijska situacija u državi je dovela do "instant" rešenja koja su uzeta "zdravo-za gotovo".Najgore od svega je to što se takav način promoviše i dalje.Pogotovu ovde na forumu gde se ljudi informišu kako da nešto urade a da to bude kvalitetno.Treba se popeti za stepenik više i uzeti kao obrazac značaj hidro/termo izolacije temelja kuće.To naravno poskupljuje ugradnju fasade...ali opravdano!!!
Sigurno postoji problem u informisanosti kao i platformi edukacije sadašnjih i budućih majstora.Sve ovo govorim iz razloga da pokušate sami da menjate sistem ugradnje jedne fasade i da samim tim napredujete u poslu kojim se bavite.Nadam se da postoje ljudi,koji su voljni da iznesu stručne analize po ovom pitanju i jedan praktični osvrt uz upotrebu materjala koji su dostupni na tržištu u Srbiji.
bože moj treba prodati te početne lajsne i to neko pravi.
U pravu si!!
Ali treba da se preraste početnički stadijum u rešavanju problema ugradnje jedne fasade.Početna lajsna/profil vam predstavlja osnovicu na koju gradite dalje termoizolaciju objekta.Zato to i zovem "instant sistemom",jer tako preskačete izolaciju temelja!Ona čak pravom majstoru nije ni potrebna jer se prvi red stiropora tipla u takvim situacijama gde nema oslonac(mislim na novogradnju),kod renoviranja se tipla svaka ploča!
Treba da zaboravite na nju,kao što deci skinete "pomoćne točkove" sa bicikla kad nauče da ga voze.I na takav način bez preskakanja uradite kvalitetnu termoizolaciju objekta od temelja do krova.Korišćenjem osnovne hidroizolacije za osnovicu(temelja,zidova ispod nivoa tla) na koju lepite stirodur do visine 30-60cm iznad zemlje.Na njega oslanjate dalje izolacione ploče (stiropor/kamena vuna) i kompletirate tako termoizolaciju objekta.
Pocetna lajsna ima i okapni zub koji sluzi svojoj svrsi.
Inace, na projektu na kome sada radim sam umesto pocetne lajsne postavio okapnu lajsnu 
POzdrav!
Inace, na projektu na kome sada radim sam umesto pocetne lajsne postavio okapnu lajsnu
Tako se i radi!Kao na bilo kom drugom mestu gde se postavlja okapna lajsna sa mrežicom a ne početni profil na koji oslanjamo izolaciju.
Da li postoji poseban razlog zašto ne radiš izolaciju ispod okapne lajsne?
Naravno da se radi izolacija u zoni sokle (konkretno na ovom projektu je sokla 50cm).
Poz!
Onda je razumljivo zašto koristiš okapnu lajsnu jer ne postavljaš istu debljinu izolacije na soklu i zid.
Imam još jedno pitanje!
Da li stirodurom izoluješ soklu ili...? Čime lepiš izolaciju na tom delu i da li dodatno obezbedjuješ kontakt izmedju sokle i betonske staze na koju postavljaš stirodur na primer?
Da stirodurom, a lepi se cementnim lepkom.
Rekoh ti u jednoj temi da kod nas nema bitumenskog lepka na vodenoj bazi (tj. moze i da se nabavi ali zbog slabe traznje, proizvodjaci&trgovci ga ne drze na lageru).
Pozdrav!
Pronasao sam jedan koji nude na trzistu:
BaumitBitumenKleber 2K
Dvokomponentni, vlaknima ojačani bitumenski lepak za lepljenje ploča stirodura (XPS) na bitumenske izolacije. Ne sadrži razređivač. Pogodan takođe za površinsko vertikalno i horizontalno izolovanje delova građevine ispod nivoa terena. (Mineralne podloge prethodno tretirati predpremazom: IsolierAnstrich 111N)
Potrošnja:
ca. 2 - 3 kg/m2 (lepljenje)
ca. 5 - 6 kg/m2 (izolovanje)
Set 30 kg, 1 pal. = 12 setova = 360 kg
Set 30 kg (24 kg tekuće komponente u plastičnoj kanti + 6 kg praškaste komponente u papirnatoj vreći)
Ima, ne kazem da nema da se nadje, ali zbog slabe dostupnosti niko ne praktikuje da koristi takve proizvode.
Pozzz!
Postovani mastori molim za mislenje.
Hteo bih uraditi izolaciju na kuci koja je zidana ciglom i izmalterisana je spolja i iznutra .(debljina malter ja 3-4cm).Interesuje me Austotermov program.
Pitanja:
1.interesuje me optimalna debljina stiropora8SIVOG)
2.optimalna debljina stirodura(roze)za coklo-takodej izmalterisano
3.optimalna debljina stirodura za izolaciju horizontalnih cerklaza i greda iznad vrata i prozora(da li je potrebno lupati malter i postavljati prvo roze a zatim sivi preko njega -ako je potrebno u kojoj sirini bi trebalo obiti malter.Hvala u napred.pozdrav
mile85
1. Osmica, desetka
2.Pa sad neka bude manje debljine pet i manje, da se dobije lep prelaz između sokle i zida
3.To što ti hoćeš se radi u toku zidanja i izlivanja serklaža. Serklažu se može smanjiti širina za pet centimetra i postavi se izolacija, ovako sada kad je već malterisano ne vidim svrhu obijanja maltera.
Proveri samo nosivost podloge (maltera) i udri...
Pozdrav
Mislim da za razliku u ceni 8cm sivog neopora, mozes kupiti vise od 10cm belog stiropora, a citajuci ove teme po forumima ja sam misljenja da je bolje uloziti pare u " debljinu nego u boju". Ako ides sa 10cm stiropora onda na ove betonske delove oko prozora... nalepi 5cm stirodura pa na njega jos 5cm stiropora i sve ce se uklopiti.
Sad videh da je i spolja izmalterisano, zaboravi ovo 5+5 i ko sto covek rece- udri...
Ljudi hvala puno.Pozdrav
Kod mene je kuca takodje izmalterisana. Da li se zbog toga lepak na stiropor ploce nanosi po celoj povrsini sa nazubljenom gletericom ili "standardno" po ivici i u sredini u vidu lepinja?
Standardno- u krug i na jos nekoliko mesta u sredini , ali tako da minimum 40 % ploöe bude prekriveno lepilom
Pitam jer me majstor sa licencom jednog renomiranog prodavca izolacionih materijala ubedjivao da se na ravan zid lepi tako sto se na plocu ravnomerno nanosi lepak sa gletericom.
Prema Baumit uputstvima ako je podloga stabilna primenjuje se standardni metod /po obodu i na najmanje još tri mesta-minimum površine 40 %/. Kada sam ja to izvodio u novembru/decembru 2009 tako sam tražio da rade kada je lepljen neopor od 10 cm, na nekim mestima je lepljen stiropor od 2 cm iz estetskih razloga premazivanjem čitave table lepilom jer se tabla krivi.
U svakom slučaju neće se napraviti greška ako se premazuje čitava izolaciona ploča. Bitno je samo da ne izađe lepilo između tabli, zbog termičkog mosta.
Pitam jer me majstor sa licencom jednog renomiranog prodavca izolacionih materijala ubedjivao da se na ravan zid lepi tako sto se na plocu ravnomerno nanosi lepak sa gletericom.
U nekim od objašnjenja ranije,pomenuo sam i taj detalj :
Zbog čega se na stiropor 5-icu nanosi lepak po celoj površini?
Naglasio sam ,samo u slučaju da je podloga izuzetno ravna(plafon,ravan betonski zid,..).Time se postiže ujednačenost sloja lepka na svim zalepljenim pločama.S druge strane ,debljina stiropora od 5cm na dimenzijama 100x50 je gibljiva.Neravnomernim nanosom lepka na ploču i naknadnim tiplanjem(ako je potrebno) ipak dobijete neravnu površinu(u SSM varijanti).Samo zbog gibljivosti ploče od 5cm debljine. Danak ne iskustvu ,ništa drugo.
Iz tog razloga sam naveo da nazubljenim gleterom nanesete lepak po čitavoj ploči.Takva ploča ima potpun kontakt sa zidom.Nema udubljenja/ispupčenja na izoliranoj površini,pod uslovom da pravilno postavljate izolaciju.
Kasnije kad postavljate mrežicu,lakše se postiže uslov da zid bude zaista ravan.Praktično je isti utrošak lepka.Ono što ste stavili "ispod" ploče,nije potrebno za korekcije kasnije.
Iz istog razloga se "šlajfa" stiropor pre postavljanja mrežice.Na potpuno ravnoj izoliranoj površini (šlajfanoj),lako se postavi mrežica.Nema korekcija kojim "ispravljamo" neravnine lepkom.
Nije pogrešno lepiti normalno po obodu (ivicama) i još dve poprečne kolone na trećinama ploče (na 33cm).Važno je da sloj bude jednak a komore koje dobijemo takvim načinom lepljenja imaju svrhu da eventualni proboj vlage na zidu zadrže u tom okviru.Ovo je podrazumevani i preporučeni način za sve debljine.
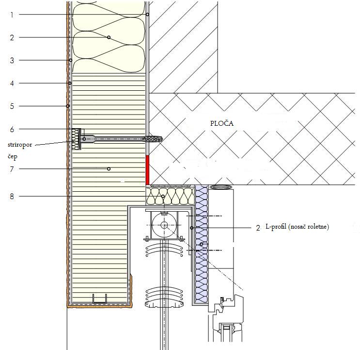
Zaštitni element za žaluzine i roletne
Sa ugradnjom deblje izolacije otvaraju se mogućnosti montiranja i dodatnih elemenata.Potreba izoliranja mehanizma žaluzine ili kutije roletne je poželjna zbog ukupnog smanjenja gubitka toplote i ublažavanja efekta termoprekida na tim mestima.Postoje gotovi elementi spremni za ugradnju koji se kupuju po meri ili ih možete praviti sami .
Dimenzije ovakvih zaštitnika prvenstveno zavise od dimenzija otvora ,vrste roletni,dimenzija kutije roletne,ručnog ili električnog mehanizma roletni,....
Standardne debljine stiropora koji direktno prekriva mehanizam ide u rasponu od 2-4 cm,dok su ostali delovi zaštitnika u debljini termoizolatora planiranog za izolaciju objekta.
Precizna pravila oko pravljenja i postavke ovih zaštitnika ću predstaviti u nastavku ako ste zainteresovani za detalje.
Naravno,mozes to da postujes i na nasem forumu ,he he 

Ako si pročitao sajt,verujem da si primetio da nigde nije napisano da stirodur sluči kao zvučna izolacija iznutra.Možda bi i "kolega" koji je to preporučio mogao da ga prelista.
Za improvizacije...nema garancije !!!